查看完整案例

收藏

下载

翻译
Architects:Architects Ink
Area:620m²
Year:2020
Photographs:Sam Noonan
Manufacturers:Artemide,Astra Walker,CDK stone,Lo&CO
Builder:Krivic
Landscape Architect:Landskap
Structural And Civil Engineer:PT Design
City:Adelaide
Country:Australia
Text description provided by the architects. Centered around an existing tree, Jacaranda House offers a robust family home in Adelaide, Australia, that celebrates interaction between the landscape and each other. The clients sought a low-maintenance home designed for entertaining, with abundant access to functional outdoor areas to facilitate an active lifestyle. Additionally, they desired spaces that offer separation while maintaining connection.
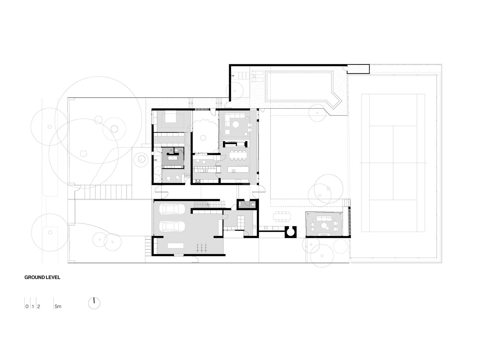
Like a Roman village, Jacaranda House is formed from a series of masonry volumes. Radiating around an existing jacaranda tree these volumes contain the master suite, living, children and service zones. Their placement addresses existing site conditions along with the surrounding built context, articulating the overall form. Split across two-storeys the built footprint is reduced, maximizing the backyard size where the existing swimming pool and tennis court are maintained.
United via the entry gallery, each volume sits at a different level responding to changes in topography across the site, clearly defining one zone from the other. The variation in floor levels and ceiling heights, along with the carefully considered placement of courtyards, voids, openings, and skylights create a dynamic series of interconnected spaces. Views between and through zones achieve a layering of space, maintaining connection through separated areas.
Bespoke detailing coupled with honest and durable materiality, rich in texture are integral to the personality of Jacaranda House. A disciplined palette of white brick, concrete, and glazing were selected for their color, texture, value, structural capabilities, and durability. Ensuring continuity, the materials are consistent internally and externally. Due to the symbiotic relationship between the architecture and the landscape, the materiality and composition of the external spaces were shaped through close collaboration with the landscape architect.
Being west-facing, small openings are dotted across the front façade. The extent of masonry conveys a sense of solidity and permanence, softened by the extensive existing vegetation maintained to the front yard, which provides privacy and shading from the harsh afternoon sun. A custom pivot front door sits in the center of the front facade. Glazed with reeded glass, the door offers transparency while maintaining privacy and a sense of anticipation prior to entering.
To the rear a cantilevered concrete ribbon ties the indoors to the outdoors, forming a canopy over the pool terrace and outdoor entertaining. Internally, the weight of the concrete hovering above emphasizes the release in volume over the living zones, where pendant lights help to maintain intimacy in scale. The living spaces surrender to the outdoors through large expanses of operable glazing where a masonry volume sits atop, striking a balance between solidity and transparency.
There is an appreciation and manipulation of light through; evolving rays from skylights and high-level windows; ambient from adjoining courtyards, dappled through the foliage; and checkered through perforated brickwork. A daily performance of dancing light across the architecture showcases the textural and tonal variances of the materials, enriching the spatial experience. The layering of space, texture, and light nurtures interaction with nature and each other, making Jacaranda House a home to be enjoyed by family and friends alike.
Project gallery
客服
消息
收藏
下载
最近




























