查看完整案例

收藏

下载

翻译
Architects:grupoDEArquitetura
Area:318m²
Year:2022
Photographs:Pedro Kok
Manufacturers:Deca,GMAD,Gerdau,Home Móveis
Architect In Charge:Cristiana Pasquini
Project Team:Leandro Mendes, Thamires Garcia
Steel Structure:Pruden Art
City:Presidente Prudente
Country:Brazil
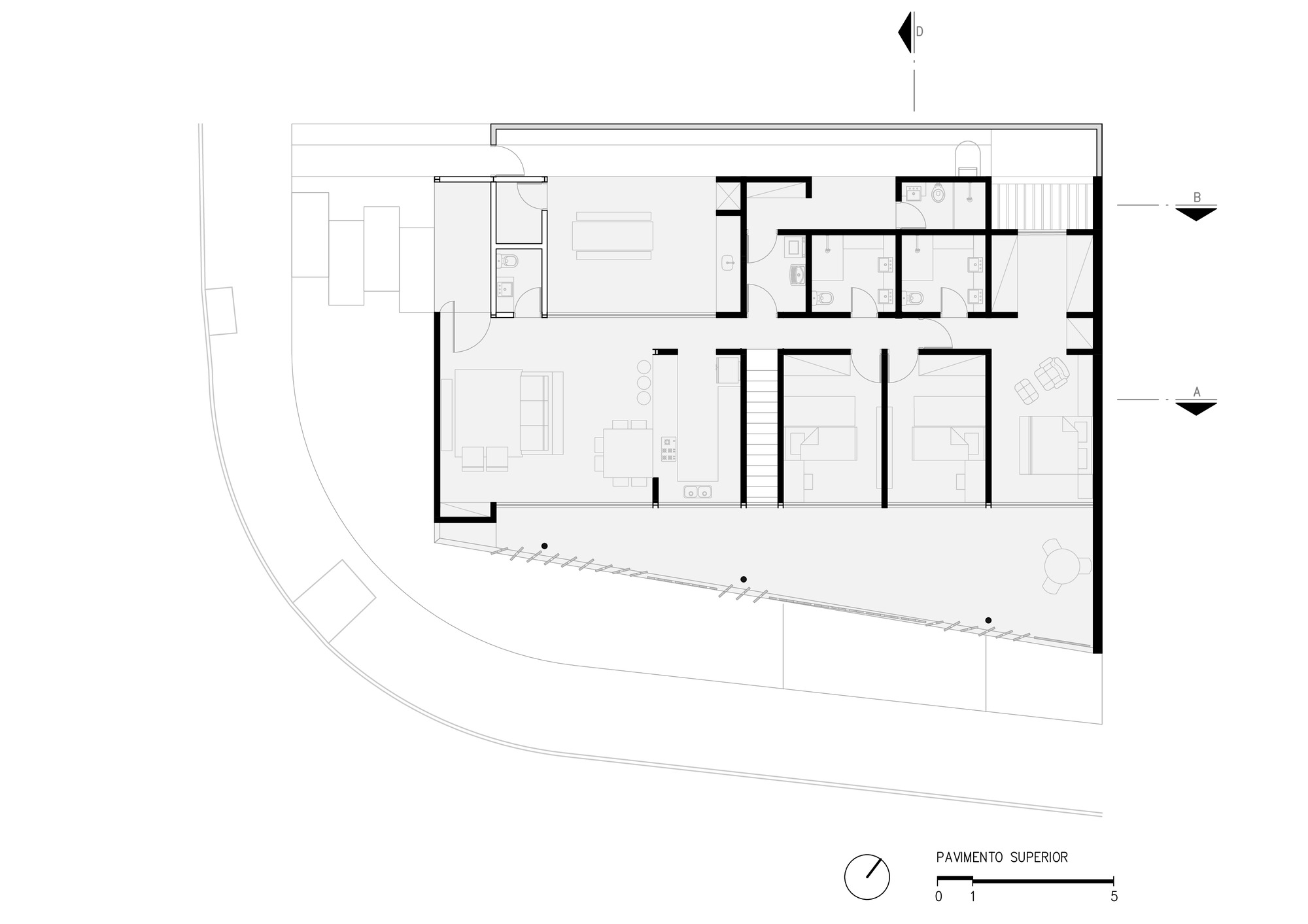
Text description provided by the architects. Porto Madero Residence is located in the southern part of the city. A corner with 17.05mx23.00m, 2.60m of the slope, and the largest facade facing a Permanent Preservation Area - APP.
With this morphology, the project was implemented on two levels – one on the lowest level with entrance through the largest facade where the garage, storage room, a guest room, and an office are located; and another with access from the smallest facade, where the program of the house is located: 3 bedrooms, living room, dining room, balconies, and service.
With linear organization, all rooms open to the view of the forest that, in addition to a generous balcony to contain the morning sun, brises were also installed to contain the afternoon sun.
A beautiful sunset embraces the house every day – in winter the sun lies right in front of the porch and warms the house; in summer on account of its inclination, it puts itself behind the great boundary wall. A shaded veranda in summer and in winter the brise that controls the insolation without losing view to the Preservation Area. With all the rooms in the house going out to the balcony, the house also has cross ventilation made by small openings on the roof.
The structure is a mix of exposed concrete and steel. In the compression work on the concrete, the entire lower level was made in reinforced concrete that resolved support and base pillars. The floor above was a block of the metal structure, making the construction lighter and with much faster assembly and execution. All interior finishes are in exposed concrete: slabs and the floor – A roof garden gives back the entire land to the view at the end of the afternoon.
Project gallery
客服
消息
收藏
下载
最近










































