查看完整案例

收藏

下载

翻译
Architects:AML Design Studio
Area:145m²
Year:2021
Photographs:Ang Wu
Design Team:Amulong, Xiaoyou Song, Chong Liu
Lead Architect:Amulong
City:Beijing
Country:China
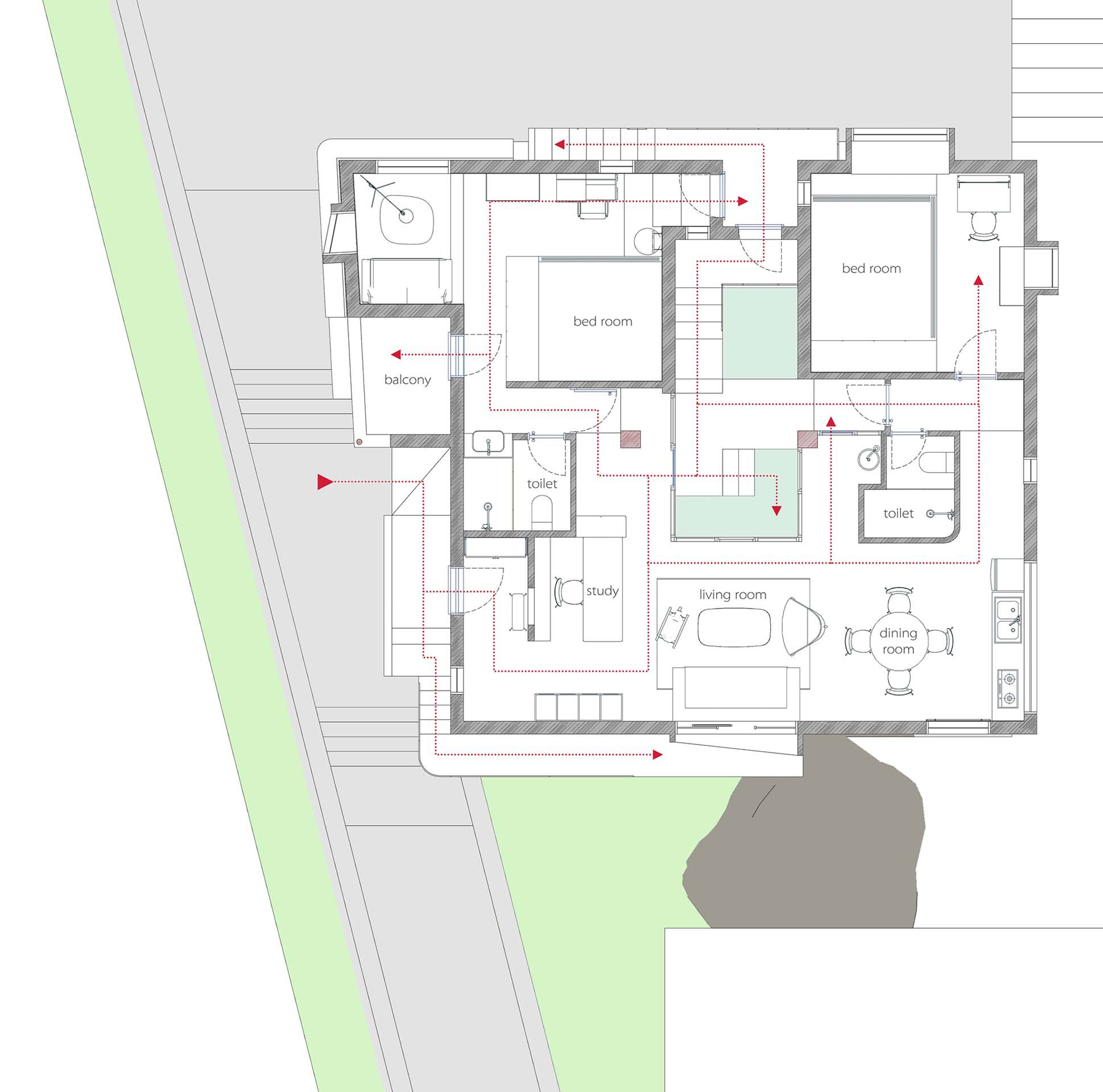
Text description provided by the architects. Ji Mu Ran is a little girl. Her parents decided to “tailor-made” a house for her in the countryside so she would have a relaxed and free childhood in a delightful environment with fresh air. Before the renovation, the site has a relatively regular building within. It is a common-looking residential house in Beijing Suburb with two rooms and one living room without any atrium.
After communicating with the clients, we decided to leave space for an atrium and further enrich the circulation relationship within the interior space.
The new layout for the architecture features a circulation style that embeds a ring-shaped corridor encircled by another one, and therefore, this design would maximize the playfulness and functionality of the house.
The house has multiple grounds which are on different levels; therefore, the spatiality within the architecture is abundant and Mu Ran can actually “play” in this house for her.
The living room is on the north side of the atrium, while on the south side, there is a door that guides people toward the external stair which is suspended on the south facade. People can climb up the stair toward the roof, and sit there to experience the changes of the four seasons.
The external stair is essential to complete the program layout of the building. And its location on the south facade will allow this stair to interact with the Great Wall on the opposite mountain’s ridge.
The east facade of this house is adjacent to the middle part of an uphill road, which is a “must-go” way for their neighbors back home. And this is the reason why both the entrance and a semi-outdoor balcony are located on this side so the house would retain and experience more warmness originating from the village context.
We kept the original configuration of the two bedrooms, but the locations of these two spaces were altered to the south side of the building. Also, we created large windows for these two bedrooms; therefore, residents can see the lush woods and the Great Wall on the ridge in their bedrooms.
Project gallery
客服
消息
收藏
下载
最近



















































