查看完整案例

收藏

下载

翻译
Architects:Anushka Dassanayake
Area:3340ft²
Year:2016
Photographs:Eresh Weerasuriya
Manufacturers:Mercantile
Structural Design:Edifice Consultants
Architect:Anushka Dassanayake
Clients:Mr. & Mrs. Gunasekera
Structural Engineer:Gihan Chathuranga
Quantity Surveyor:Madhuka De Zoysa
Main Contractor:Mr. Karunarathne
Design Assistant:Ruveka Dassanayake
City:Boralesgamuwa
Country:Sri Lanka
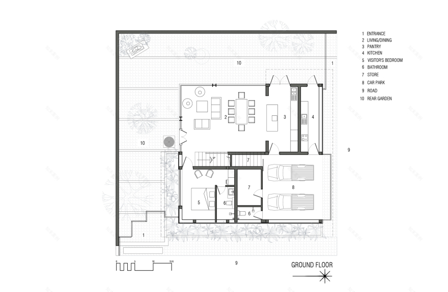
Text description provided by the architects. The site purchased by the client was a 14 perch land; bordered by an approach road and a private lane on the two sides. The requirement of the Client was for a four-bedroom house which would give the family privacy and relaxation after each busy day of work. The trees and the greenery were mostly placed towards the rear of the land. Therefore, since the initial visit; and the schematic design, it was apparent that the main spaces should be located towards the rear of the site. Starting off with this approach, the design further developed into creating an envelope of space that would reap the maximum advantage of the available greenery, in and around the site.
Considering the placement of the site, which was flanked by two roads, it provided the best opportunity to design a structure that would be sculptural and responsive to the approach roads. Therefore, today the two-storied, four-bedroom residence, stands as a sculpture; void of any boundary walls flanking the roads, yet not compromising on the safety or privacy of the residents.
The Exterior - The design comprises of two main elements that define its character. A solid rubble wall, gives the visual foundation or base, upon which sits the cantilevered, timber slatted box, which visually floats. Between the two elements lie unobstructed linear glass strip windows, which separate the heavy stone wall base from the timber structure above it. This highlights the floating effect, seemingly resulting in a gravity deifying arrangement. The house responds to the harsh environment of the dusty, unshaded road, which lies in front, via timber screen and the dense rubble wall. Yet, the same exterior gets seemingly deconstructed to absolute transparency, to merge with the shady garden and the borrowed landscape, which the rear part of the land enjoys.
The Design - The approach way to the house is through a sculptural timber slatted gate at the front, which leads to the side garden. Thereafter, the entrance to the house is through the side and rear gardens. As the most visually pleasing views lie towards the rear of the site, the main spaces of the houses are located thus. The double-height main space ensures connectivity with interior space as well as a lush and cool exterior. All bedrooms and the entertainment room, enjoy the view of the exterior; filtered through the timber screen and a foliage strip, which becomes a private pocket of greenery in each space. The foliage strip placed between the sliding windows and the timber screen compensates for the lack of a physical garden in such spaces.
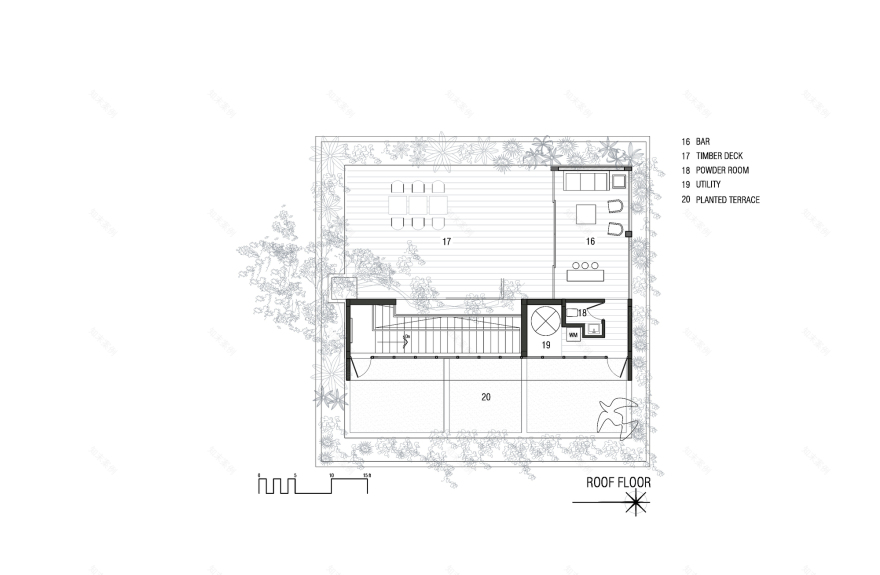
The house was designed around all the trees that existed on site, particularly a large Jak tree, which predominantly spread its canopy over the site. Preserving and integrating all the trees, provided the much-needed shade and cooling for the house. The rooftop houses a roof garden on the front portion and a lounge and deck towards the rear portion.
Climatic Response - The house was designed around all the trees that existed on site, particularly a large Jak tree, which predominantly spread its canopy over the site. Preserving and integrating all the trees, provided the much-needed shade and cooling for the house. The design is responsive to the tropical climatic conditions. The Timber screen facing the public road, not only gives security and privacy, it actively defuses harsh sunlight from the west and the monsoon rain. The cantilevered box protects the strip of glass windows, much like a roof. The double-height glazing that encloses the main space, stops 2’-0” before the slab level. This ensures maximum ventilation in the interior even when all the doors and windows are closed. This gap between the glazing and the slab provides a constant stack effect, which makes the interior a very comfortable place to live in, even during the warmest and humid months.
Finishes - The finishes of the house are modern, yet rustic and the house is void of any decorative elements and stays true to the materials used. Most of the interior finishes are of cement, timber, glass, and steel sections. The rustic appearance and the neutral palette enhance the greenery and merge the interior with the exterior.
Project gallery
客服
消息
收藏
下载
最近






























