查看完整案例

收藏

下载

翻译
Architects:Studio Ardete
Area:239m²
Year:2021
Photographs:Purnesh Dev Nikhanj
Manufacturers:AutoDesk,Lumion,Grohe,Diakin,FLOS,Honeywell,Schüco,Spacewood,Toto,Trimble Navigation,Vetromoda,Yale,wooden doors with Turakhia Veneer,wooden doors with Turakhia Veneer
Lead Architects:Ar.Badrinath Kaleru and Ar.Prerna kaleru
Design Team:Sanchit Dhiman,Nisha Singh Sarao, Nancy Mittal, Abhimanyu Sharma,Satish Sinhmar
Clients:Mr.Rampal
Civil Contractor :Mr Rohan Bansal And Shailesh
Interior Stylist:Rahool Kukreja
City:Panchkula
Country:India
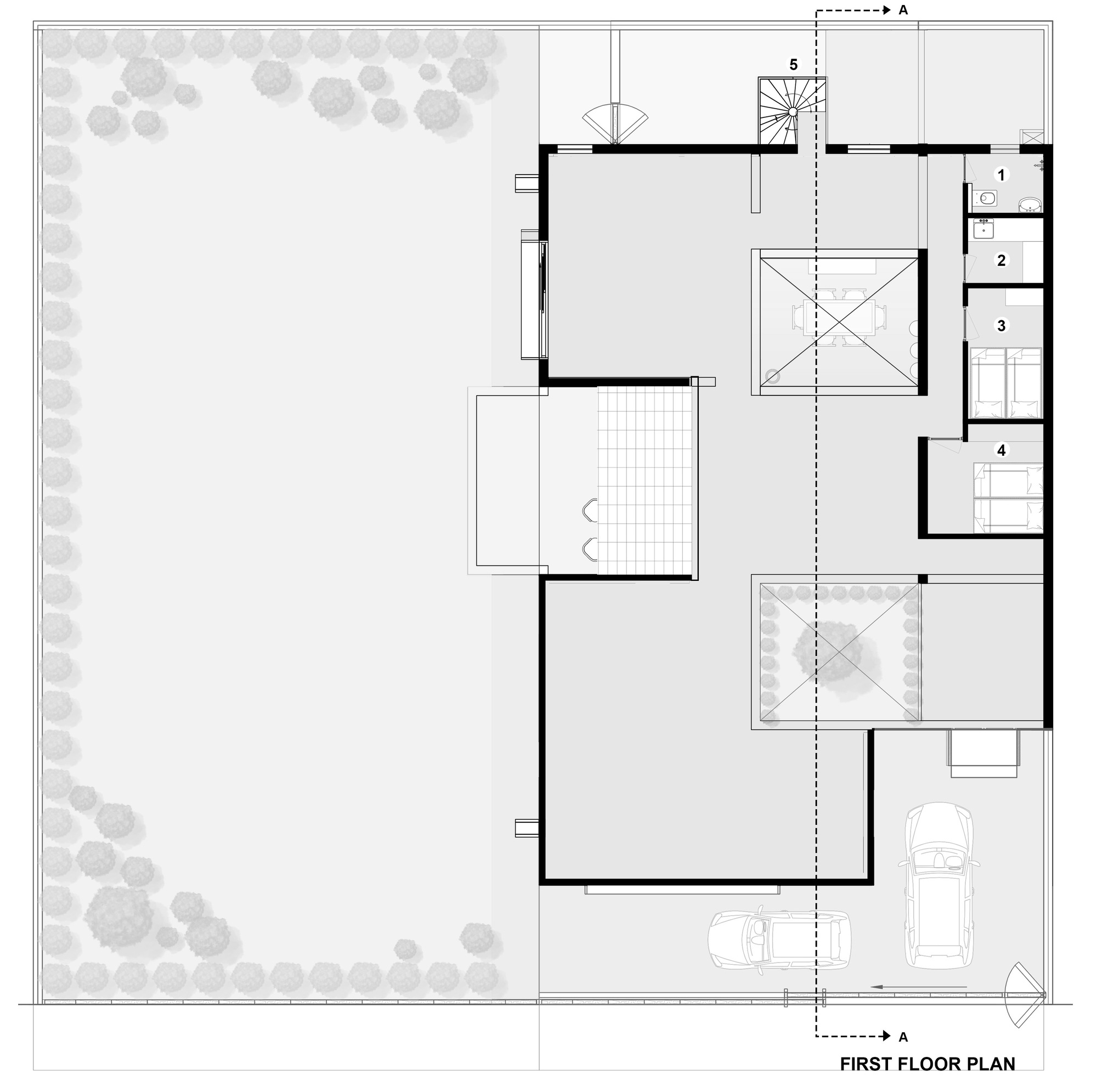
Text description provided by the architects. Located in a modest residential neighborhood of sector 20, Panchkula, the Brick House, with a plot size of 42’ X 82’, overlooks a woody park towards South and South-East across the road on the front, and shares its boundary with a lawn on the South-West, offering picturesque views of nature along two major frontages. The family consists of a couple in their fifties and their elderly mother. They wanted three bedrooms, a decent kitchen with a separate cooking area, and a large common space with living and dining. As the client was reconstructing their home, they were clear that they wanted to have unbound access to the lawn, which happens to be one of the perks of the site’s location and orientation. They wanted to make the lawn a part of their day-to-day routine.
Space - The space requirements given to us could all be accommodated on ground level; therefore, it posed a challenge for us in terms of how to introduce massing and induce the interplay of volumes to create a provocative exterior. Concept - Owing to the brief and in response to the site context, the intuitive thought process which also felt like the most obvious one, was to let nature be the guide in designing the spaces and to let it penetrate the built environment. Paying an ode to Ando’s philosophy, “We borrow the space from nature upon which we build”, we tried to bring in green wherever we could, create green amidst built wherever the space demanded, and capture its essence where we could do neither.
Story - Upon approaching the South entrance of the house through a short traverse along the lawn, one is greeted by a generous verandah which is pushed into the line of the building, decked up with flowery planter pots that the owner’s wife insisted on keeping, along with a swing set to enjoy evening teas on, breathing in the green of nature. The verandah leads to a voluminous living space that at first glimpse would make one wonder whether they are indoors or not since it sits cradled in the lap of two courtyards that let a gush of light in. The living area is cocooned deep into the house away from the lawn to be protected by the harsh sun from the southwest. The interior composition of the spaces was envisioned as an attempt at bringing about the convergence of habitat and nature. The living space is the center of the house where most energies reside, receives serenity of nature from the lawn on the south and vitality from sunlight that enters through courtyards on the east and west. The view of the green outside is sincerely captured and put conspicuously right beside the most frequented space so that it becomes the subconscious background to the life playing inside.
The master and guest bedrooms have been placed along the South wall overlooking the lawn, making the user feel a constant connection with nature. The mother’s bedroom faces the South-East wall overlooking the park across the road. The courtyard on the east of the living is a green court lined with glass on three sides that visually and physically connects the bedrooms to the living space and instills a sense of fluidity. The courtyard sits deep into the living room to ensure mutual shading of the spaces adjoining it. The courtyard on the west of the living house's dining which further leads up to the kitchen, spice kitchen, and a service area towards the rear. The sequencing of spaces was derived from the functional patterns of the household activities. A secondary access point has been given to the service zone to avoid disruption from house help.
Design - The cognitive confluence of courtyards enhances the space by bringing in light, a hope for all life. They rise to attain double-story height, masoned with pigmented wire cut bricks, the color, and texture of which give an inherent feeling of being ensconced by the cozy soil. About a quarter of the total height of the courtyard’s wall is lined up with brick jali. The depth of the courtyard ensures that only reflected light enters during noon and jali lets in diffused light during dawn and twilight hours and so, the rhythm of light is made to dance along the tune of the brick’s music throughout the day to achieve a pacified state of thermal well-being.
Interior - The palette of the interior scheme was kept muted with specs of colors and textures of stone, walnut wood, and bricks, that are vicariously derived from the earth, to imbue in the air, a feeling of being amidst the certainty and security of nature. The spaces have been composed in a manner that retains the traditional Indian vibes of the furnishings that the client prepossessed. The warm white of the walls becomes a perfect backdrop to block printed tapestry and hand-drawn sketches made by the owner’s wife. The light walls compliment the gray flooring and red bricks, to which a perfectly balanced touch of green is infused by the plants that adorn the courtyard. The richness of walnut wood of doors and gold of brass pots add earthy elegance to the whole setup and transport you to faraway villages of India.
Exterior - The green landscape of the site surroundings leads us to choose a color and texture palette that would make the building stand out and yet, be not too loud as to subdue the peaceful setting. To manifest an interactive relationship of the built envelope with nature, an element common to both - ‘Brick’ was chosen, whereas to solidify it, ‘Concrete’ - in its raw form; brick red all the while being the contrast and gray being the pacifier, to nature's green. In keeping with Ando’s quote, “The Sun never knew how great it was till it hit the side of a building”, the two materials also enhance each other with mutual grace when lit up. The frontage of south-east and south-west opened two adjacent sides that would become the dominant face of the house visible to onlookers. This gave us a canvas to work upon.
The volumetric staggering derived from diverse spatial characteristics of the living room; courtyards and verandah, cohesively conclude to form a facade that makes even the light wonder where to hit it from so that light itself may stand out rather than the building. The graceful jail feature of traditional Indian architecture is woven into the brick masonry which equipoises the plain and tactile nature of concrete. The main door facing east is accentuated by a defined concrete frame that subtly contrasts with the brown walnut wood. The facade is ribboned with a sleek window that enhances the horizontality of the building and being a shy foot above eye level, also takes care of privacy from the front. From reminding one of the homes of their childhood, reminiscent of exposed bricks and aangan to standing proudly amidst the modern city houses, it also preserves the cultural identity of the past. The Brick House thus, truly makes a person feel belonged.
Project gallery
客服
消息
收藏
下载
最近





















