查看完整案例

收藏

下载

翻译
Architects:Philip Stejskal Architecture
Area:300m²
Year:2021
Photographs:Bo Wong
Manufacturers:EQUITONE,Bowral
Builders:Portrait Custom Homes
Landscape Architeture:Annghi Tran Landscape Architecture Studio
Design Team:Philip Stejskal, Yang Yang Lee
City:North Fremantle
Country:Australia
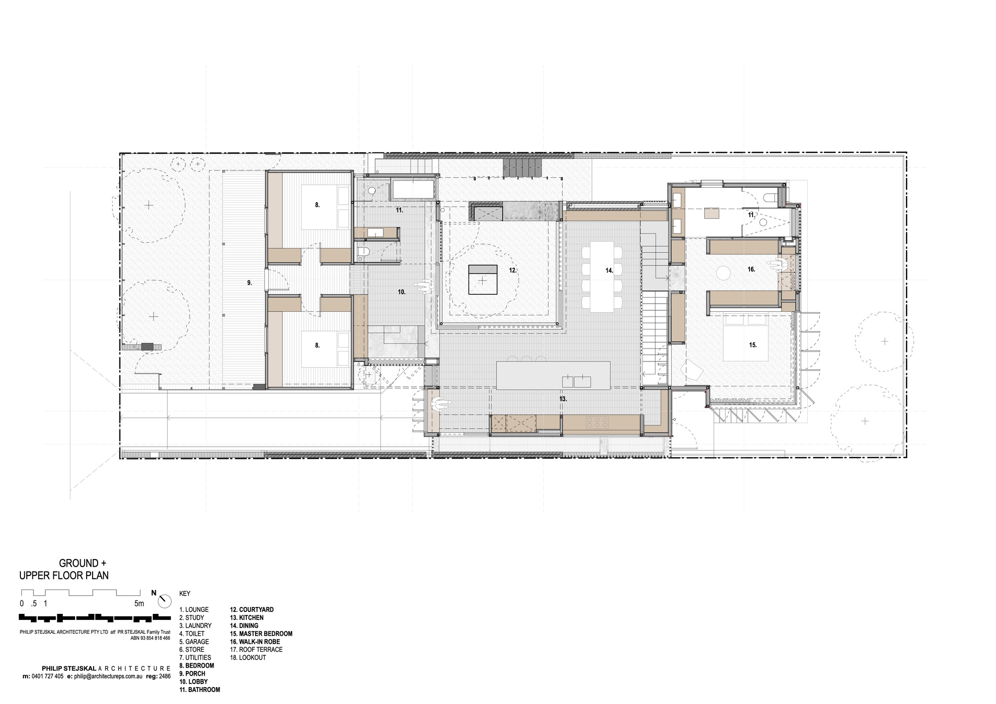
Conceptual framework: Underlying principles, values, core ideas, and philosophy of the project. This two-room workers' cottage has been substantially expanded to suit a growing family. Our response was informed by the site’s challenging topography; the compromised northern aspect; the potential to capture district views; and privacy and connection issues to the street. The design provides flexibility within a strong sense of spatial order, via a series of spaces and levels that are both separate and connected, via a central courtyard and visually permeable staircases.
Public and Cultural Benefits: The amenity of the project and its conceptual contribution to the public domain. Having lived in the house before renovating, our clients had established strong connections with neighbors that they wished to retain. The original cottage maintains its modest presentation to the street and boasts a new deck and front garden; this outdoor space is enjoyed by the family and fosters engagement with passers-by. The new elevated kitchen also connects with both the street and side neighbors; a permeable boundary wall enables food to be shared through the fence.
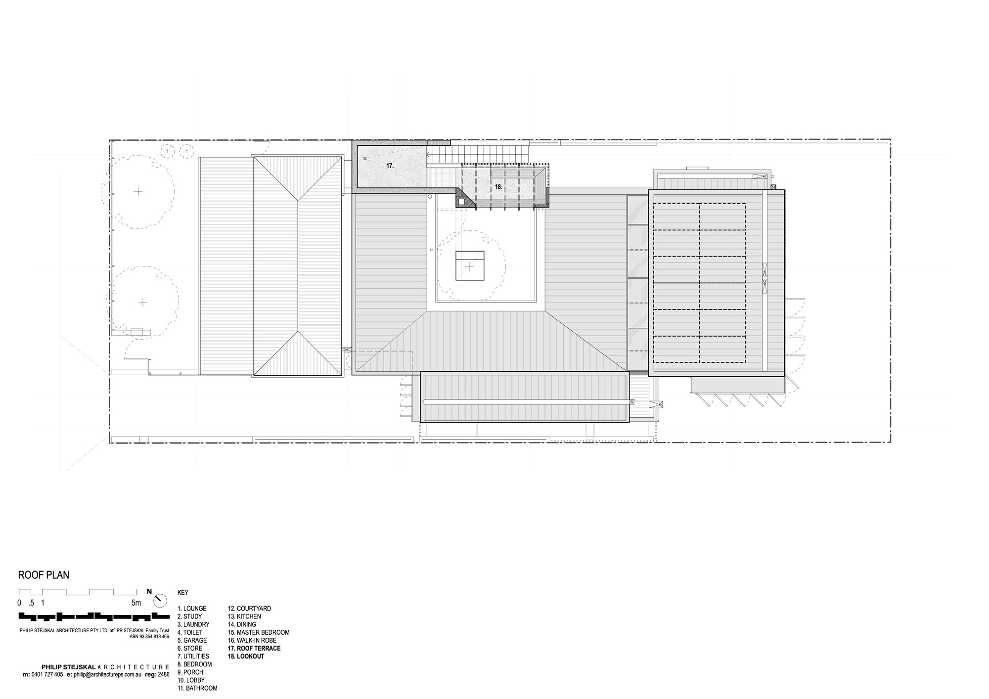
Relationship of Built Form to Context: Concepts engaged with new and pre-existing conditions. The new additions respect the scale of surrounding homes, and the material palette borrows from the local vernacular. A lookout tower on the northern boundary performs several key functions: it provides an outdoor fireplace and backdrop to the courtyard; it diverts the gaze away from the adjacent neighbor's wall, and it curates views across the district towards Fremantle Port.
Program Resolution: Functional performance assessed against the brief. Conceived before children, the house can easily adapt over time. A window seat near the kitchen is currently a play area; it could transform into a reading nook in the future. The kitchen and dining spaces open to the courtyard to provide flexible entertaining options. The downstairs living room is cozy and contained, yet still connected to other living spaces via sightlines through the open stair.
Integration of Allied Disciplines: Contribution of others, including engineers, landscape architects, artists, and other specialists to the outcome. Contributions from trusted consultants were critical to the success of this project. The landscape design provides indoor-outdoor connections from most rooms; the structural engineer detailed a light supporting structure, and the hydronic engineer resolved issues arising from installing ducting and pipework between the split levels.
Cost/Value Outcome: The effectiveness of decisions related to financial issues. A desire for minimal maintenance led to the use of zinc, accoya timber, Equitone paneling, rammed concrete and face brickwork externally, and bare stone and mild steel cupboards fronts, Paperock, terracotta tiles, spotted gum plywood, and natural stones internally. These resulted in increased construction costs but will reduce ongoing operational costs over time.
Sustainability: The benefit to the environment through design. The orientation and arrangement of spaces around the courtyard was driven by passive solar design principles. Purposefully placed openings afford good cross ventilation, and operable screens and static overhangs protect these openings throughout the year as required. Stable indoor temperatures are achieved via underfloor hydronic heating and ample thermal mass. Rainwater is stored in subterranean tanks below the undercroft garage. Hot water via instantaneous electric point-of-use systems minimizes wastage. Provision for PV cells was included in the build, and they will be installed shortly.
Response to Client and User needs Additional benefits interpreted from the brief, serving the client or users and the community. The design promotes engagement with neighbors and friends without compromising the owners’ privacy. A strong sense of connectedness – across the split levels, between inside and outside, and from public to private spaces – allows our clients to enjoy a healthy balance of togetherness and separation.
Project gallery
客服
消息
收藏
下载
最近







































