查看完整案例

收藏

下载

翻译
Architects:Martin Neruda Architektura
Area:200m²
Year:2021
Photographs:Alex Shoots Buildings
Lead Architects:Martin Neruda
Collaboration:Petr Hanzal
Main Supplier:Stavitelství Klus, s.r.o.
Garden:Lada Piskáčková
Woodworks:Jan Kořínek
City:Zbraslav
Country:Czech Republic
Text description provided by the architects. This simple village house with an attic and a small cellar stands in the middle of a corner plot in the settlement of Baně, southeast of Zbraslav. Its fate was affected by a fire that irreparably damaged mainly the ceilings and the roof. The new owners of the house were a married couple with two children who wished to reconstruct the house, add a larger garage and redesign the garden.
The proposed alterations respect the original volume of the house and its footprint. The surrounding garden has also undergone a significant transformation and can be viewed through new openings and passages of the house. The house is extended into the garden by a glazed vestibule and terrace. On the other hand, the new concrete garage is hidden under the ground in the corner of the lot and is not visible from the house at all. The garage thus creates a gentle green slope in the garden and maximizes its area.
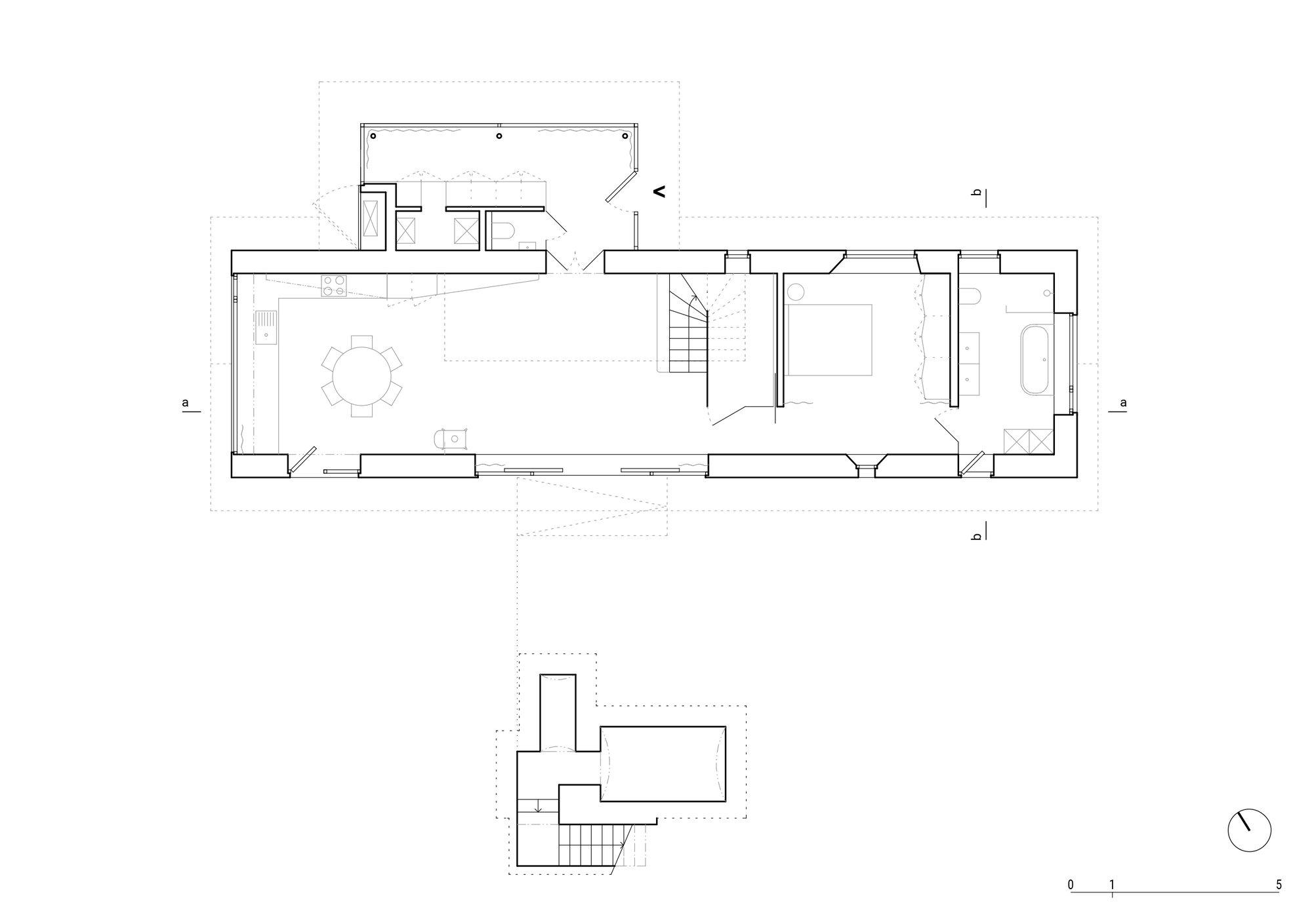
At the heart of the house is a generous living space open to the roof. It is connected to the dining room and kitchen with a beautiful view of the neighbor‘s willows and the rooftops of the surrounding houses. Behind the staircase, in the more private part of the house, there is a bedroom and a bathroom.
The gallery in the attic serves as a library with a study area, a playroom, or a place to practice yoga. The gallery leads to two bedrooms and a small bathroom. Rooms in the attic are illuminated by a strip skylight that allows the owners to watch the sky; e.g. from their bed when falling asleep.
Modest on the outside, the house is rich inside both in space and materials. The most impressive feature is the new construction of the ceilings and roof trusses. The rooms on the ground floor are dominated by reinforced concrete ceilings, whose individual ribs are triangular in cross-section. Thin steel collar beams are a structural component of the recycled roof truss.
They shape the loft space and also act as shades. The rawness and rough materials in the interior alternate with precision and elaborate details. The character of the individual spaces is complemented by delicate draperies and the colorfulness of everyday objects.
Project gallery
客服
消息
收藏
下载
最近


































