查看完整案例

收藏

下载

翻译
Architects:Estúdio Zargos
Area:330m²
Year:2022
Photographs:Jomar Bragança
Architecture:Zargos Rodrigues, Rodrigo Pereira, Frederico Rodrigues, Carla Deltreggia, Ika Okamoto, Letícia Armond, Nathalia Melo e Laís Parreiras
Production And Prop Styling:Studio Tertúlia
Model:Carla Deltreggia
Historical Heritage Consultancy:Nattalia Bom Conselho, Lorena Nilzete
Landscape:Rodrigo Pereira
Construction:Amarildo Felipe, Alexandre Bringhenti, Rubens Barcelos e Luciana Bringhenti
Civil Consultant:Qualis engenharia
Structures:Moa engenharia
Building Installations:Alexandre Bringhenti, Rubens Barcelos
City:Floresta
Country:Brazil
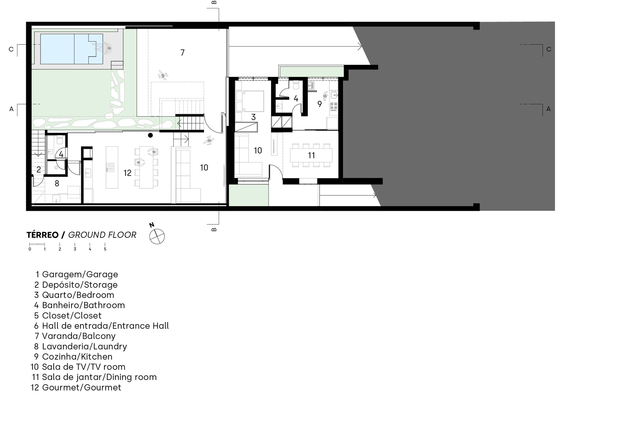
Text description provided by the architects. In a traditional neighborhood of Belo Horizonte, full of stories and values, Forest House is the union between past and present, the old and the new, a building forgotten, resurfacing with new residents in the middle of the Floresta neighborhood.
One of the last redoubts of the capital of Minas Gerais that, without losing elegance and sophistication, brings the past to the present, centennial buildings dressed with youthfulness, this is the present and will be the future. Old traces together with new materials, contemporaneity is not in the volume of the building, but in the re-signification.
The project transits between the preservation of volumetric values and the austerity of contemporary materials. The first challenge was to reverse the initial demand to completely demolish the existing building, because the original forms and proportions of this project, span decades and tell us the story of a welcoming and receptive city, just like the neighborhood, without losing sight of the main goal, to make Forest House much more than a house, a home.
Project gallery
客服
消息
收藏
下载
最近




































