查看完整案例

收藏

下载

翻译
Architects:HILBERINKBOSCH Architecten
Year:2021
Photographs:René de Wit
Contractor:De Visser Bouw & Onderhoud
Landscape Architect:Buro Oslo
Constructor:Raadgevend Ingenieursbureau van Nunen
Team:Annemariken Hilberink, Geert Bosch, Frenske Wijnen
City:Berlicum
Country:The Netherlands
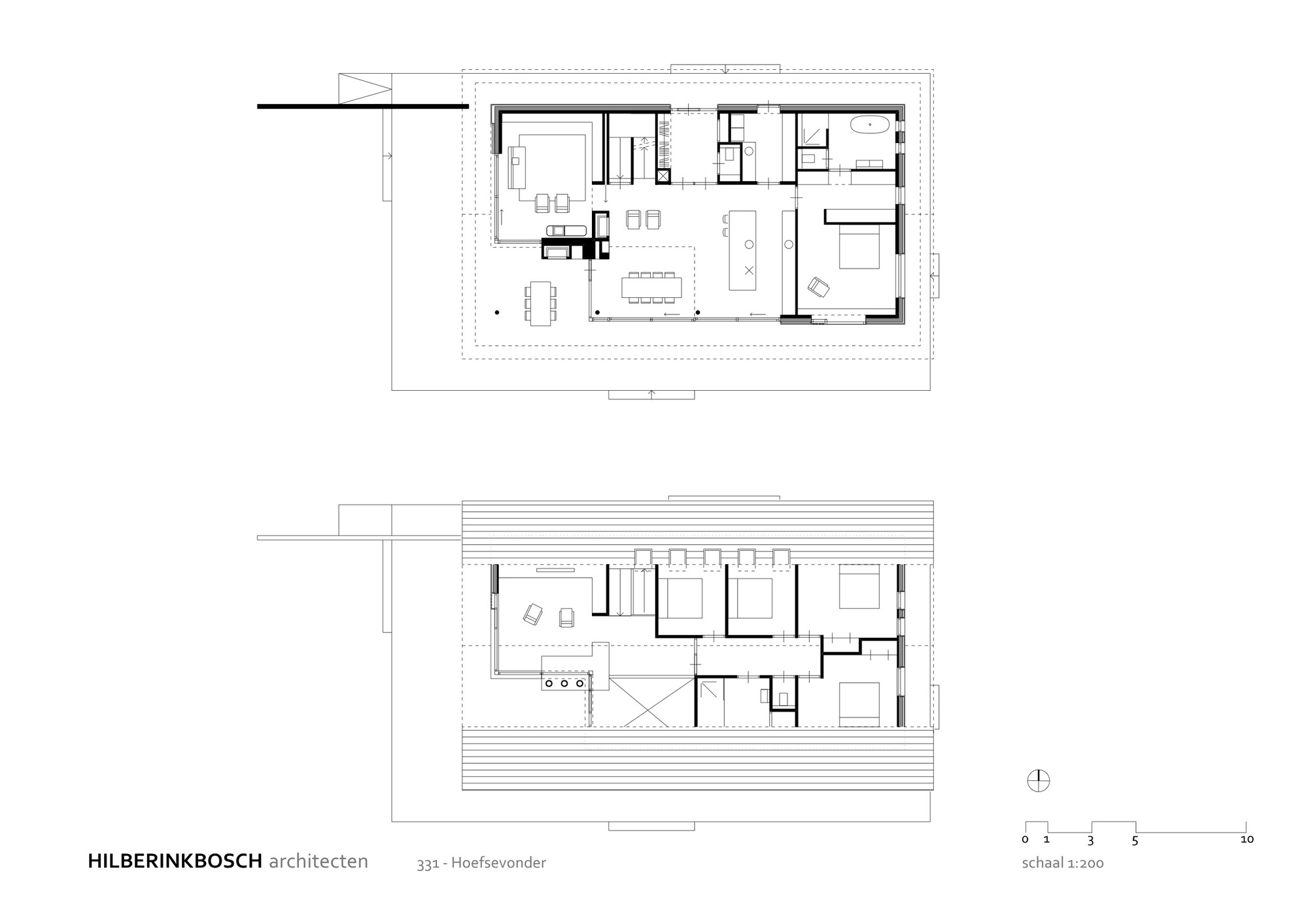
Text description provided by the architects. The Hoefsevonder estate is a new nature reserve of almost 6 hectares with room for two houses of which we designed one. The rural house on the southern plot is optimally located in the sun, adjacent to the new nature reserve with wet grasslands, flower meadows, and forest plots, and has an open view of the farm landscape. The plot is bordered by wooded banks and a wide ditch where deer pass and roam in the evening.
This new landscape continues on the property's plot, in a garden with wildflowers, grasses, and a natural swimming pond. Slightly raised above the landscape, the house stands asymmetrically on a large concrete terrace, creating more space for seating on the south side.
A large roof, loosely placed on simple, thin, round columns, protects the living area. On the ground floor, there is a complete living, dining, and sleeping program. The upper floor has a large office with a distant view over the surrounding landscape. Here are also the extra bedrooms for the children and guests.}
The materials of this house support the relaxed location in a natural agricultural landscape. The roof covering is made of ceramic slates in mixed orange-brown color, matching the surrounding farms and barns, which are often covered with orange tiles. Wooden parts in a dark color envelop the more private residential functions. And where the interior opens up to the landscape, the boundary is formed by large glass fronts with thin aluminum frames. The large sliding doors can be set up, allowing the outside to blow in.
Project gallery
客服
消息
收藏
下载
最近

















