查看完整案例

收藏

下载

翻译
Architects:SAI Architectural Design Office
Area:100m²
Year:2020
Photographs:Norihito Yamauchi
Architectural design:Satoshi Saito
Structural Design:Syunsuke Sako
Program / Use / Building Function:Residential
Country:Japan
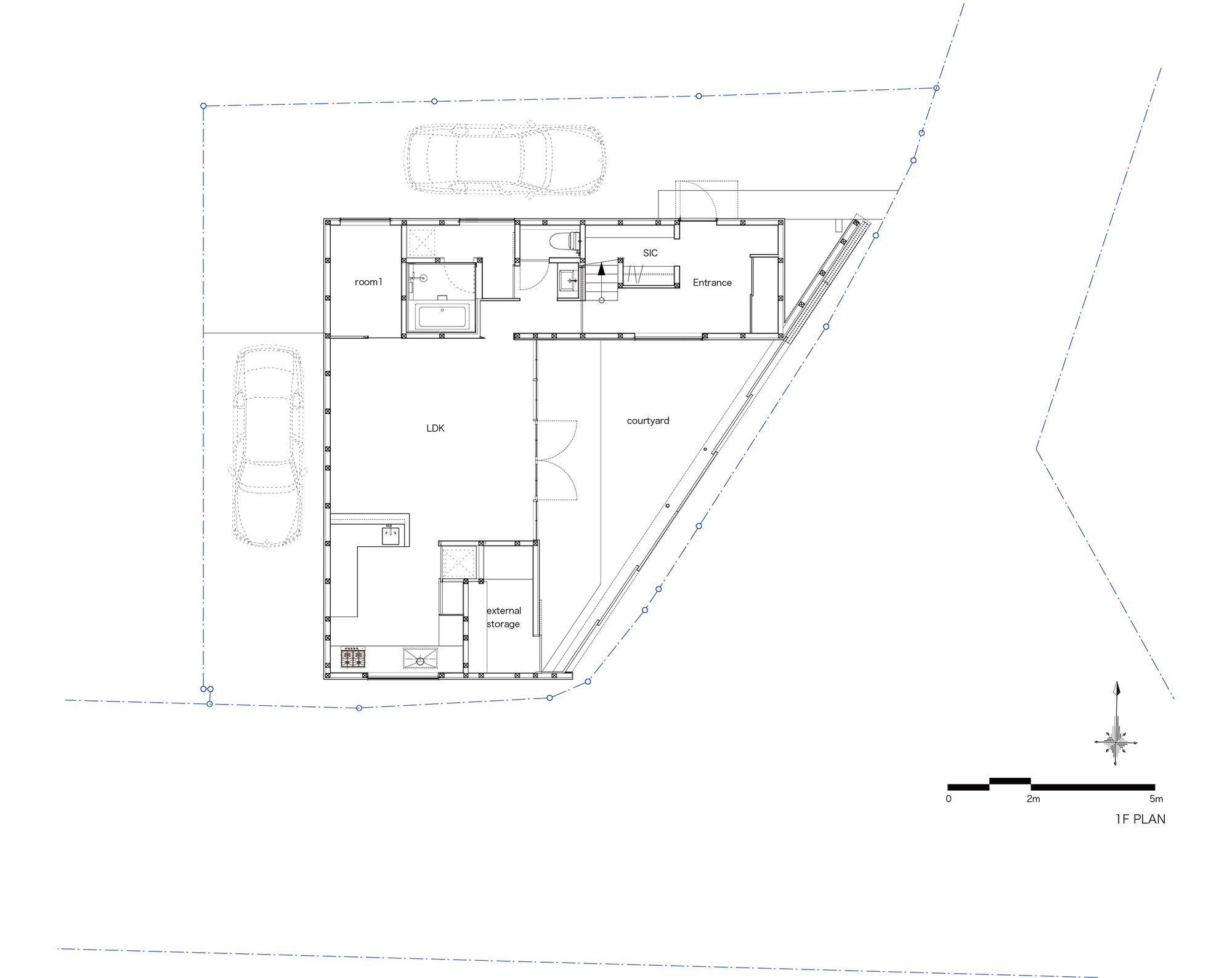
Text description provided by the architects. Planning for a house on a corner lot located in a cluster of mountain villages. The client wanted the house to be a store and residence in the future.
In many cases, when a house and a store are combined, the areas are clearly divided, but in this project, the living room, dining room, and private rooms where the family relaxes are also used as stores, making the house a place where one can go back and forth between private and business life without borders.
A single wall wraps around the entire building, and large fittings are installed in some areas so that the residents can freely use the space as both private and public space. We aimed to create an architecture in which the house can support the residents in various scenes more than just its function as a home.
Project gallery
客服
消息
收藏
下载
最近
















