查看完整案例

收藏

下载

翻译
Architects:SOHO Architects
Area:4000ft²
Year:2022
Photographs:Varun Gopal + Abin Biju
Manufacturers:Saint-Gobain,Dtale,Hafele,Lioli,Tostem,VitrA
Lead Architect:Suhail.A K
Structure Engineer:Clostre
City:Kozhikode
Country:India
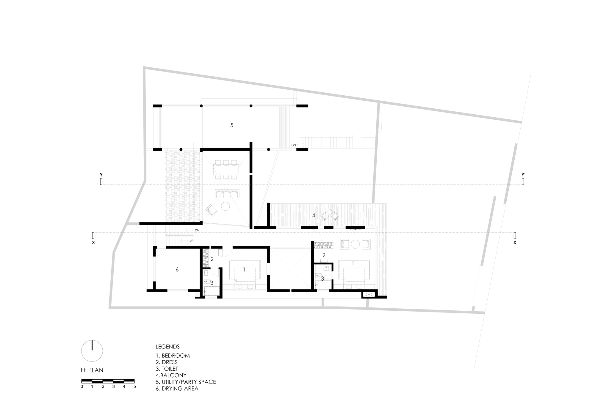
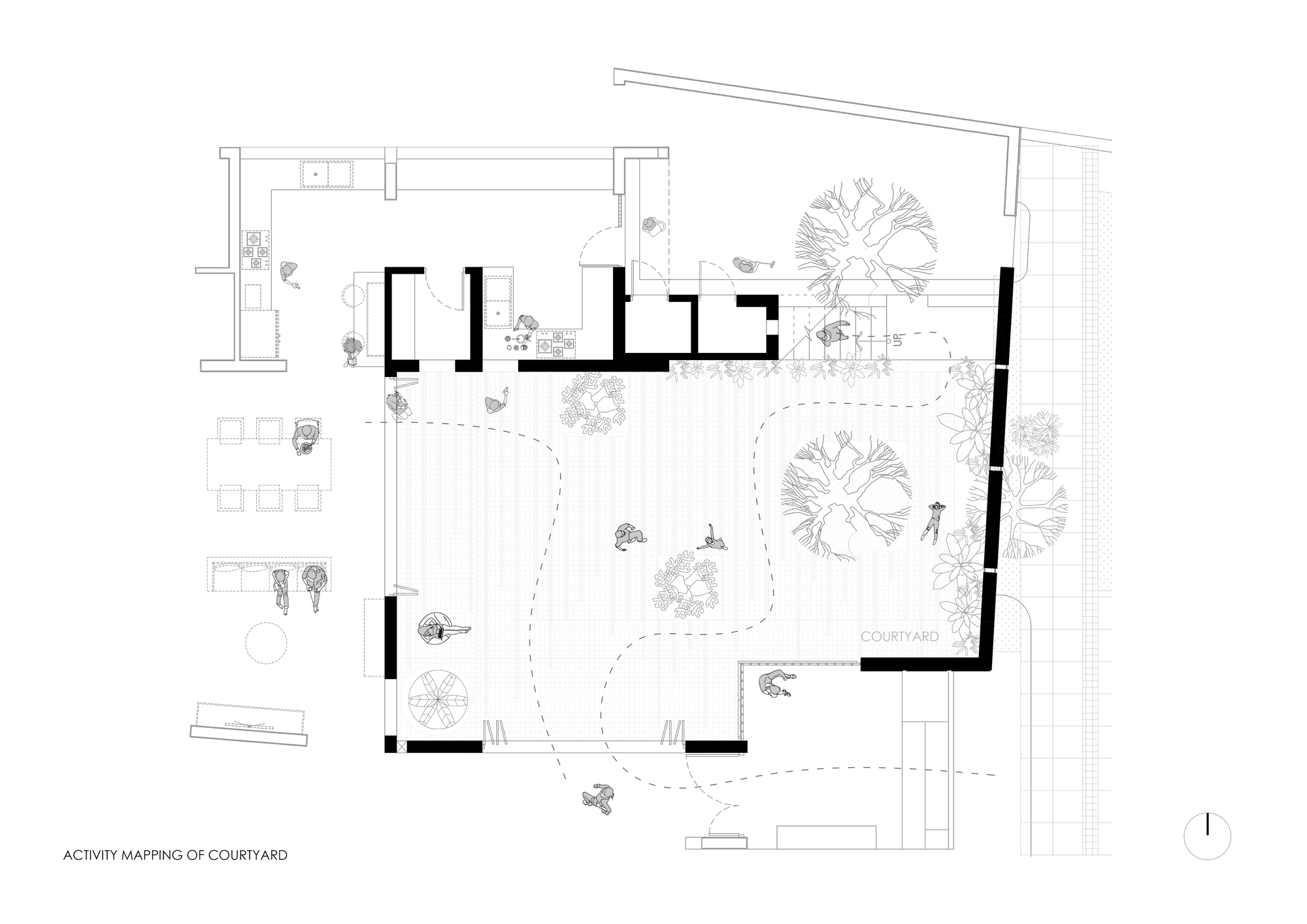
Text description provided by the architects. Set amidst a fairly occupied locality, a few kilometers away from the National Highway that connects Kochi and Kozhikode, two coastal cities in the southern state of Kerala, the east-facing site was already sided by houses on its north-south boundaries, which became a deciding factor in the massing design of the residence. The residence was envisioned as three blocks with the majority of openings directed towards the central courtyard, shielded from the front road by a screen wall allowing the breezes to rustle in while establishing the required privacy.
The morning sun brightens the entirety of the family living and dining spaces acting as the connecting block of the residence. The taller south block harbors the double-heightened guest living and bedrooms, with minimal openings to counter the harsh southern sun, while also shading the courtyard in the afternoons. Restricting the upper floor to the south block and limiting the ground floor height to optimum was a fundamental consideration contributing to the improved mobility inside the residence.
The terracotta tiled truss roof abutting the west side of the family living creates an ambient spot to unwind while ensuring maximum thermal insulation from the western sun. According to the additional requirements from the client, the first floor of the north block incorporates an open-air party area overlooking the central court is all set to get a steel trellis roofing also acting as a thermal barrier to the floor below.
Alongside the family living overjoyed in pastel hues, the dining is characterized by a rough-textured monolith as the tabletop, with wooden legs and chairs tastefully finished in Burnt Amber adds to the cosiness of the overall space. The interiors are graced by charming artworks done by our interns, revering the heritage of ingenious Indian fabrics sublimely setting the moods required for different spaces. The resultant built, embodied in the shades of cement, wood, stone, weathered steel, and crisp white, is well-complimented by the tropical flora introduced to the site.
Project gallery
客服
消息
收藏
下载
最近




















