查看完整案例

收藏

下载

翻译
Architects:Ao Cubo Arquitetura
Year:2017
Photographs:André Nazareth
Authors:Edna Maeda, Lessa Rust, Paula Paiva e Pedro de Hollanda
Collaborators:Mafe Leão
City:Araras
Country:Brazil
Text description provided by the architects. Located in Araras, Rio de Janeiro, on a plot of approximately 20,000 m². The project's premise was to understand the terrain, its insolation, respect its characteristics, allowing the trees and the topography to indicate the best place to build the house with the least possible earth movement. The generous surroundings in the landscape favored the choice. The great challenge, which revealed itself along the way, was to combine contemporary architecture, with simple and straight forms, objective in its functions, with the interior that would receive Brazilian modernist furniture, objects, and works of art. Steel, concrete, wood, and glass, timeless materials, appear throughout the volumes and execution details.
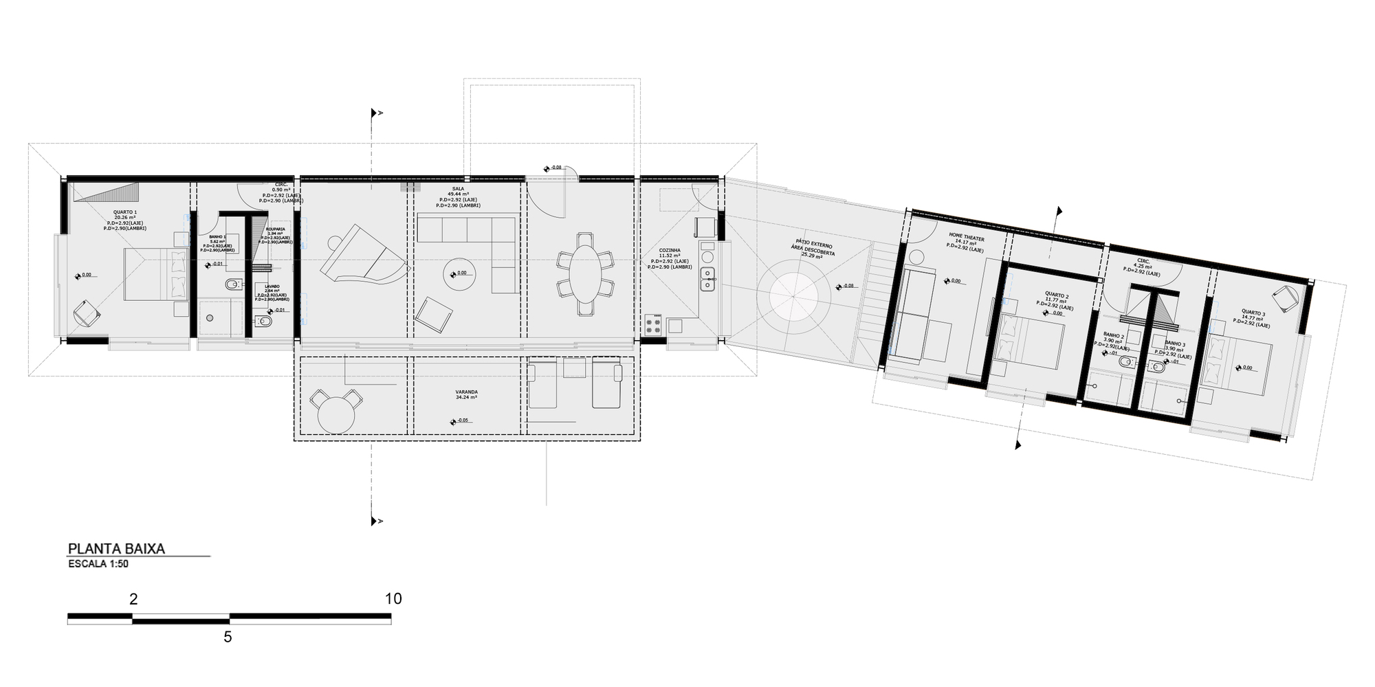
The house was divided into two fundamental blocks, each with two floors. Access is on the first floor, which is reserved for the social and intimate areas, while the second floor is reserved for the services and leisure area. The transition would take place through a patio and a circular cut in the slab cleared the way to the growth of a single tree, the Pau-Mulato, with a reddish and polished trunk. On the access floor, the first block would function as the main module with a living room, balcony, kitchen, toilet, and master suite. The second block, as a guest module, would have two suites and a TV room.
In the main block, we chose the neutrality of the concrete on the facade, arranged in irregular vertical panels, defined by the wooden forms, marked by the impression of their random knots. The client asked for a traditional, colonial-style hipped roof with a generous eave to protect the frames. The frames have two independent sets. The external set is aluminum with electrostatic painting in black and the internal one is designed in steel with a perforated plate, filtering the light and replacing the curtains. On the balconies and accesses, we opted for the generous balance of the steel marquees and thermo-acoustic roof tiles as horizontal elements that would not interfere with the roof's volumetry.
In the second block, we brought the warmest temperature of the cumaru wooden boards, with their strong orange tone, also placed vertically with alternate widths. In contrast to the larger block, we adopted a single slab that led us to a “wooden box”. In order to keep the space from turning too hot during the summer, we suggest a green roof, with a low-maintenance honeycomb system.
To protect the facades, we designed an eave with metallic profiles, glass, and wooden slats that acted as brises and generate abstract and geometric shadows. Also, to receive sunlight, a starry sky, or the moon, we put ventilated skylights in the bathrooms in place of windows. On the floor of the leisure area, we have a dry sauna, shower and cellar with a single-lane pool in exposed concrete. The choice of concrete allows the water to take on the color reflected by the sky and, somehow, to integrate better into the context.
Project gallery
客服
消息
收藏
下载
最近

































