查看完整案例

收藏

下载

翻译
Architects:NV Arquitetura
Area:530m²
Year:2020
Photographs:Cristiano Bauce
Manufacturers:Indusparquet,Artezan,BO jeito de Morar,Casa de Alessa,Casiere,Espaço Gourmet,Esquadrias Scheid,Hidrotec,Katia Pedras,Luz e Luz Iluminação,Móveis Kunst,Ornamentto,Saccaro,Tidelli,Uniflex,Zandonai
Lead Architects:Emília Bagesteiro Riegel, Nivia Vittore
City:Jurerê
Country:Brazil
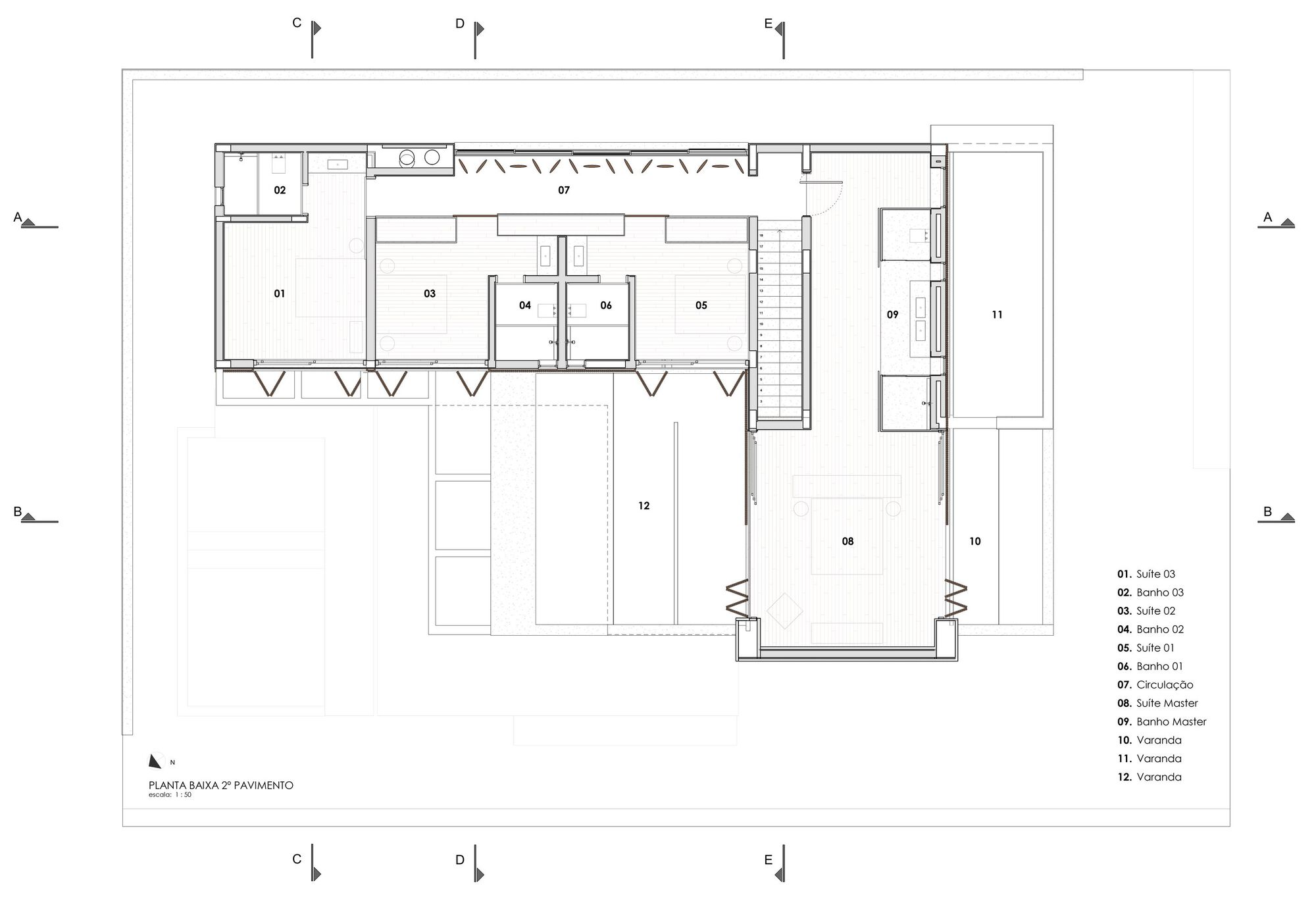
Text description provided by the architects. When the main guidelines for the project were socializing with the family, and spending free time together in a summer house but still maintaining privacy, comfort, and practicality, the vision for this project became very clear to us. Florianópolis was the city of choice for this contemporary house, in which the primary goals were discretion and easy maintenance. As it is a summer house, the environmental conditions were, more than ever, fundamental for the implantation of the house. Integrated spaces and uses, with excellent ventilation and sunlight, combined with strategies such as the installation of solar photovoltaic panels as well as a cistern to capture and use rainwater, were the main decisions to provide thermal comfort while requiring the least amount of electricity.
Natural materials such as wood and stone, in addition to concrete, were carefully chosen. The use of minimalist windows and door frames, permits the full opening of the span and the leveling of the floor, allowing the rustic rock flooring to enter freely from the external area to the interior of the entire ground floor, resulting in an exciting space, like a large balcony where nature and living area are in perfect harmony.
However, one of the main highlights of this project is the tall wooden brise soleil that maintains privacy on the upper floor of the house, without losing the advantage of the wonderful light that is filtered through the delicate leaves of the surrounding vegetation, which draws lace-like shadows throughout the circulation floor that leads to the bedrooms, bringing a delicate sensation of extra freshness on the sunniest days of summer.
Project gallery
客服
消息
收藏
下载
最近



































