查看完整案例

收藏

下载

翻译
Architects:Fletcher Crane Architects
Manufacturers:GIRA
General Contractor:Project 1 Design + Build
Structural Engineering:MDA Structures
Inspector:MLM
Sap Consultant:Surrey Energy Management
Joinery:Creative Edge Furniture
Metalwork:METALWORK
City:Ealing
Country:United Kingdom
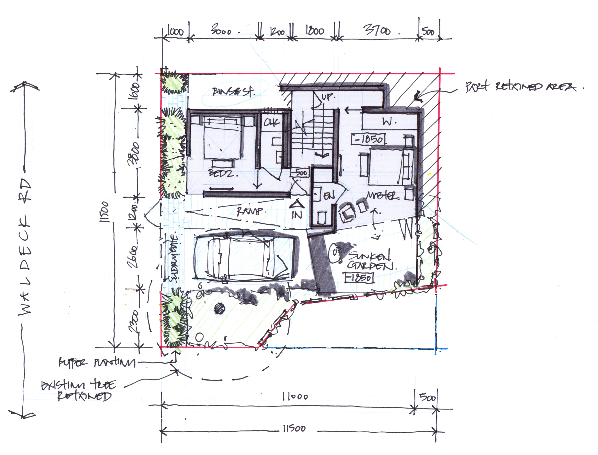
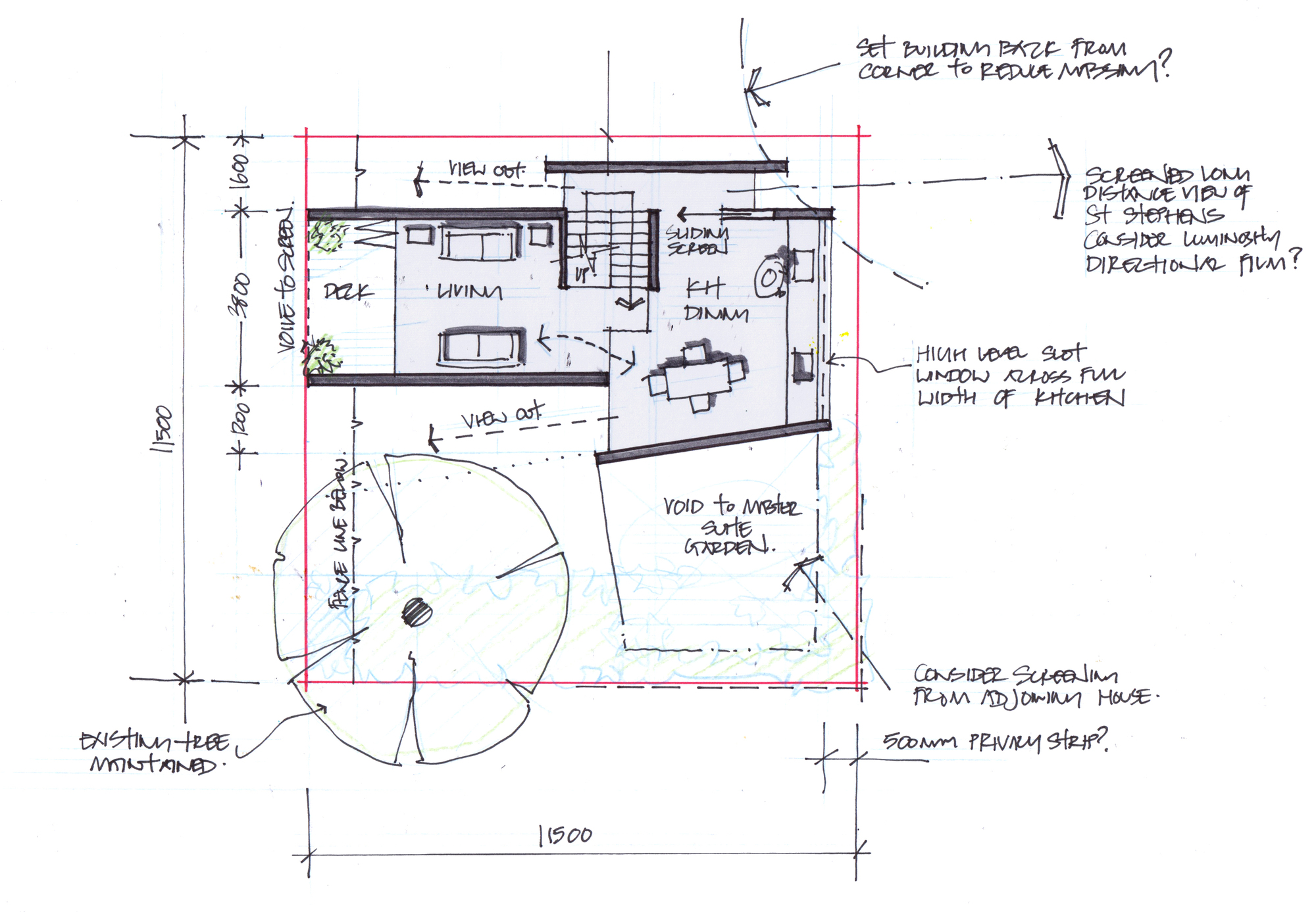
Text description provided by the architects. In Ealing, this two-bedroom home is stitched assertively into the street scenography. The former garage site bounded by rear gardens created a series of constraints yet consequently generated an articulated series of volumes when read with the whole street.
Using primarily three exterior materials: grey brick, black timber, and tubular metalwork, the palette is simple where the rough facing brick and flush lime mortar joints contrast the sharper and darker detailing. The simplicity and rawness of finishing are carried through to the internal spaces were brick walls, ash joinery, terrazzo tiles, and delicate metal balustrades contribute to a comprehensive vision.
Upon entering the home along the secluded western boundary, the entrance lobby leads to a rich split-level arrangement of rooms in a vertical spine of circulation. Living spaces flow from the front to the rear of the site with the kitchen and living room on the uppermost stories making the most of natural daylight.
Two bedrooms and associated bathrooms are submerged within the semi-sunken floors. A sunken planted courtyard is accessed via stepped brick planters and a paddle stair constructed of black cobble setts.
Project gallery
客服
消息
收藏
下载
最近







































