查看完整案例

收藏

下载

翻译
Architects:Vallely Architecture
Area:4680ft²
Year:2020
Photographs:Ema Peter
Manufacturers:Swisspearl,Matthew Mccormick Studio
Lead Architect:Kevin Vallely
Builder:Meister Construction
Structural Engineering:Ennova Structural Engineers
Isolated Interior Design Areas:Raveninside Interior Design
Building Envelope:JRS Engeneering
Millwork:Advance Woodcrafts
City:North Vancouver
Country:Canada
Text description provided by the architects. Sitting at the foot of Vancouver’s North Shore mountains the Bridge House represents a regional adaptation to a modern aesthetic by incorporating a West Coast sensibility into its clean modern design.
The North Shore of Vancouver straddles the line between the wilderness of the coast mountains and the metropolis that is Vancouver. The Bridge House metaphorically spans between these two worlds with its West Coast contemporary expression.
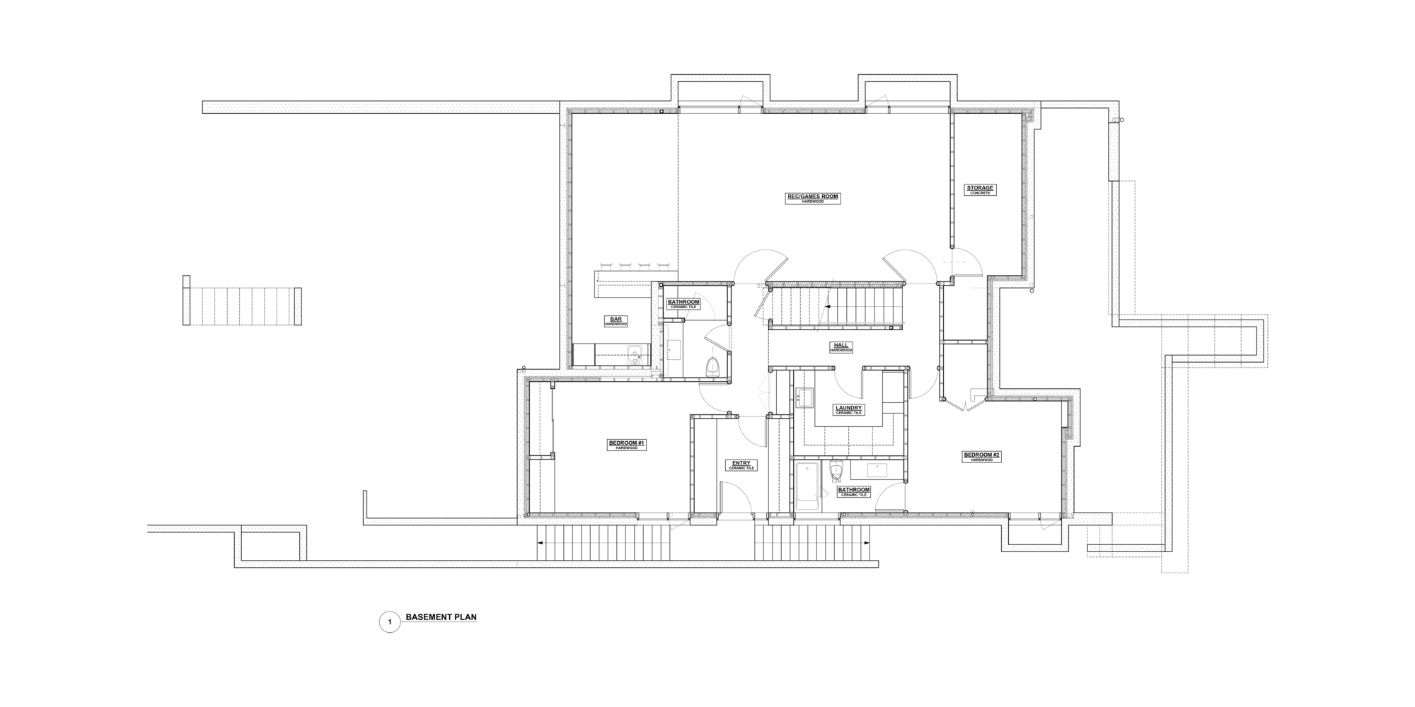
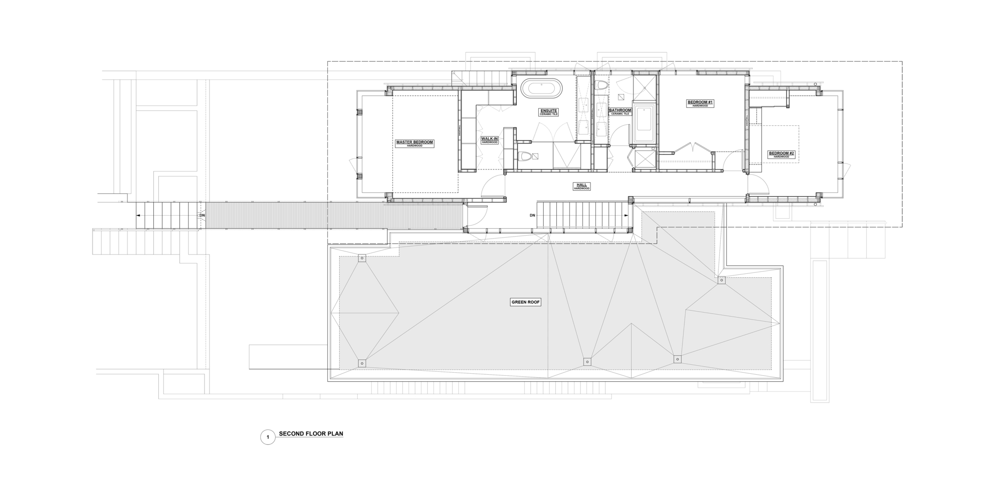
The Bridge House was given its name because of a dramatic bridge that extends from the rear yard to the house. The building site rises a whole floor level from the front of the house to the rear yard. The client wanted to enter the front of the home on the main floor at grade and wanted to maintain a connection at this level to the rear yard as well. This would require creating a sunken rear yard adjacent to the house and the concern was that this would create a disconnection to the higher part of the rear yard beyond. This challenge of grade became the inspiration for the project.
We proposed a bridge as a dramatic architectural element that would both physically and visually connect the upper level of the home to the rear yard while still providing ample space for an outdoor area beneath it. The bridge carries into and through the home becoming the central stair and the spine of circulation within the house.
Wood is used throughout the home to maintain a sense of warmth and connection to the surrounding forest. The house rises from a base of the board from concrete to a second floor clad in wood and Swisspearl facade panels. A large green roof covers much of the roof surface and presents a natural backdrop for viewers within and beyond the home.
The Bridge House pays respect to the tenets of modern architecture while incorporating distinctly regional elements of a West Coast contemporary aesthetic.
Project gallery
客服
消息
收藏
下载
最近




































