查看完整案例

收藏

下载

翻译
Architects:VIVE Design Studio
Area:1000m²
Year:2020
Photographs:Beersingnoi
Manufacturers:COTTO,Lamptitude,T. Yongkiat Glass Company,TOA,Tostem
Architect:Nirostina Nisani
City:Tambon Khlong Hae
Country:Thailand
Text description provided by the architects. The project is located on Lopburi Ramet Road, Hat Yai, Songkhla, Thailand, 3-storey residential house with a total used area of 1000 sq m., separated from the original 2 buildings but assessable to all and connected by the original swimming pool. The designer, therefore, turns the building to be visible from the swimming pool as the main and also assessable from the front as well.
Complying with the original environment is a key design challenge as it requires continuity in terms of form and functionality. While the new building must not obscure the view of the existing buildings, we, therefore, share the area of the old swimming pool as part of the new building and open the area to be able to see each other sunlight and wind. This makes the connection area relatively clear and airy throughout the day. As for the building, the front area has been opened to be large as OPEN COURT that accepted the original swimming pool. Inside, open space with Double Volume that continues from the outside to the inside. It gives a lot of airiness in the living room area and a spot that receives full natural light in the morning.
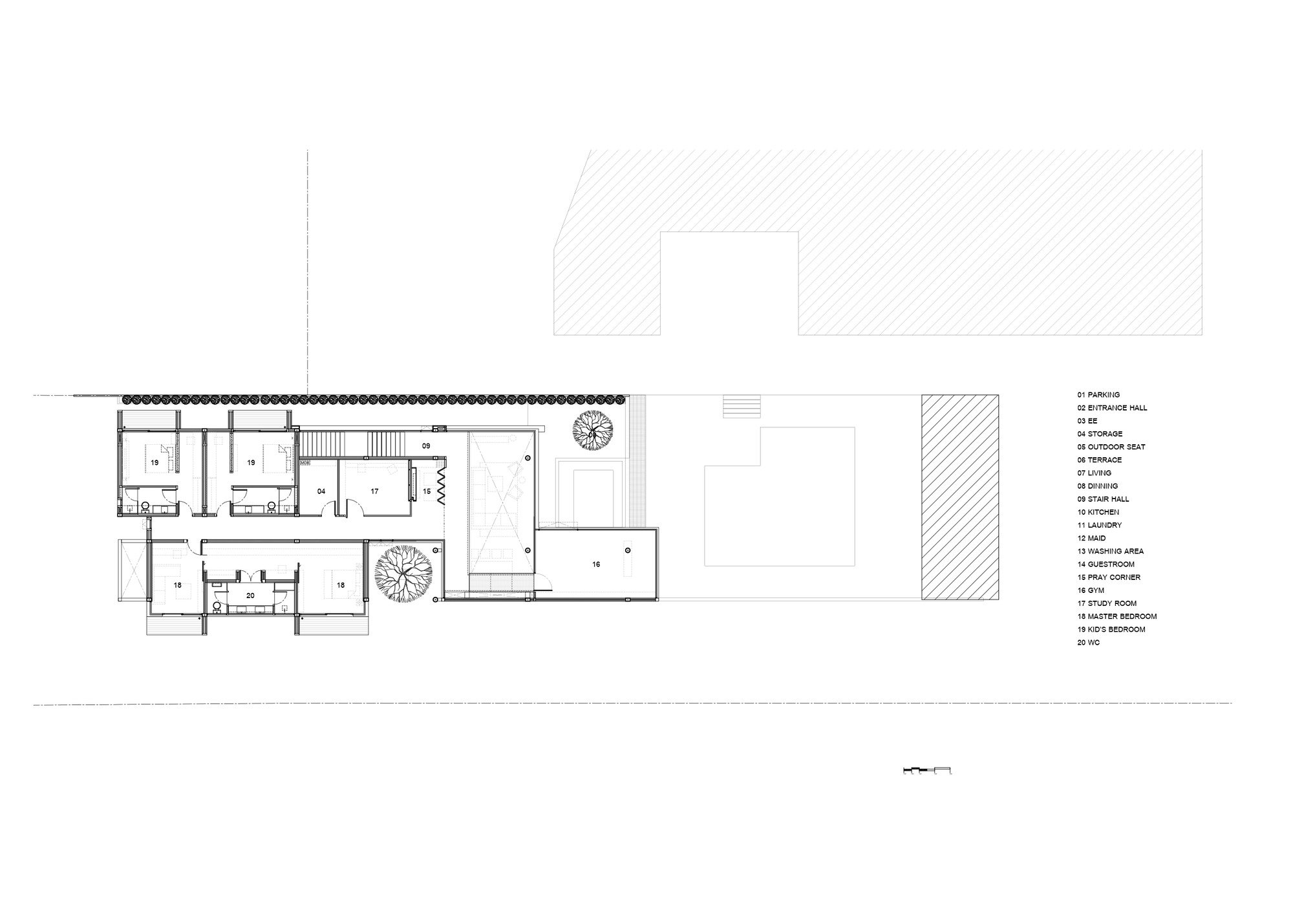
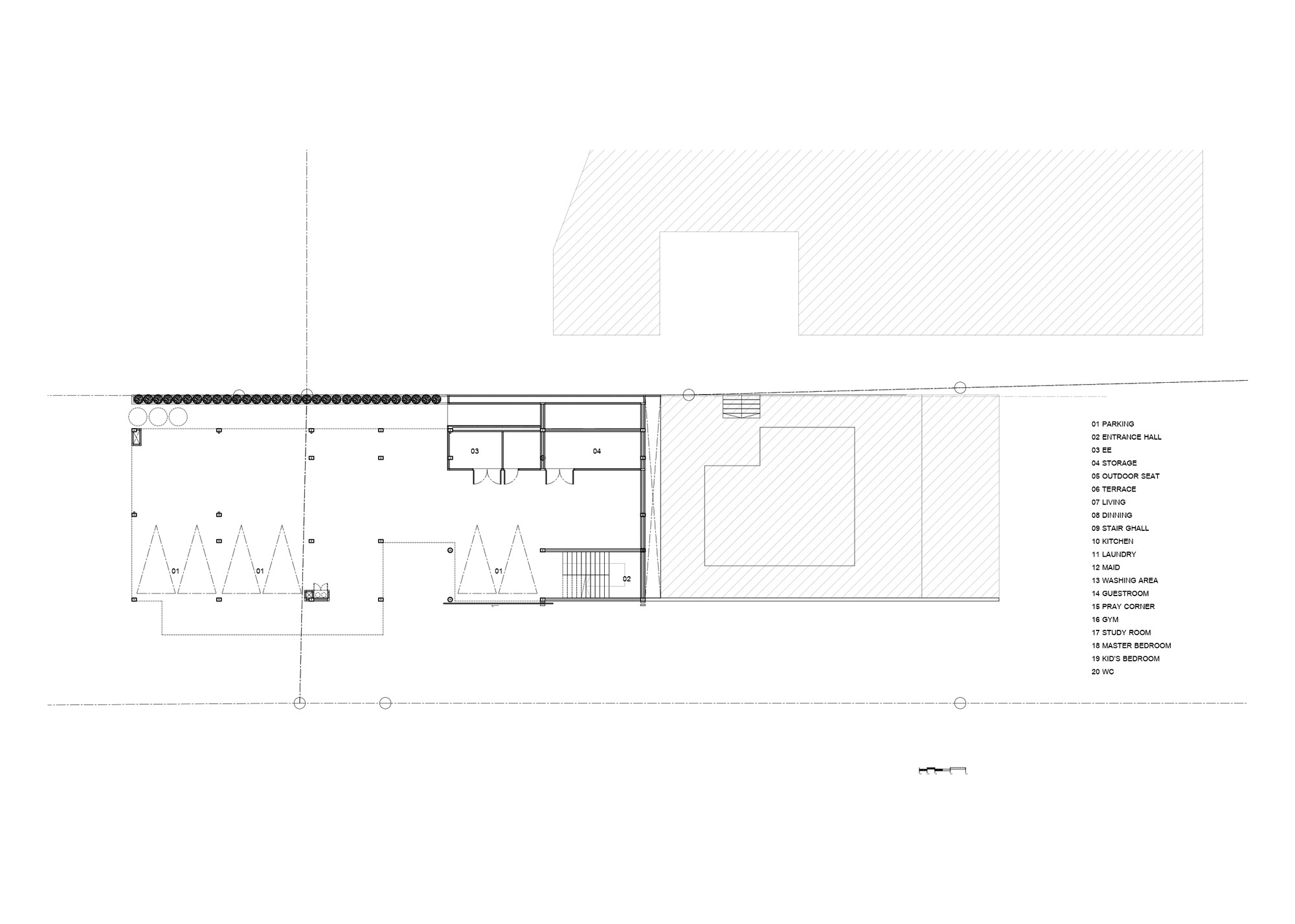
The building is divided into three floors, a car park and a control room on the first floor. An external staircase leading up from the car park faced a large open court in the center of the house, connecting all the spaces together. The Public Space, both the living room and the dining room, are open as the Open Court on the 2nd floor, with a stairwell hidden behind a stone wall always open as a void of glass to attract natural light, making the stair hall at the back airy and bright. The 3rd floor is an open hall with Double Volume. Pulling the mass of the front of the building to wrap around the open court outside with a cantilever structure that makes it look like the building is floating in midair. For the inside, connect the area of Mass with a glass corridor that floats between the Double Volume of the living room hall. The 3rd-floor area is organized into a Private Zone, making the bedroom and children's area combined on this floor in a double corridor style.
The concept of design in addition to the arrangement of the new building and the old building. The Long Span and Cantilever Structural Challenges are another concept that gives the building a playful twist and free from the rules of traditional structures. Pulling columns and beams from walls by extending the building from the Structure System, we have a Structure Element that can become a building decoration. The bare building materials reflecting the influence of Post Modernism were used for the design of the building. The interior, decorated with black stone and wood, few pieces of floating furniture are arranged according for the users. Architectural walls become interior cabinets hidden behind simple glass and wood walls. All can see is a bare wall that hides its functionality behind.
Project gallery
客服
消息
收藏
下载
最近























