查看完整案例

收藏

下载

翻译
Architects:Studio Lotus
Area:20000ft²
Year:2019
Photographs:Niveditaa Gupta,Sagar Chhabra
Manufacturers:Oikos,Ambience Airtech,Anusha Technovision,Artius India,Asian Paints,Graava,JB Glass,Mangrove Collective,Satender,Shades of India,Span Woods,Stonera,Utlratech,Vision DIS,Vyara
Structural Consultant:Japan Shah Consulting Engineers
Mechanical Consultants:Ruman Abid Hussain Consultants
Electrical Consultants:SS Consultants
Civil Consultant:Studio Lotus
Landscape:Farhad Contractor
HVAC:Ruman Abid Hussain Consultants
PMC:Save Techno Engineers
Engineering:Antrix Construction Pvt. Ltd.
Interior Contractors:Antrix Construction Pvt. Ltd.
Structural Contractors:Antrix Construction Pvt. Ltd.
Mep Contractor:Antrix Construction Pvt. Ltd.
Civil Contractor:Antrix Construction Pvt. Ltd.
PMC Contractor:Save Techno Engineers
Facade Contractor:Antrix Construction Pvt. Ltd.
Design Team:Sidhartha Talwar, Ansel Colaco, Anusha Pulapaka, Sachin Dabas, Satish Kumar, Mohit Goel
Electrical Consultant:Shishir Sharma
Plumbing:M/S Techno Engineering Consultants, SS Bhatia
Landscape Contractor:Vipul Maheshwari
Facade Consultant:Studio Lotus
City:New Delhi
Country:India
Text description provided by the architects. City dwellers in India’s metropolitan centres have been escaping to the relatively quieter, leafier suburbs in droves to spend weekends, away from maddening crowds, jam-packed streets, and air pollution. Serving as a portal to a better quality of life, suburban neighbourhoods are witnessing the proliferation of private farmhouses and bungalows where residents can spend time with their families, entertain guests, and reconnect with nature.
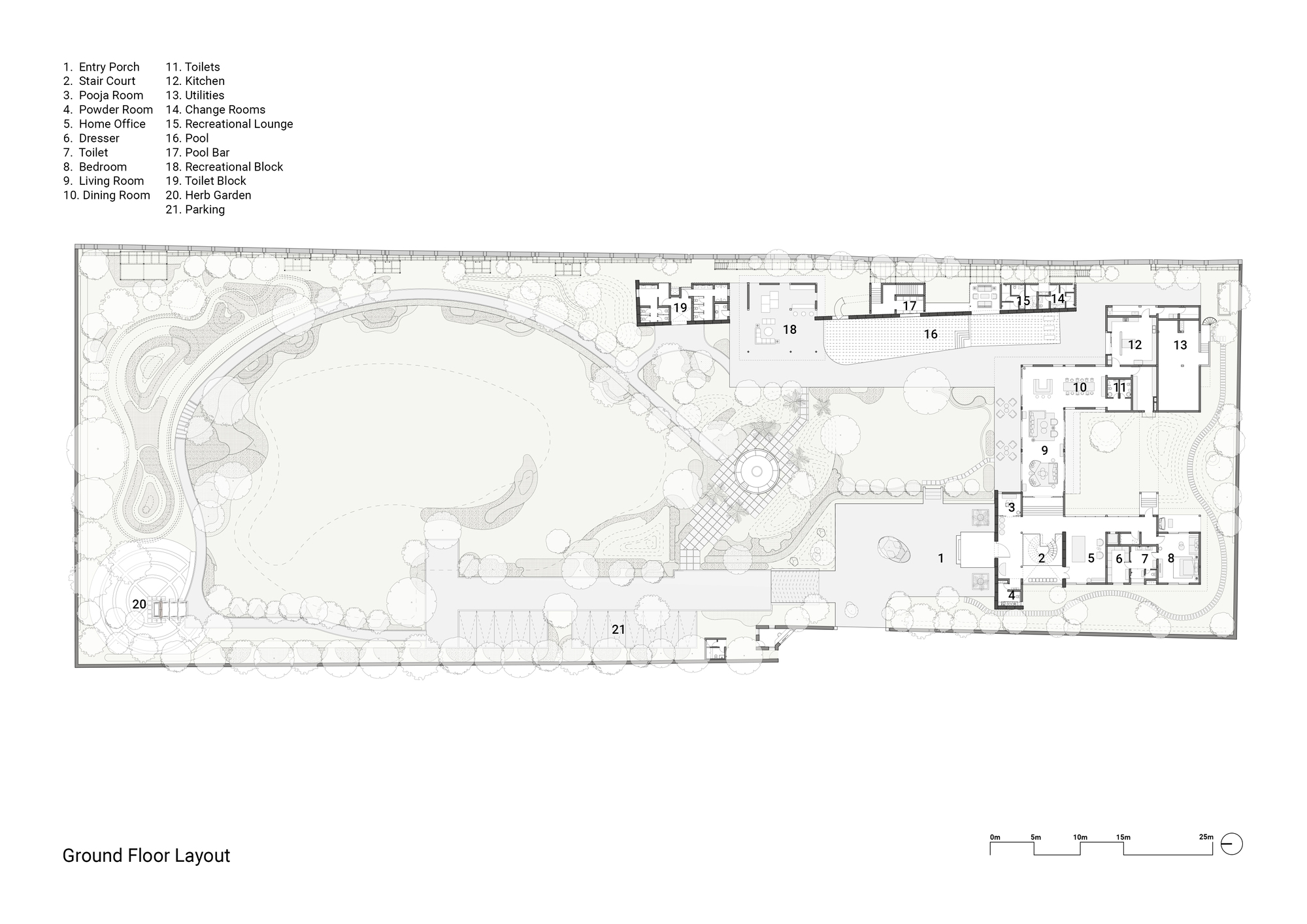
The Earth and Glass House, located in suburban New Delhi, is designed as a weekend retreat for a family looking to host friends and relatives to decompress from the chaos of big city living. Situated on a two-acre rectangular plot with one half reserved for hosting events, the house is surrounded by farmlands on three sides and a dense urban settlement on its eastern edge. The clients had a fifteen-metre-high compound wall constructed along this fringe to ensure privacy and security. Creating a landscaped zone along this wall as a buffer to the development became a starting point for initiating the design scheme.
Envisioned to provide a framework that would accommodate multiple recreational functions, this landscaped zone serves as an extension to the living area. A secondary rammed earth wall used from soil excavated during construction forms a continuous backdrop to the swimming pool. Covered walkways assembled using a grid of light metalwork, interspersed with silver oak trees retained along the site periphery are designed to further add a layer of landscape and privacy. The metal armature allows for diverse recreational activities. These include a DJ deck, a small pool house and a treehouse-like machan. The resultant interstitial space is designed to house vines, creepers and plants in irrigated troughs along the gridwork to create a dense mesh of vegetation.
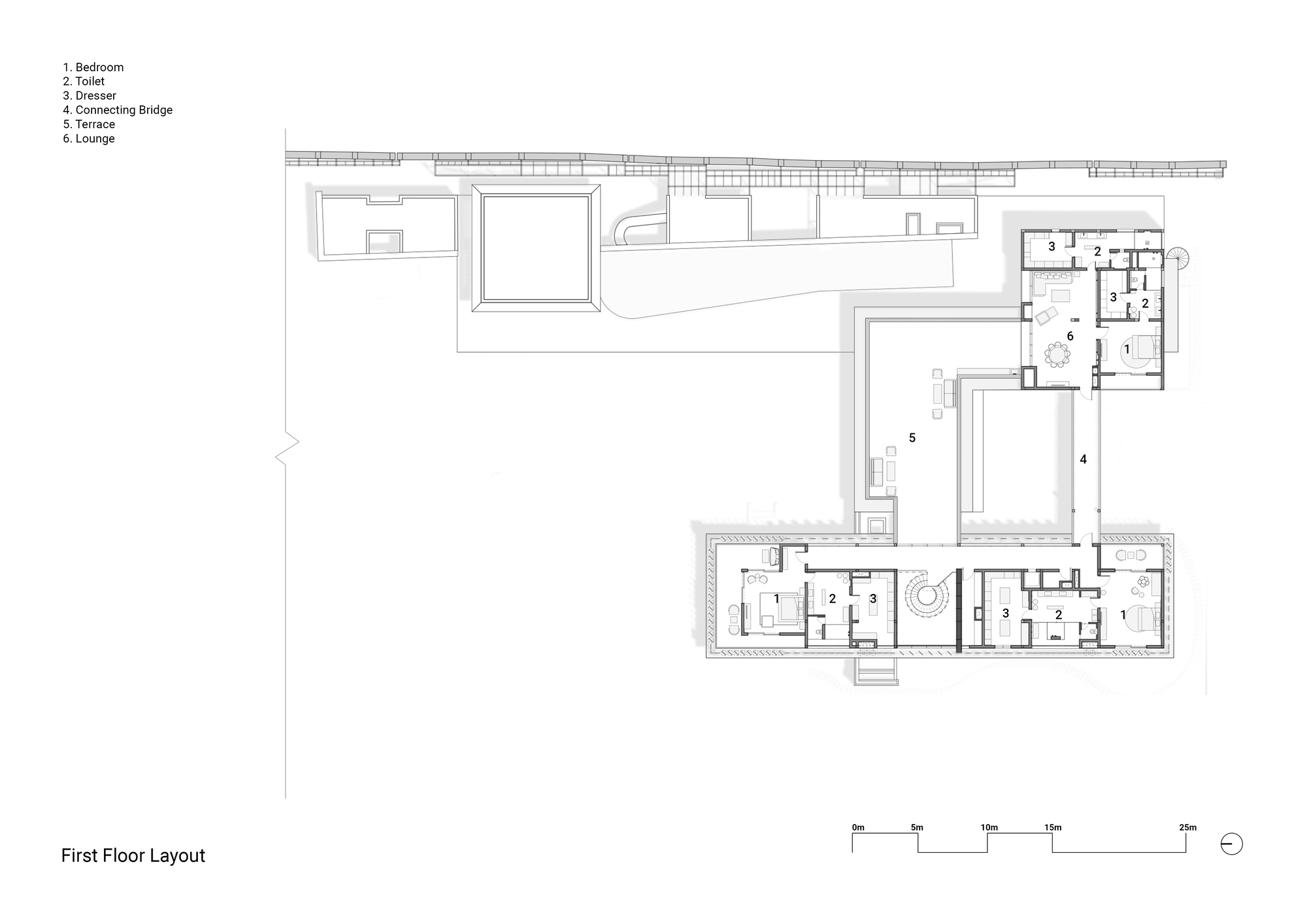
The site zoning is derived from the principles of Vastu. To let in the south sun and bring the outdoors in, the design team scooped out a winter court, opening the living area to the landscape, facilitating a seamless line of sight—from the winter court to the lawns on the north. The private spaces flank the living room, and are connected by a terrace garden and a shaded bridge on the upper level. The house brings together three construction systems: load-bearing walls made of rammed earth, a mild steel framework, and exposed RCC slabs. A key design challenge was to develop the requisite joinery and junction details to cohesively unite these three distinct structural systems.
A driveway leads visitors to the entrance porch, shaded by a ten-metre long cantilevered volume resting on a load-bearing rammed earth wall and a pair of V-shaped columns. The entryway is marked by a double-height, sky-lit court within which sits a staircase that establishes a visual and spatial connection between the shared and the private spaces. Its brass railing emulates twigs and branches of the nearby trees as a nod to nature. An installation resembling a curved timber door mimics the form of the staircase; together, the ensemble injects the space with a sculptural presence.
Designed in the form of a pavilion, the living area features panoramic glazing that ensures the interiors remain day-lit throughout. Like a work of art, a Jenga-inspired bar articulated in concrete and brass serves as a node between the living and dining areas. Beyond, the dining extends into the kitchen and utility spaces. The overall spatial experience invites inhabitants to explore the tactility of the surfaces that populate the space. Revealing the materiality of the building components is intrinsic to the design vocabulary at the house. In the living and dining area, the overarching narrative of metal, stone, and timber is reinforced through the decor and pockets of furniture. Fashioned out of natural materials such as cane and wood, the custom-made furniture articles express the client’s eclectic tastes and introduce a warm, earthy tonality into the interiors.
The material combination of metal, timber, and stone also resonate across the private spaces and find expression in the bedrooms, the baths, and the vanities. The bedrooms housed on the upper level of the cantilevered block feature timber floors that echo the colour and texture of cedar louvres wrapping around the exterior of the cantilevered block. Due to their tactile quality and colour, the cedar louvres render the facade with a touch of warmth and distinctiveness. Each louvre is also manually operable to grant the desired degree of shade, ventilation and privacy to the residents. Each bedroom is outfitted with bespoke furniture; for instance, in the master bedroom, an oakwood cabinet, through its depiction of a heron and the bakul tree in naqashi relief, captures the spirit of the season of basant or spring.
True to its concept of bringing nature inside, the bathrooms are fitted with skylights that admit diffused daylight and reveal views of the nearby foliage. Akin to the communal spaces, the baths employ a palette of timber, agglomerated stone and tiles. Vanities crafted with terrazzo, brass, and copper further accentuate the interior expression and bring in an element of understated luxury. Joining forces with Mangrove Collective, the design team engaged with an assortment of materials and artefacts to bring a sense of cohesion into the design vocabulary at the Earth and Glass House. The house converges around the idea of living in harmony with nature, facilitating fluid transitions and providing its residents with a sanctuary to unwind in and connect with the outdoors.
Project gallery
客服
消息
收藏
下载
最近






















