查看完整案例

收藏

下载

翻译
Architects:com/c arquitetura
Area:710m²
Year:2019
Photographs:Haruo Mikami
Manufacturers:Bontempo,Claramar,Deca,Hijau Palimanan,São Geraldo,Talentus
Architect In Charge:Caroline Resende
City:Brasília
Country:Brazil
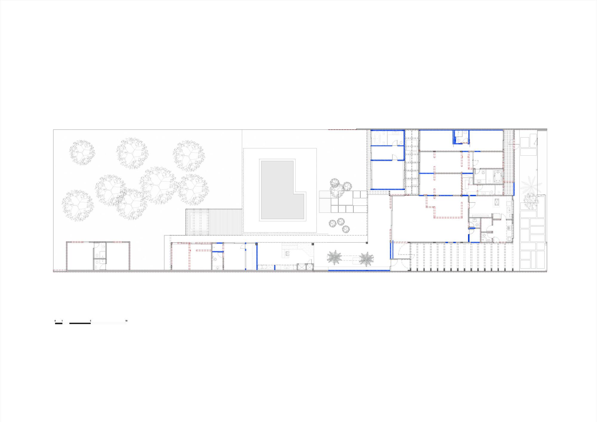
Text description provided by the architects. Residential reforms always come with challenges, for the project home 05 was no different. The young couple with two children had the need to turn the house into 04 suites, one of them being an office with an independent entrance.
There were some features in the existing house that generated a certain discomfort for future residents: colonial roof, reduced natural lighting, and limited ventilation. On the other hand, they would like to keep the wet areas, barbecue area, pool, plus large trees and palm trees.
The solution we encountered was aimed at preserving existing areas, creating a new coverage for greater integration between environments, and adapting some points with the trees we wanted to keep. We eliminated the corridor which initially provided access to the rooms and created an internal courtyard with the intention of sheltering the entries of the suites and the new master suite, also bringing the ventilation and natural lighting before lagging in the residence.
Seeking to bring contemporary elements to the project, we use burned cement on the floor and concrete texture on some walls. The intention was to obtain a contrast with the woods inserted in the muxarabis and panels that, in addition to heating the environments, brought privacy without harming natural lighting and ventilation.
To bring personality to the decoration, most of the furniture was minor in antiques, creating a charming and relaxed composition for the environments. Renowned artists from the Brazilian design of the 60s, such as Joaquim Tenreiro, Oscar Niemeyer and Jorge Zalszupin enriched the project of the house 05.
Project gallery
客服
消息
收藏
下载
最近


























