查看完整案例

收藏

下载

翻译
Architects:Tres Birds
Area:800ft²
Year:2021
Photographs:James Florio
Manufacturers:Anderson Arch Series Windows,Aspect LED,Ikea,PORSELANOSA,Paragon Stairs,Signature Services Roofing
Project Lead:Michael M. Moore
City:Boulder
Country:United States
Text description provided by the architects. One of the newest housing trends in American backyards is the A.D.U. or Accessory Dwelling Unit. An A.D.U. is a small house located on the same lot as a single-family home. It’s an independent residential unit that can be a guest house, a home for extended family, or even an office or a party space.
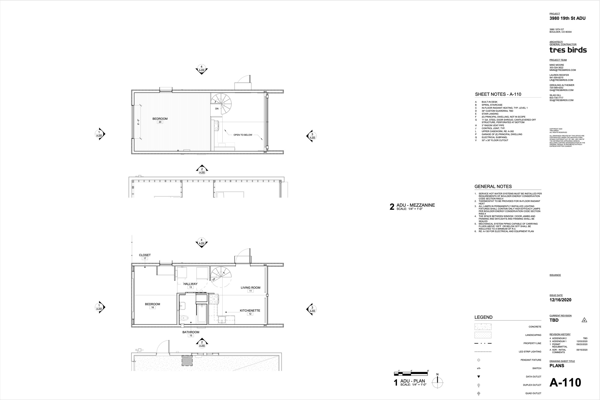
Tres Birds recently designed and built this cozy A.D.U., which echoes the aesthetic of the main house. The new 800-square-foot fully-functional home features a kitchen/dining space, bedroom, bathroom, and flexible loft space, which could be additional living space, an office, or a second bedroom. It even got the attention of the national media. Thanks to Dezeen and the Architect’s Newspaper for their coverage.
Efficiently designed, the small home reuses and repurposes a number of materials. It’s made primarily of reclaimed bowling alley lanes and plywood. The warm-toned 50-year-old bowling alley wood is used as a structurally independent mezzanine floor system and laminated together to create the east-side timber frame window system. Gleaming reject tile from a Boulder artisan is used throughout the bathroom and in the kitchen.
The skylight is made from a dichroic glass panel left over from a past Tres Birds project. As the angle of the sun changes throughout the day and season, so do the visual effects within the living space, creating a vibrant show of colored light throughout. Window locations and roof overhangs were designed specifically to maximize natural light in the home while providing adequate shading for the summer sun. In the winter, the continuous standing seam exterior is designed to be low maintenance and to quickly shed snow from its pitched roof.
The home is furnished with mid-century pieces by Isamu Noguchi (lamp), Sori Yanagi (stool), and Charles and Ray Eames (table, chairs), with artworks by Berger&Fohr, Gregg Deal, and Mike Moore The A.D.U. scores well for energy efficiency. The envelope is tight and well insulated. Radiant floor heating and cooling keep the indoor climate comfortable.
Lighting, security, HVAC, and the operable skylight can all be controlled by the occupant’s phone, integrating the systems and cutting down on energy waste. The home received a Home Energy Rating System (HERS) score of 33, not far off from Europe’s stringent Passive House requirement of HERS 20. For reference, a new standard home scores HERS 100, and an Energy Smart home scores HERS 85.
Project gallery
客服
消息
收藏
下载
最近

























