查看完整案例

收藏

下载

翻译
Architects:Lescano-Puente arqs
Area:450m²
Year:2018
Photographs:Luis Barandiaran
Manufacturers:AutoDesk,ACINDAR,LUSICH E HIJOS,Portobello,REHAU
Lead Architects:Juan Manuel Puente, Martín Lescano
Structural Engineering:Carlos Albi
Drawing:Dante David Cabral
Enclosures:Rehau
Profile Structure:Gilberto Hermanos
City:Ringuelet
Country:Argentina
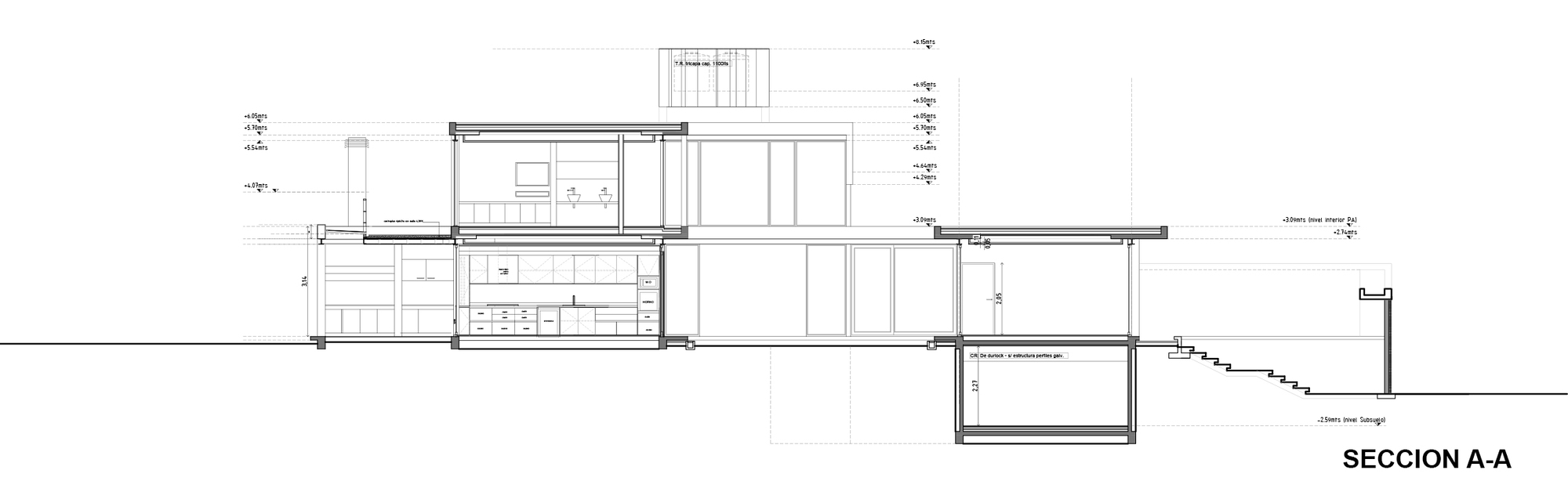
Text description provided by the architects. An old country house subdivided into 2 plots and located in the heart of Ringuelet with the particularity of being 1.50 meters above the level of the sidewalk is the setting where this house is located.
Through the use of different level plans, it was proposed to articulate a sequence of patios and terraces which graduate from the noisy and busy avenue 7 towards the intimacy and tranquility of the old trees that have so much presence in the place. This unevenness also made it possible to deploy an extensive domestic program on 3 levels: in a basement at -0.75 from street level, the cinema and games room, 1 first level at 1.50 for the entire public sector and already set back by staggering the composition a 2 level with private space.
The proposal has a clear-cut development where a patio of 8 meters x 8 meters regulates the different terraced scales that converge in it, articulating the pedestrian and vehicular accesses. Towards the center of the land, far from the vertiginous avenue, a gallery extends the entire width of the lot and proposes the appropriation of the green landscape.
Project gallery
客服
消息
收藏
下载
最近



















