查看完整案例

收藏

下载

翻译
Architects:Studio WhiteScape
Area:6000ft²
Year:2020
Photographs:PhxIndia
Manufacturers:Saint-Gobain,Hafele,Jaquar,Legrand
Lead Architect:Manjunath C N
City:Puducherry
Country:India
Text description provided by the architects. Context acts a catalyst in Architecture, it brings new dynamics to design to create more sensible spaces. It’s all about finding the calm in the chaos.
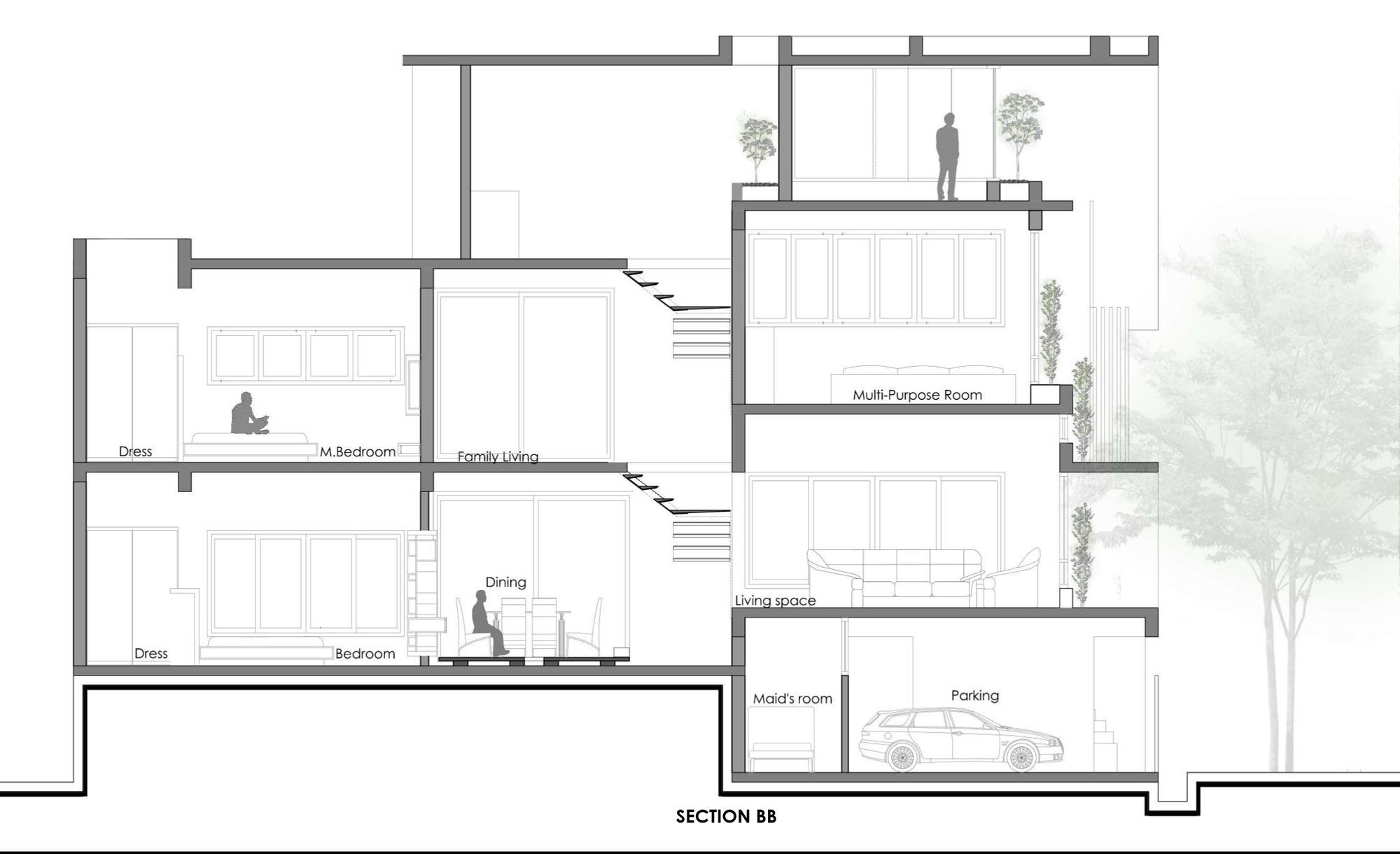
Located on a narrow street in Pondicherry, this North facing site could be termed as a unique architectural typology. The context is a neighborhood composed of dense dwelling units which are built to the edge with two to three stories high as a norm. It is designed for a family of couple with three kids and the home is a combination of public and private spaces designed to cater to the needs of the family. The client’s requirement was to build a home that would represent them to the new generation.
LE TRANQUIL explores the idea of a modern minimalist architecture adopting the principles of tropical architecture and design. It is designed as a well thought architectural insert between the existing structures. The aim is to create well connected spaces where both built space and the landscape complement each other and offer a unique experience to the users. The spaces are oriented in such a way that one can enjoy the views that are created and framed by different design features. Apart from this, the design creates an interesting play of natural light & shadows to further enhance the experience for the occupants. A water body and a platform form with a tree which is the focal point. The courtyard creates interesting views from different parts of the home while also helping in creating natural ventilation.
The transforming spaces which are achieved by the sliding, folding members that adorn the façade on the upper levels are another highlight of this house. A casual seating towards formal living- with a row of timber perforated shutters pivoted to the concrete cube, provides privacy while it creates a lot of drama for your eyes. The minimalistic interiors which is a reflection of the client’s lifestyle. White plastered surfaces and concrete are the base finishes, which contrast and complement each other. Black with white grains marble is used as main flooring along with grey vitrified tiles and timber flooring. Timber is used as interior finishes to complement the white and concrete surfaces.
The playful light during the day & light installation suspended from the skylight create ever changing patterns. An elevated platform in the dining adds to the elegance of the space & the garden across the huge sliding window gives an outdoor dining experience. Concrete steps leading to the living along with metal staircase with timber which is designed as a sculpture. The living opens into the garden on the front as well as side acting as a buffer from noise & heat. Courtyards with skylights visually connect different parts of the home by blurring the lines that separate them.
The play of natural light along with the pleasant pink in the bedroom creates the perfect ambiance. The concrete platform of the son's bedroom extends to the garden creating a close connection to nature. Le Tranquil is a modern minimalist built-form, the resultant design language allows for a clear reading of the archetypal elements of solid, void & planes with the use of devises such as screens & light courts. The vocabulary caters to a specific lifestyle & for rudimentary concerns of comfort & shelter.
Project gallery
客服
消息
收藏
下载
最近

































