查看完整案例

收藏

下载

翻译
Architects:UGO Architecture
Area:172m²
Year:2021
Photographs:Alex shoots buildings
Country:Poland
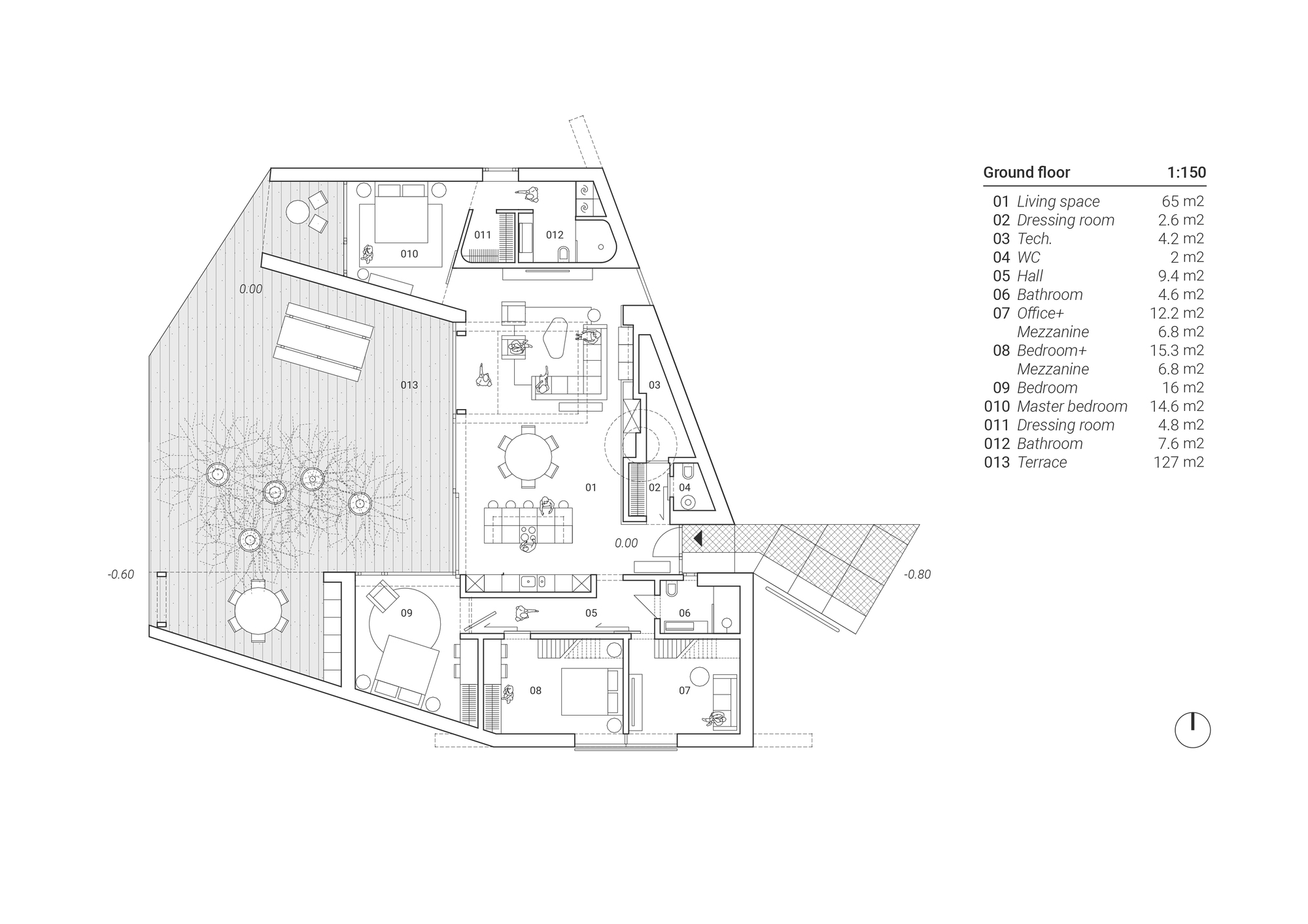
It is a summer house located on a slope in the shoreline of the lake, in the eastern part of Wielkopolska Voivodeship in Poland. The building is hidden deep inside the plot, dividing it into two zones. The technical part with a driveway and garage is located on the side of the road.
After entering the entrance ramp, the view that accompanies all rooms slowly becomes visible. The heart of the house is the west-facing terrace. It is shaded by pine trees that have been growing here for years. They have become a natural barrier protecting the interior of the house from the summer sun.
The terrace is directly accessible from the living room and two bedrooms. Two more have mezzanines, which are connected by a common area on the roof. The owner's bedroom has its own terrace and is located in a separate part of the building. All rooms have windows overlooking the lake.
The most beautiful view is from the living area. High windows frame the view of the pines against the lake. The project is characterized by care for the quality and durability of materials. The facade is made of corrugated graphite-colored sheet metal to be protective.
The interior of the terrace and the living room has been covered with wooden boards, emphasizing the forest surroundings. Their color will naturally change over time. The paths around the building and the driveway are covered with a layer of loose mineral aggregate. The landscape design blends the plot with the surrounding vegetation.
Project gallery
客服
消息
收藏
下载
最近
















