查看完整案例

收藏

下载

翻译
Architects:derksen | windt architecten
Area:212m²
Year:2021
Photographs:René de Wit
Manufacturers:Chaos Group,Reynaers Aluminium,De Groot Vroomshoop,Nemetschek,Trimble Navigation
Lead Architects:Jeroen Derksen and David Windt
Contractor:bouw- en aannemingsbedrijf
Engineer:Pieters Bouwtechniek
City:Monster
Country:The Netherlands
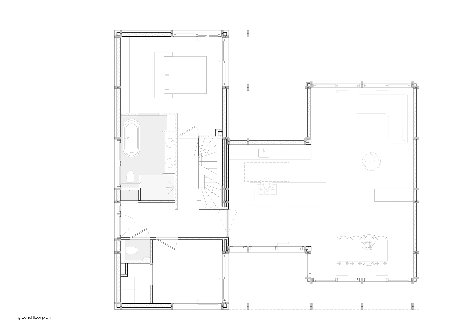
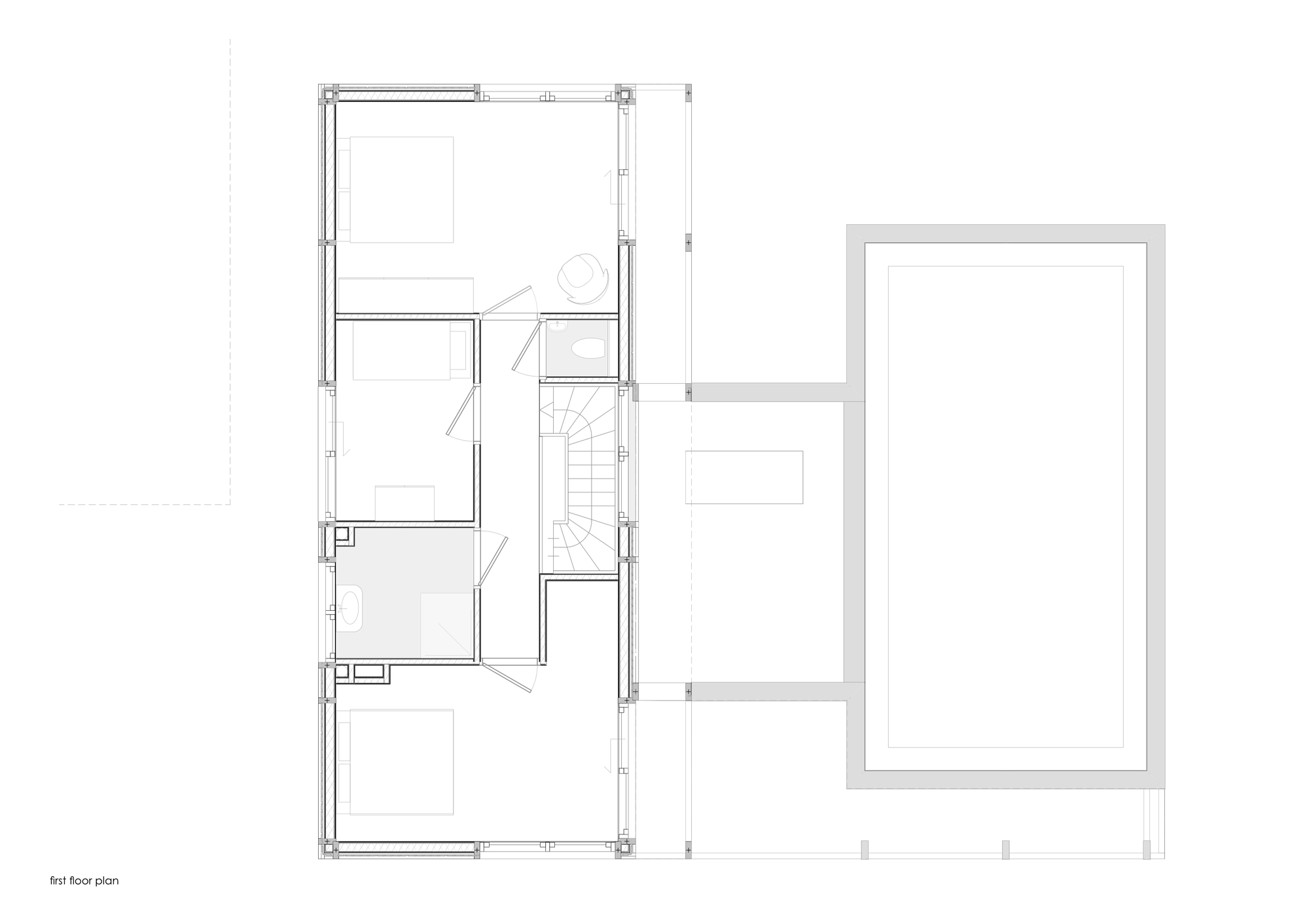
Text description provided by the architects. Near the South Holland dunes, a special house has been realized, which consists of a visible structure of laminated wooden columns, beams, and floors.
This structure is filled in with an open or closed filling; open with sun and view-oriented sliding doors, closed with vertical larch parts.
The wooden construction is visible inside and out so that the rhythm of the structure can be felt throughout the house.
All this is according to a size ratio that has been worked out in detail, so that special and warm spaces have been created for the clients both inside and outside.
Project gallery
客服
消息
收藏
下载
最近





























