查看完整案例

收藏

下载

翻译
Architects:Terra e Tuma Arquitetos Associados
Area:176m²
Year:2019
Photographs:Pedro Kok
Manufacturers:Jotta esquadrias,Neorex
Structure:Ita Construtora
Construction:Brefer Construções e Soluções
Architecture:Danilo Terra, Fernanda Sakano, Juliana Terra, Pedro Tuma, Bruna Hashimoto, Jessica Zanini
Landscape Design:Bianca Vasone Arquitetura da Paisagem
City:São Paulo
Country:Brazil
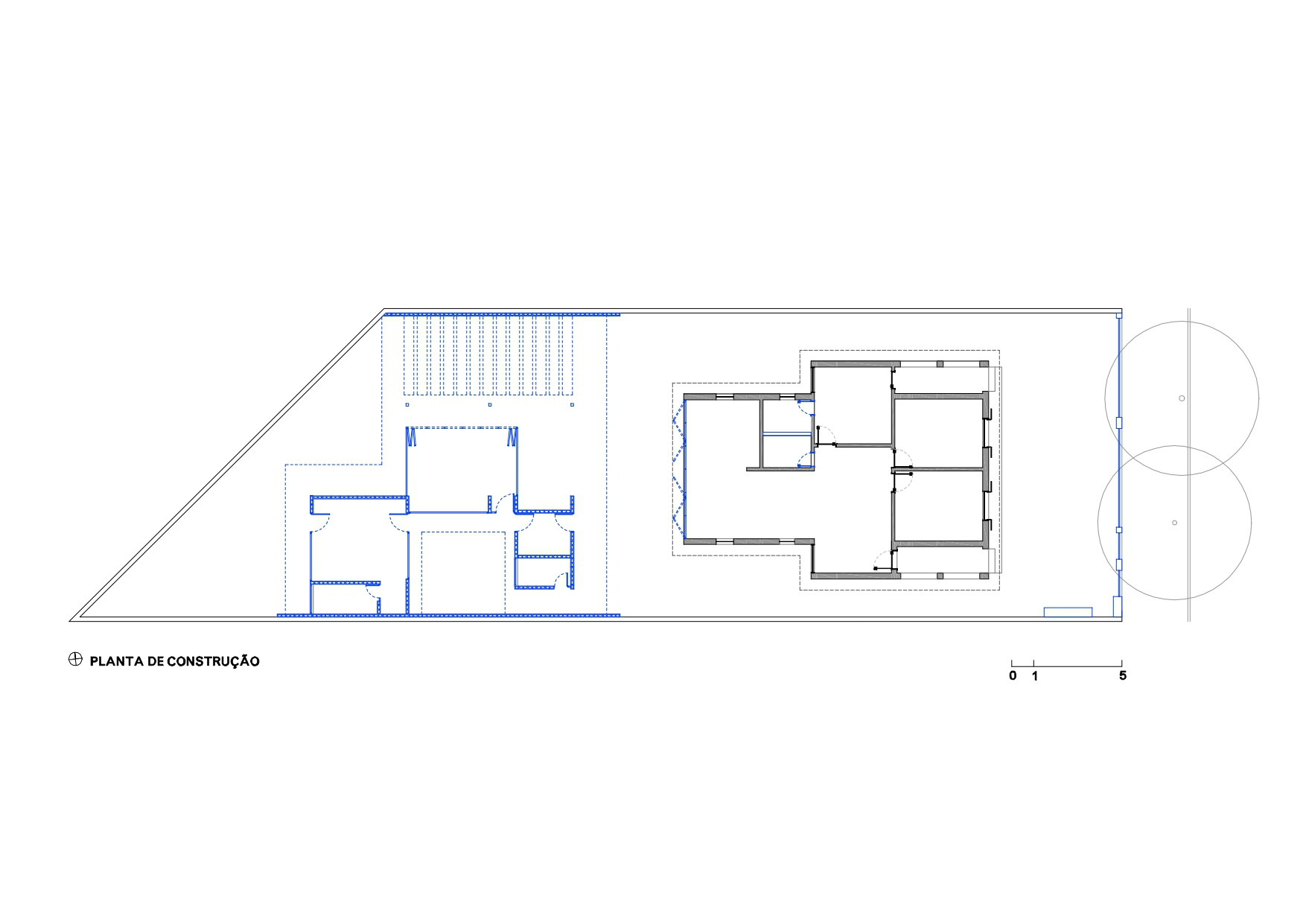
Text description provided by the architects. The project for this house was to plan the intervention and expansion of a house from the 40s, in a garden neighborhood in the city of São Paulo. This planning aimed to serve 3 generations of a family, a couple, their respective mothers, and a child.
The main house houses 3 bedrooms, living, dining and kitchen. The expansion included a garage for cars, a painting and sewing workshop, laundry, bathroom, outdoor kitchen, dining table, and a suite.
Over the years, the needs and interests of family members have changed. The expansion gained new uses, but the architecture maintained its spatiality and flexibility of spaces, allowing new appropriations.
Project gallery
客服
消息
收藏
下载
最近

















