查看完整案例

收藏

下载

翻译
Architects:Pirinen Salo Oy
Area:220m²
Year:2021
Photographs:Marc Goodwin
Manufacturers:iGuzzini,EK Wood,Fenestra,Hietakari,IDO,JK-ovet,KVIK,Oras,Takkamaailma
Lead Architects:Lauri Salo, Teemu Pirinen
HVAC Engineer:LVI-suunnittelu Huhtinen & Karjalainen Oy
General Contractor:Rakennusliike M. Luostarinen Oy
Construction Engineer:Rakennuskonsultointi T Kekki Oy
City:Pyhtää
Country:Finland
A Fishermen’s Village. On a seashore, between pine trees, a house consists of three little, seemingly separate buildings. Their facade is wood, burned to char, and their pitched roofs a light green color. Towards the street, there are very few windows, a garage, and the front door hidden in a corner between the two slightly larger masses. The area is a peaceful end of a road, with sparsely scattered houses, surrounded by pine trees leading up to the front of Swan Beach, as the locals call it.
Door to a view. Approaching the corner in which the front door lies, there is a powerful immersion in the darkness of the charred wood. The darkness shuts down the surroundings and builds up to a perceivable silence. As the door opens, so does the view. The beautiful archipelago has the whole interior at its embrace. Behind sliding glass doors the terrace steps lead to the rushes. Every room of the house has a sea view.
From the view. When observed from the sea, the building has a completely different nature. The three-building masses that were shy and meek towards the street, rise up towards the sea reaching a Finale of sublime polyphony!
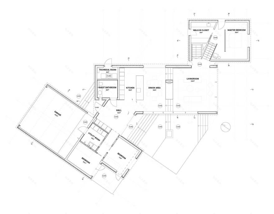
Under nature's microscope. The hall is a comfortably low space, having the feeling of human scale and safety. From the hall, the ceiling rises higher into the dining area. There is a fireplace separating the dining area and the living room, and behind the living room, a big view of the waterfront. Around the fireplace, there are a couple of steps down leading into the living room. The scale of the room and its fixed furniture give a subtle shrinking feeling, the space grows, the view gets closer, it’s as if you would be under a natures microscope.
Hidden treehouse. From the living room, behind a massive sliding door, there lies a split-level staircase leading up to the master bedroom. At the top of the stairs, the warmth of the wood changes the atmosphere instantly. The bed is hidden behind two partitions, the other one being steel and the other wood. In the master bedroom, the ceiling can be reached, the windows are low. The feeling is most intimate and brings up memories from one’s childhood, you are hidden, on top of trees, in your own treehouse. The master bedroom is situated in a completely different corner of the house than the other bedrooms and can be completely shut away from the rest of the house by the huge sliding door.
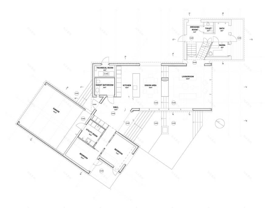
Bathing on the seafront. Down the staircase, beneath the master bedroom is the main bath of the house. Descending to the dressing room the interior transfers into a soothing cement cave that holds a bath and a sauna. The sauna itself is darkened wood and has a relaxed dark feel to it. Sitting in the steam of the sauna, the view opens up at eye level. From the warmth of the sauna a path from the bath, terrace leads to a swim in the cooling Baltic Sea.
Project gallery
客服
消息
收藏
下载
最近





































