查看完整案例

收藏

下载

翻译
Architects:Tham & Videgård Arkitekter
Area:90m²
Year:2008
Photographs:Åke E:son Lindman / Lindman Photography
Lead Architects:Bolle Tham, Martin Videgård
Collaborator:Anders Rognerud
City:Norrtälje SO
Country:Sweden
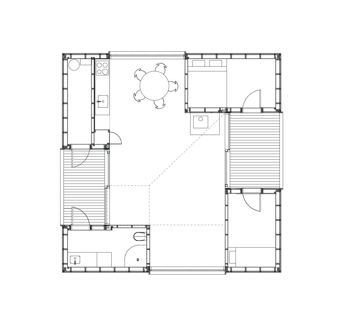
Text description provided by the architects. On a remote island in the Stockholm archipelago, this small house is built within the context and specific conditions for construction that no car access for transports result in.
Around an central open space, four small rooms for sleeping, storage and bath are placed, one in each corner. Light enters through a skylight and large glazed niches that underscores the atelier like character of the central space, as it opens up toward the sky and its green environs in 360°.
In two of the niches, the sliding glass doors are placed on the inner side to create sheltered spaces for the entrance terrace and a place for outdoor dinners. Roof and facades are finished with the same black slate bitumen standard roofing product. Interior and outdoor rooms have natural and light grey painted sawn wooden panels.
Project gallery
客服
消息
收藏
下载
最近



















