查看完整案例

收藏

下载

翻译
Architects:SPEED Architects
Area:142m²
Year:2021
Photographs:Simen Øvergaard
Manufacturers:Louis Poulsen,Cesi Ceramica,Dørfabrikken Vatnestrøm,Ifö Electric,KLH,Natre Vinduer
Lead Architects:Espen Robstad Heggertveit , Eirik Mikal Stokke
City:Arendal
Country:Norway
Text description provided by the architects. House 1 is situated in Tromøy, an island on the south coast of Norway, characterized by pine forests, rocky beaches, and wild shores. The project consists of a small house and an annex, designed by architects Eirik Mikal Stokke and Espen Robstad Heggertveit as part of their Oslo-based practice Section Plan Elevation Extrusion Diagram Architects (SPEED).
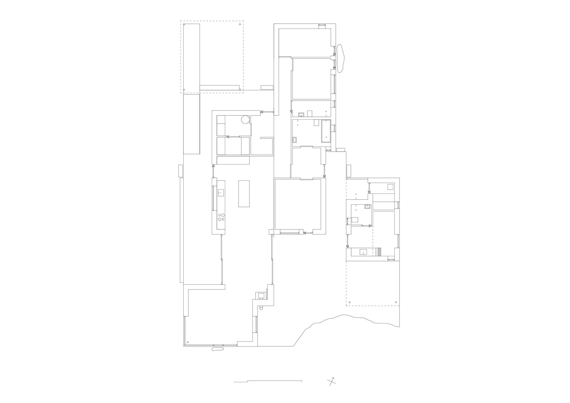
The plot is situated next to a beach and nature reserve where the client would go swimming with her friends every Sunday, all year round. Large parts of the plot consist of naked rock, so the house is drawn back to avoid unnecessary excavation. The living room opens up towards the landscape and allows you to step right onto the rocky field of heather. The house is oriented towards the sea but designed to shelter against the strong winds. Curving along 26 meters, the house has several nooks and pockets on each side, making sure there is always a sunny sheltered space to be found.
All rooms are on the same level, with three bedrooms, two bathrooms, a walk-in closet, a laundry room, and a spacious hallway, as well as a continuous space containing a living room, dining room, and kitchen. The annex houses a tiny living room, kitchen, and bathroom, as well as a loft bed. There is a separate entrance to the sauna, next to the outdoor shower, also located in the annex. On warm summer days, the house opens up towards its surroundings - with direct access from each bedroom, living room, dining room, and kitchen - merging indoor and outdoor spaces.
The house is designed to accommodate the client’s lifestyle - living alone, but with space for children, grandchildren, and friends. The dining room thus became the most important space, with wide glass doors sliding open to either side of the house. For special occasions, a long table can stretch all the way from the kitchen to the living room, or from the dining room and through the openings on either side.
The project had a tight budget, requiring innovative ideas and a sharp focus. The building’s CLT construction ensured millimeter precision. Wooden walls are left exposed and untreated, giving the house a certain rawness, while still keeping it refined and warm. This allows the client’s own furniture, artworks, and objects to take center stage. Contrasting this, internal sliding doors are spray painted in bold colors at a local car workshop in shades of peach, lemon, and turquoise. Outside, cheap industrial materials are used in new ways, such as the pergola and carport, where glass fiber plates meant for cowsheds filter the sunlight; while the fence along the terrace consists of gabions filled with rock from the island - usually used as noise barriers along highways.
The house is clad in pressure-treated pine, which will grey over time to match the aluminum roof and window frames. As the house is maintenance-free, the client is free to enjoy the landscape, and invite her friends over for a sauna and a cold shower after their Sunday swim.
Project gallery
客服
消息
收藏
下载
最近






























