查看完整案例

收藏

下载

翻译
GALERIA DE ARTE
Consuelo Lilith Guzmán Nava
El proyecto cuenta con un área de 736m2, localizada en la Cuidad de México, el terreno está rodeado de árboles, el concepto del proyecto es jugar con las diferentes figuras geométricas ya que estas trasmiten energía y dinamismo, en el interior de la galería de arte se caracteriza por las texturas y colores neutros. El programa arquitectónico se presenta, la zona de pinturas, esculturas y una zona de cafería con el propósito de poder el arte mientras se disfruta de un delicio café
Áreas del terreno
Cafeteria
Sanitarios
Recepción
Terraza
Cuarto de maquinas
Exhibición
Oficina
Almacen
Entre la cerámica, el vidrio y el agua
Se diseño la instalación hidráulica colocando una cisterna de emergencia de igual manera la distribución de agua fría.
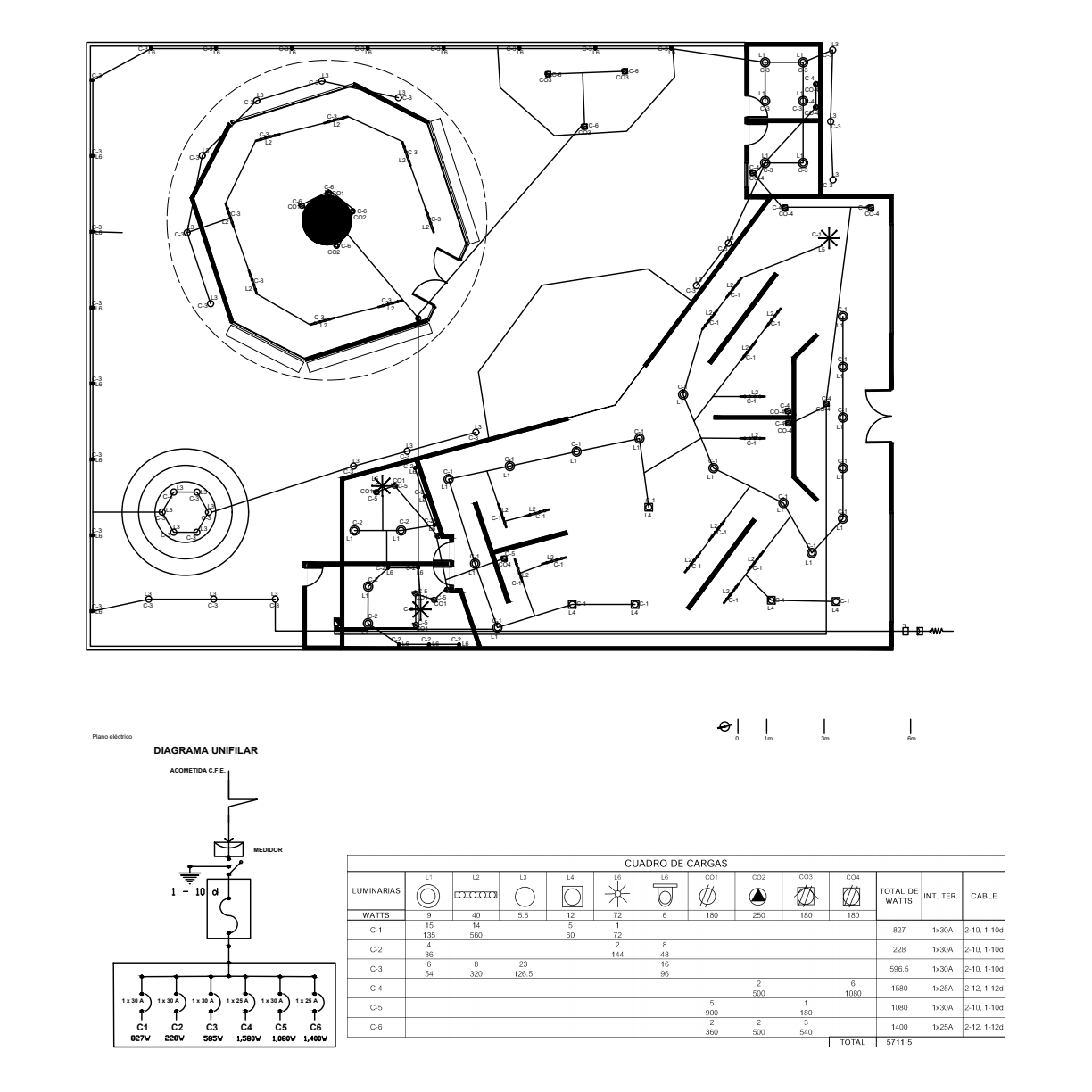
Luz + luminarias = diseño eléctrico
Se busco luminarias con un estilo industrial para que sobresalgan del proyecto y tenga armonía.
Una terraza para la convivencia
Se utilizo diversas platas y de diferentes especies, también vegetación aromática como la lavanda para una tener una armonía con el interior y el exterior, tenido la conexión con la naturaleza y el espectador, se utilizó piedra decorativa para tener un jardín seco, para facilitar el mantenimiento, formando un ambiente de convivencia con ayuda de las texturas como la madera y las telas.
Arquitectura bioclimática
Atreves de la carta solar, se puede demostrar la caída de los rayos del sol y el recorrido de este mismo, en el proyecto, se puede identificar el provecho de los recursos y reducir el consumo eléctrico del establecimiento, aprovechando la luz solar en el trascurso del día, dentro de la galería de arte se puede reflejar que se ilumina en interior, sin afectar las pinturas y las esculturas.
Arquitectura de Interiores y Ambientación
Cel: 5547 6446 27
客服
消息
收藏
下载
最近


























