查看完整案例


收藏

下载

翻译
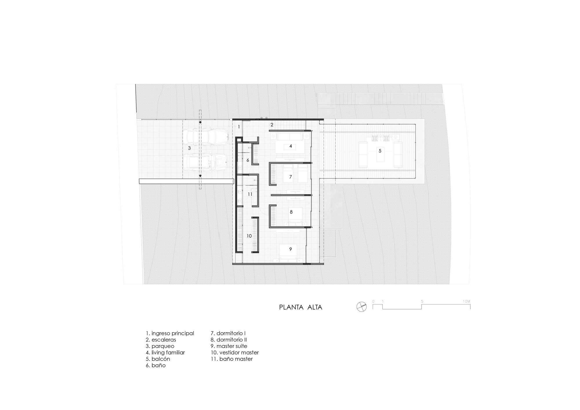
The CC house is located on a sloping terrain, which has a double access. This condition allowed us to use the privileged position to organize the house in a composition of two volumes that overlap each other. The lower volume contains the public program of the house, while the upper volume contains a private access from the garage that leads directly to the bedrooms.
The lower floor is organized under the concept of an open plan and integrates all the social spaces of the house, maintaining a fluid communication. Despite the house rises and is separated from the ground, an explicit communication is established between the interior and the exterior of the house. Each space opens its views towards the garden, allowing a direct visual communication between the interior and the exterior.
The orientation of the house responds to sun exposure. The sides become blind walls as protection from the sun and define the volumes of the house. In this way we can also direct the views towards the lowest point of the terrain, taking advantage of the privileged views of the surroundings.
The materiality of the house reveals its structural solution, leaving it bare and visible as an integrated part of the architectural composition. The concrete beams that support the slabs act as dividing axes between both levels and allowing to highlight the formal purity of the composition.
客服
消息
收藏
下载
最近



















