查看完整案例

收藏

下载

翻译
Architects:Urban Praxis
Area:340m²
Year:2019
Photographs:Boonyanuch Tanwattanadamneurn
Manufacturers:L&E Manufacturing,Trusol,V.N Steel
Lighting Design:L&E
Design Team:Suchada Kasemap, Attapon Chujit
Structural Engineer:Supol Techanakara
Mep Engineer:Thirachart Channgam
Ee Engineer:Narongrit Thammapradit
Country:Thailand
Text description provided by the architects. The sincere exposure of architecture, structure, and construction details as an aesthetic of the space is designed as a reflection of the simple lifestyle and personality of the owner, a retiree who is an architectural design enthusiast from Hong Kong. He wishes to spend his peaceful retirement in tranquility Chiang Mai (The Northern of Thailand), which is different from his entire life in an ultra-high density flat. MT house is a low-budget project with limited skill and knowledge of local workmanship.
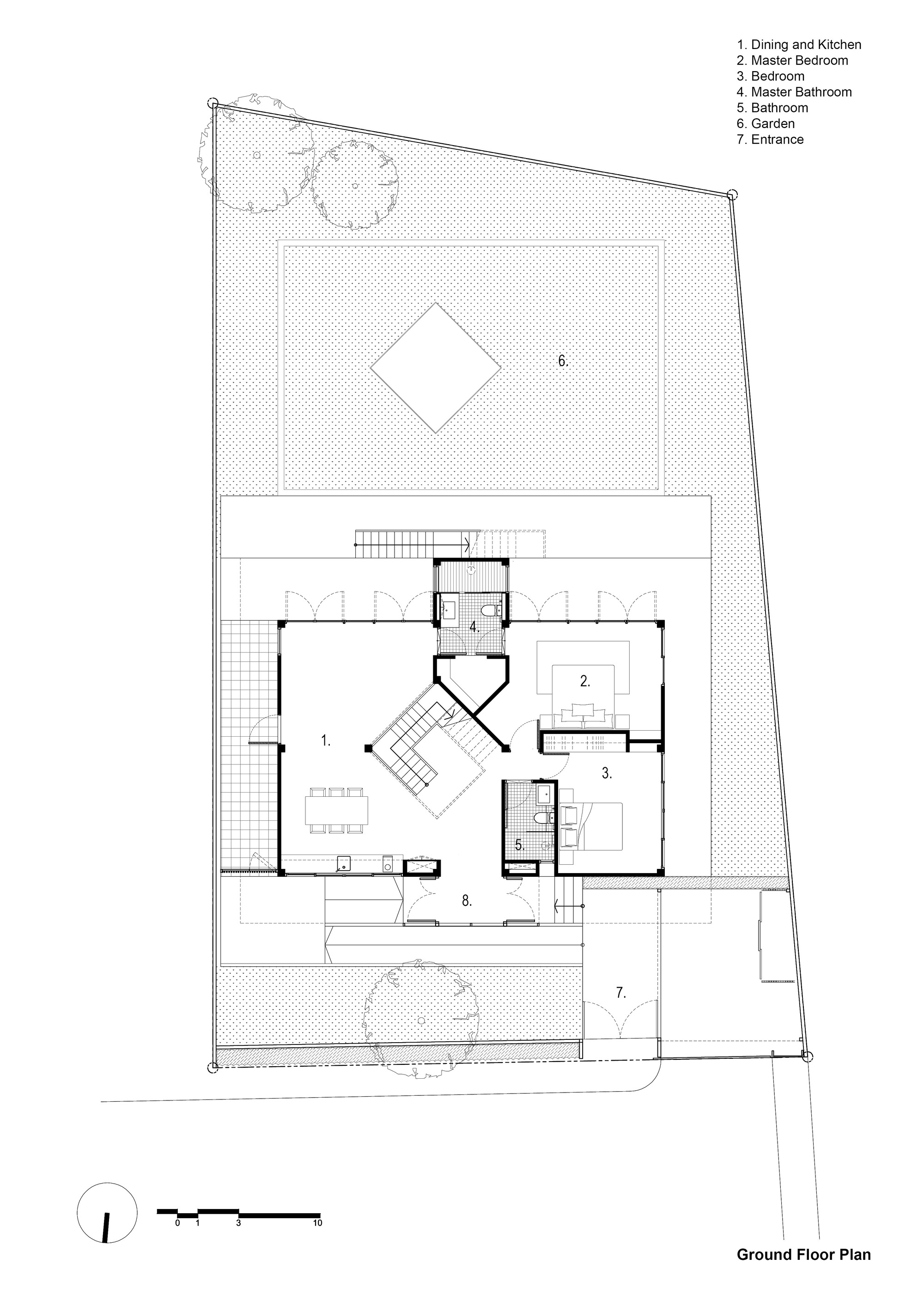
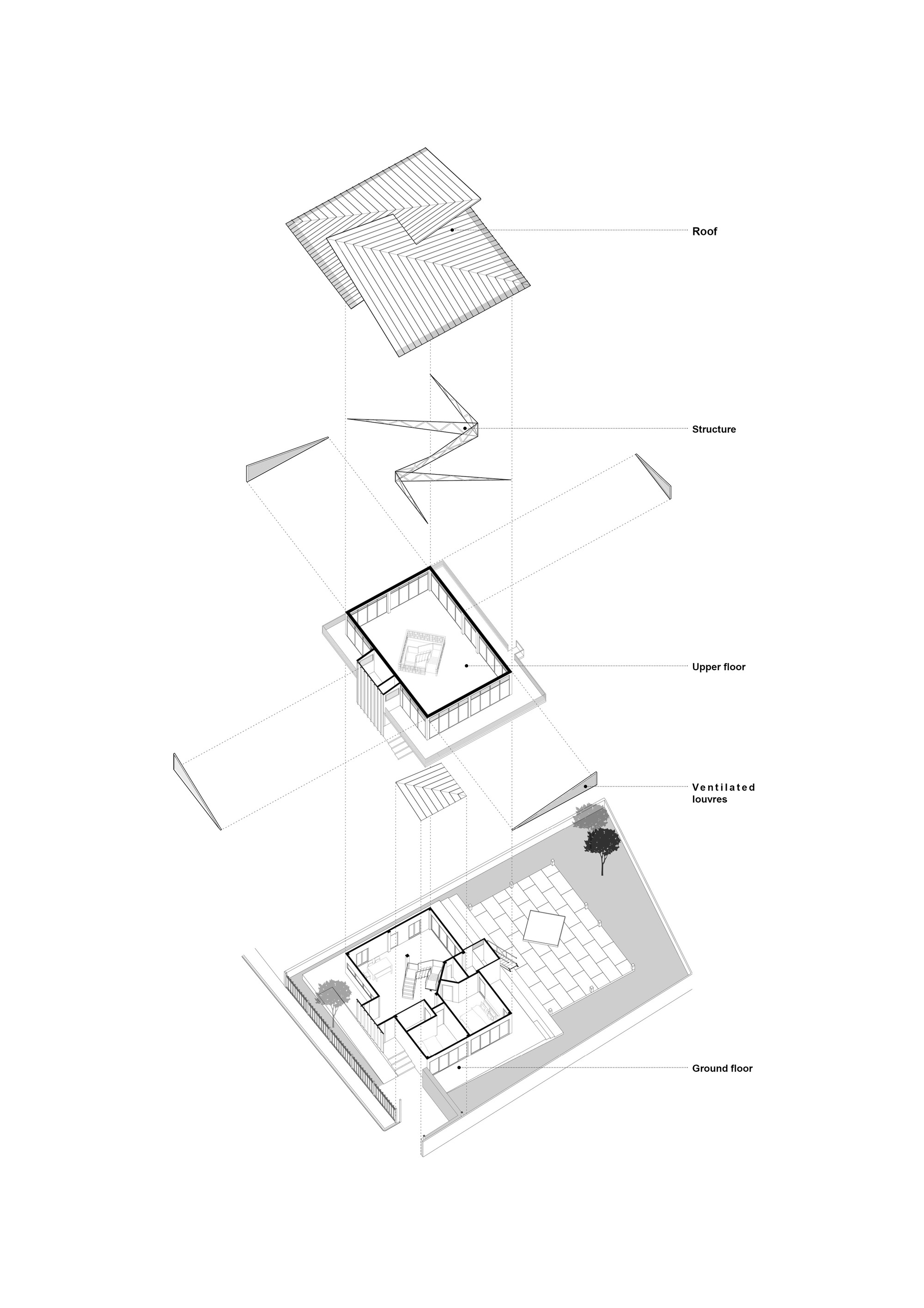
Sustainable living with nature is the main concern in relation to countryside neighbourhoods. All rooms are designed to have natural light and ventilation with full-height windows. Main functions including kitchen and two bedrooms are located on the ground floor in proximity to the garden. The sculptural stairway is strategically located in the center of the simple layout. The characteristic of Sala, the Thai traditional open pavilion, is introduced for the upper floor living area to observe a panoramic view. All furniture can also be rearranged to suit flexible activities. Most of them are upcycling furniture, wood carving from local wood waste.
The structure, the long-span exposed roof truss is applied to achieve the open plan. The interlocking folding pitched roof form reduces rain gutters to minimize future maintenance issues due to the Monsoon season. All louvers between each roof pitch work for heat reduction. Dwellers can retreat into a natural ventilated atmosphere in the harsh summer of a tropical country.
Project gallery
客服
消息
收藏
下载
最近































