查看完整案例

收藏

下载

翻译
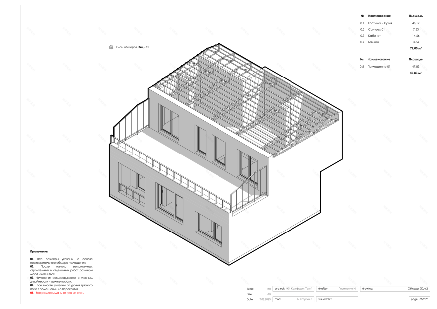
The penthouse is located in the city of Gostomel.
The project was developed by the studio : Good design.
Chief designer: Gavrylyuk T.
Head draftsman of the project: Gnatchenko I.
The task is maximum comfort in modern classics.
CONCEPT
A single space smoothly flows from the living room area to the dining area, and then to the kitchen. The vector of movement clockwise from the entrance to the bedroom meditatively slows down, calms down, sets you up for relaxation.
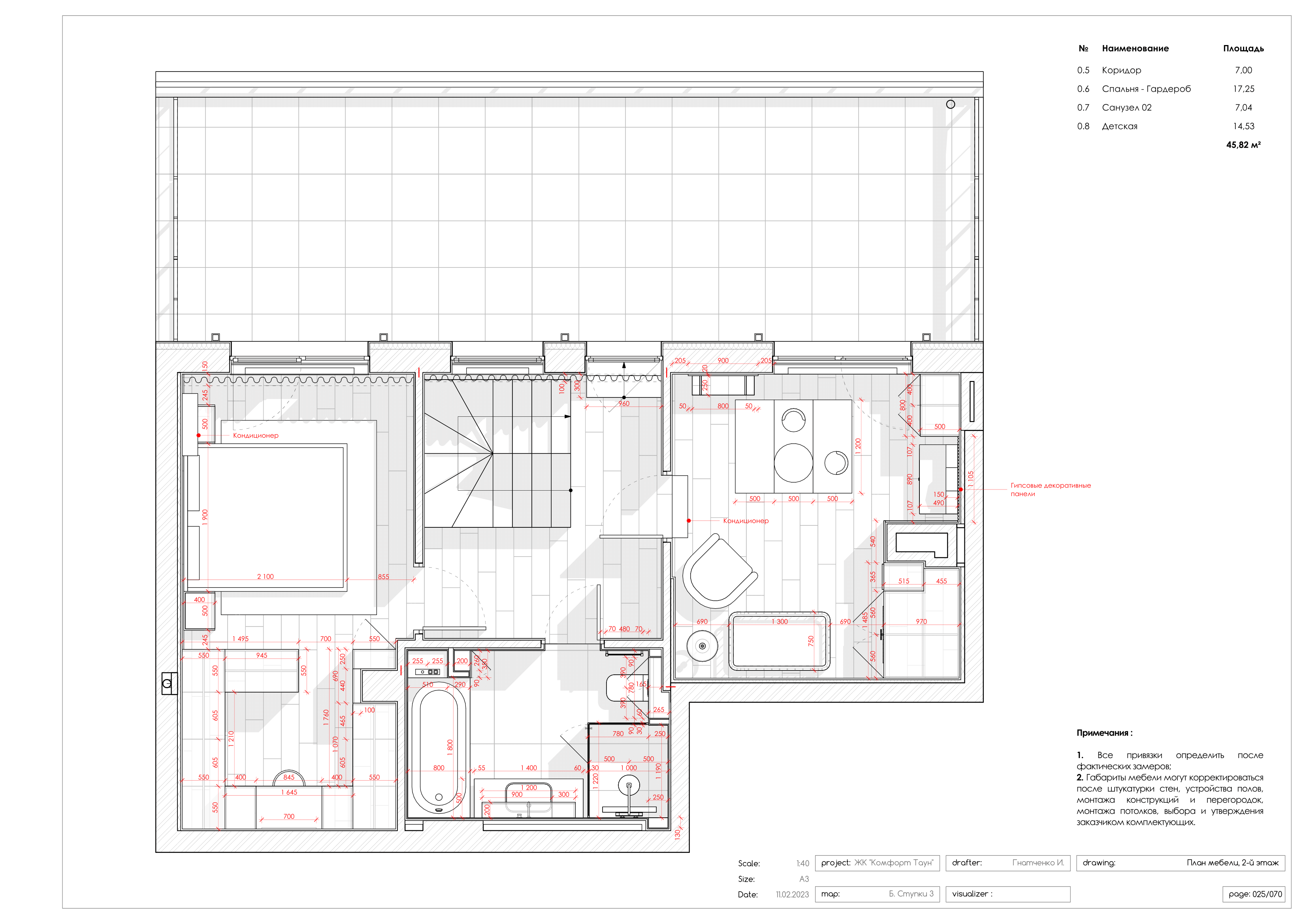
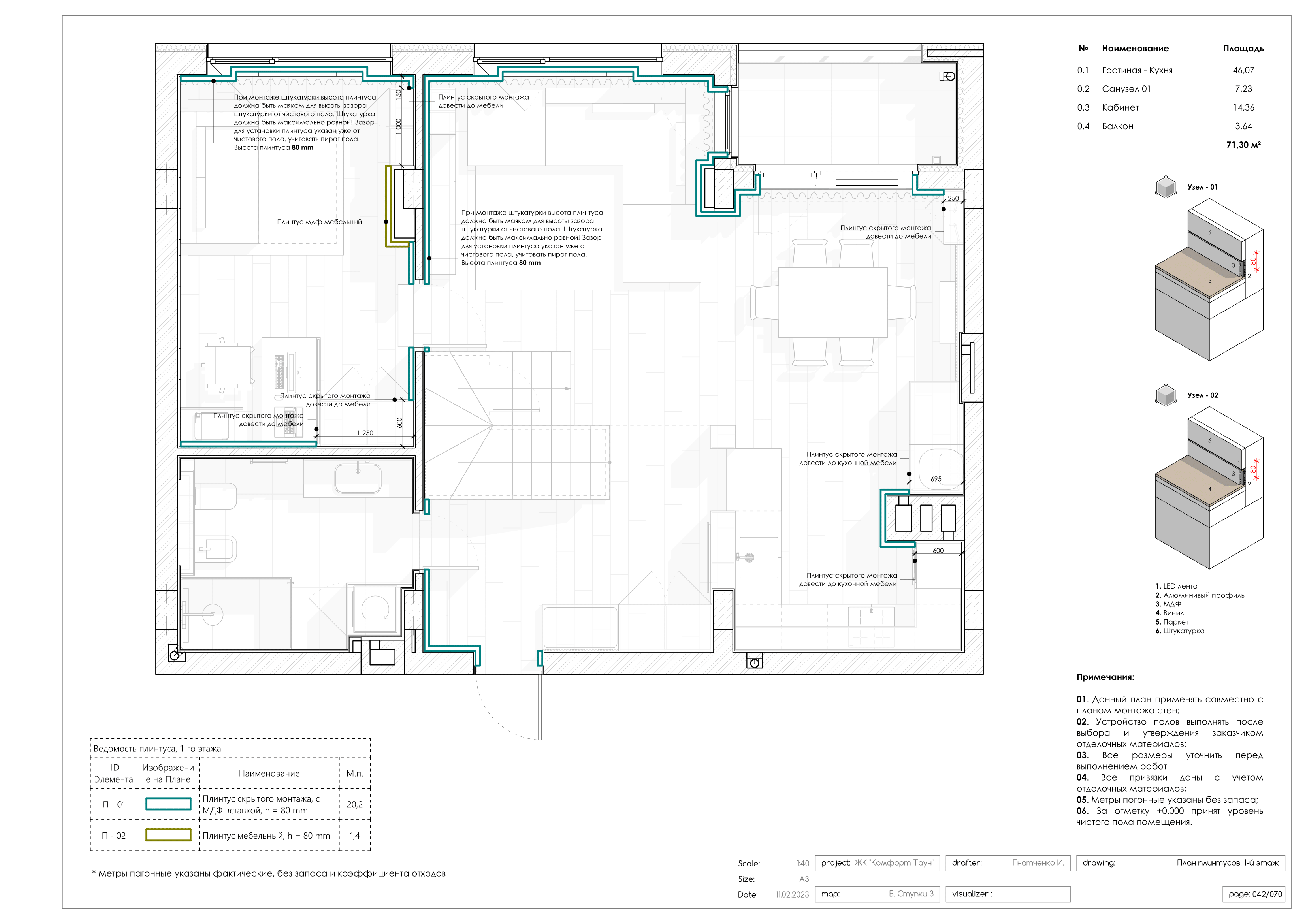
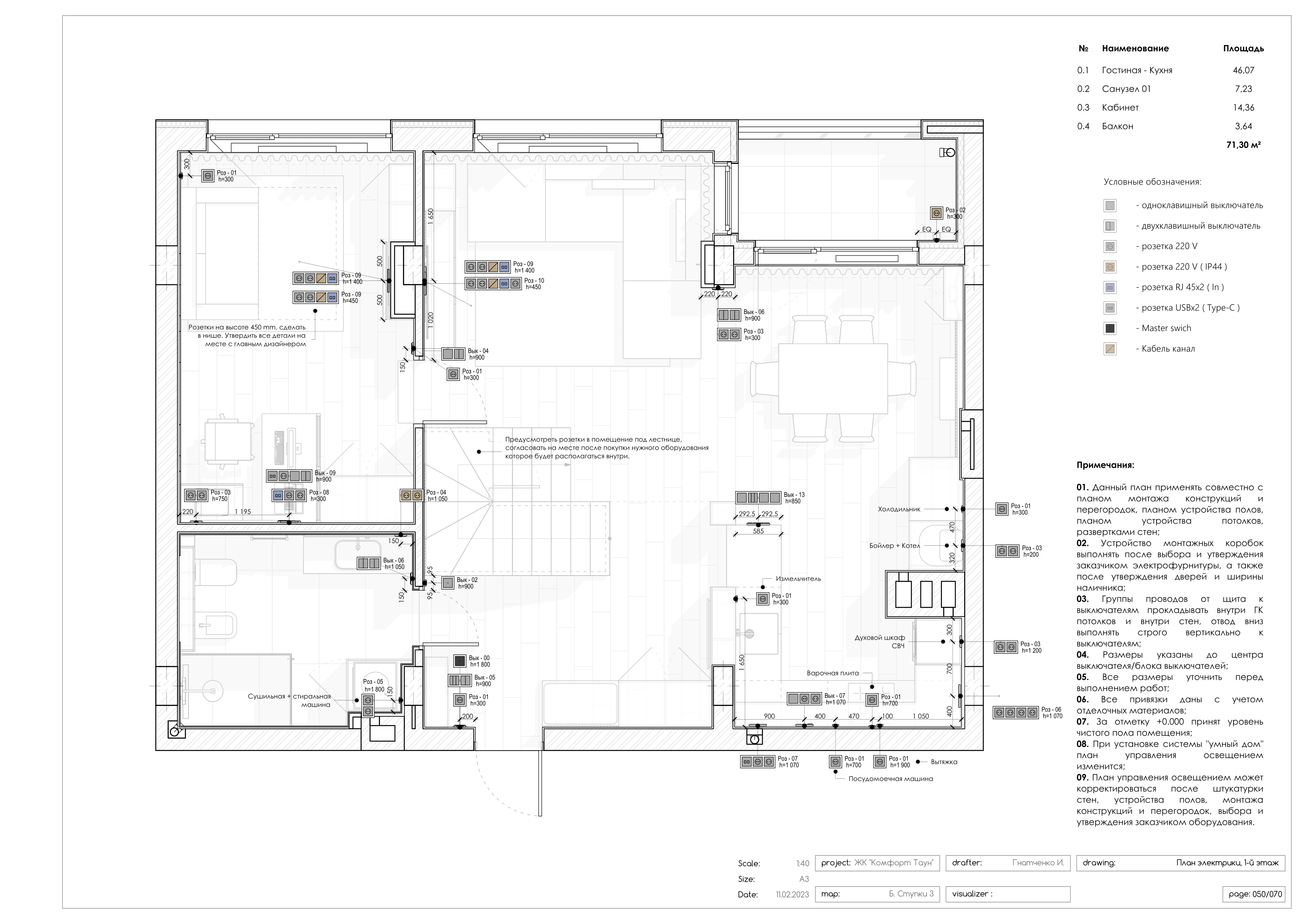
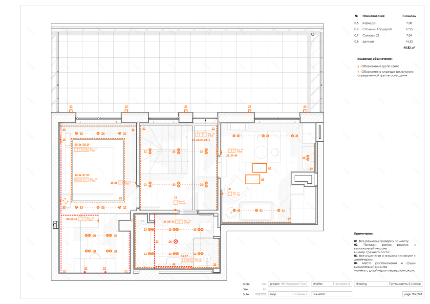
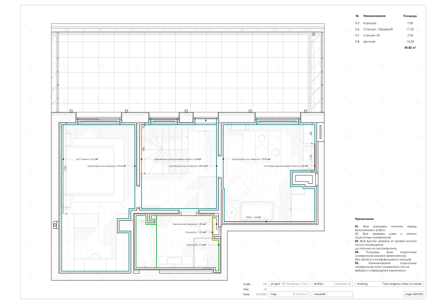
IMPLEMENTATIONThe Goodesign team completed all planning and design solutions:- transformation, zoning and ergonomics of space;- design of water supply, ventilation, heating, electrical and noise insulation systems;- color palette and general style of the interior;- specification of furniture items, filling wardrobes, bathrooms and kitchens;- comfortable little things like a folding box for linen and hidden shelves.
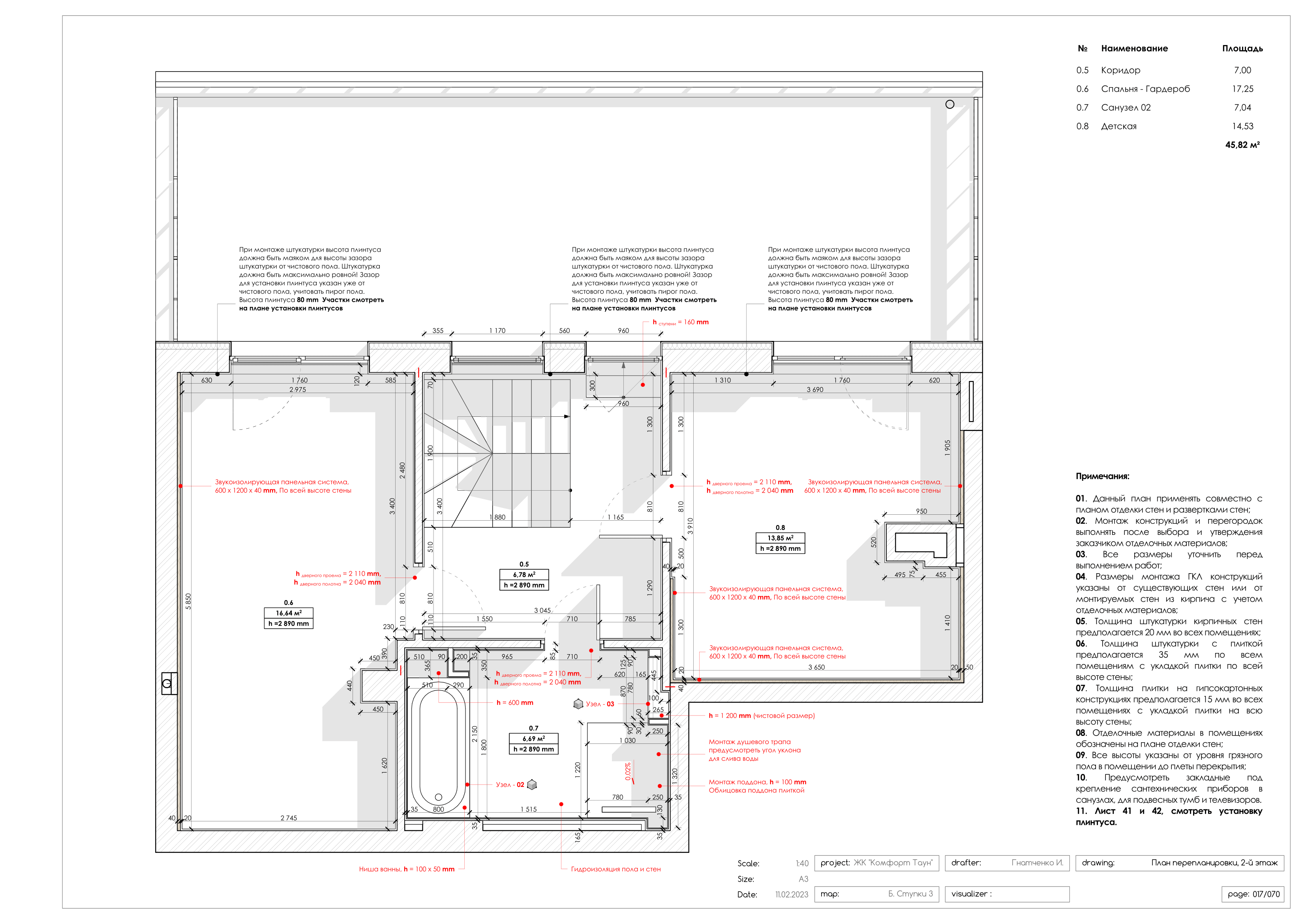
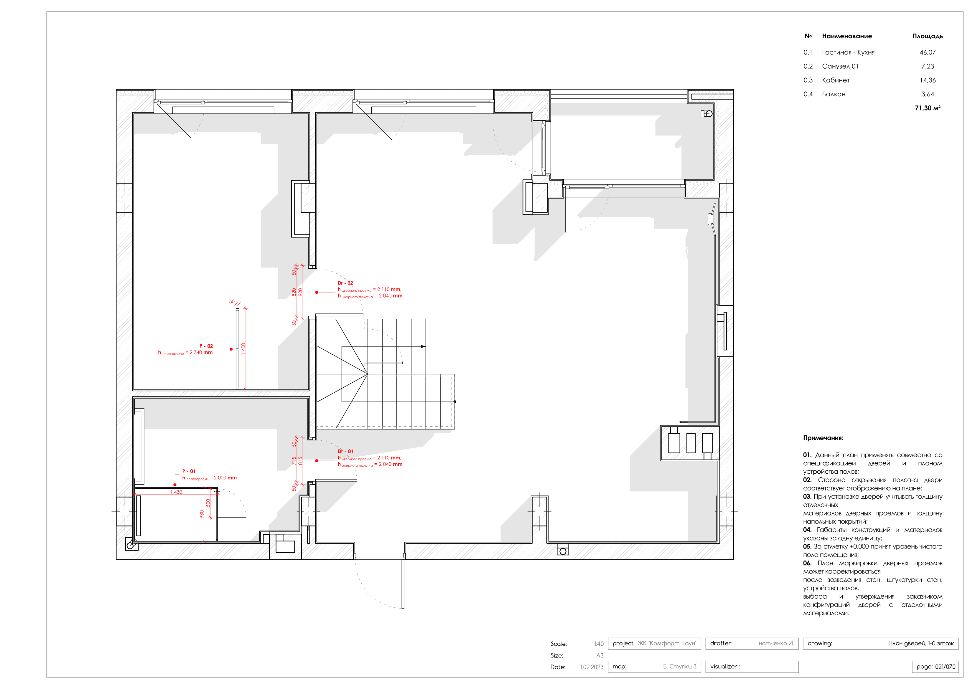
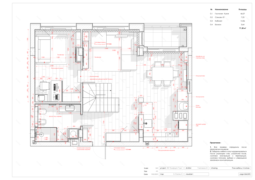
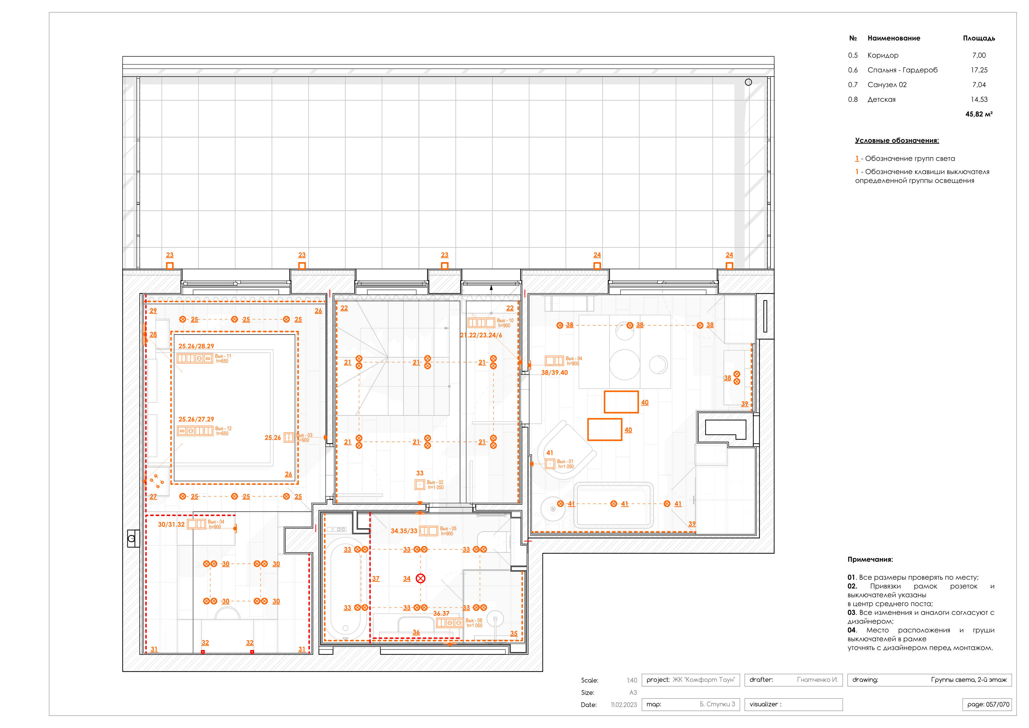
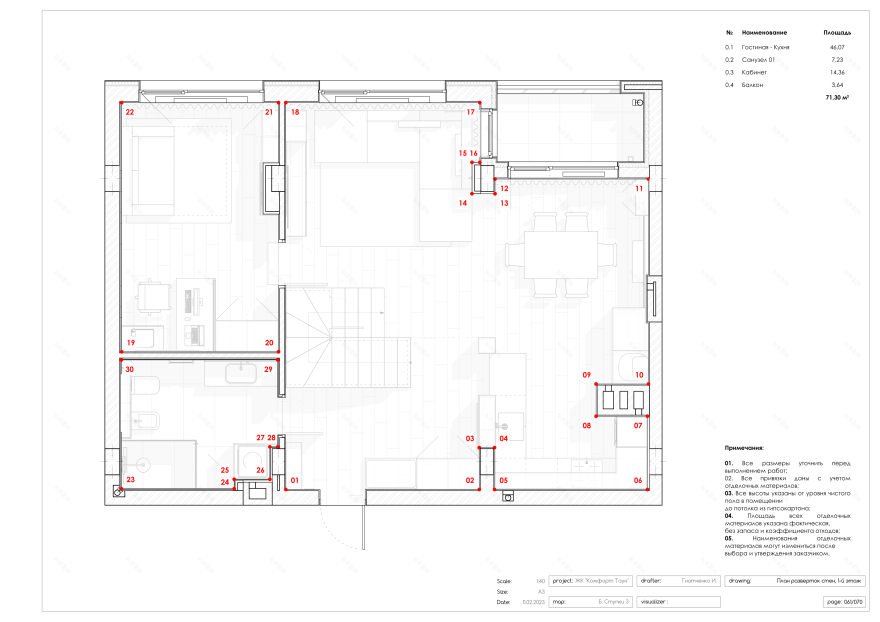
IMPLEMENTATIONThe zoning of the space involves walls, transparent partitions and furnishings:- the entrance group includes an entrance hall, dressing room, guest bathroom;- the studio is visually divided by a sofa into a relaxation area and a kitchen-dining room;- in the relaxation zone, a biofireplace is separated from the home theater by a ledge made of natural stone;- in the kitchen – a line of built-in household appliances and storage systems;- the dining area is distinguished by a massive island with a wine refrigerator and a table on 6 persons;
SOLUTIONS
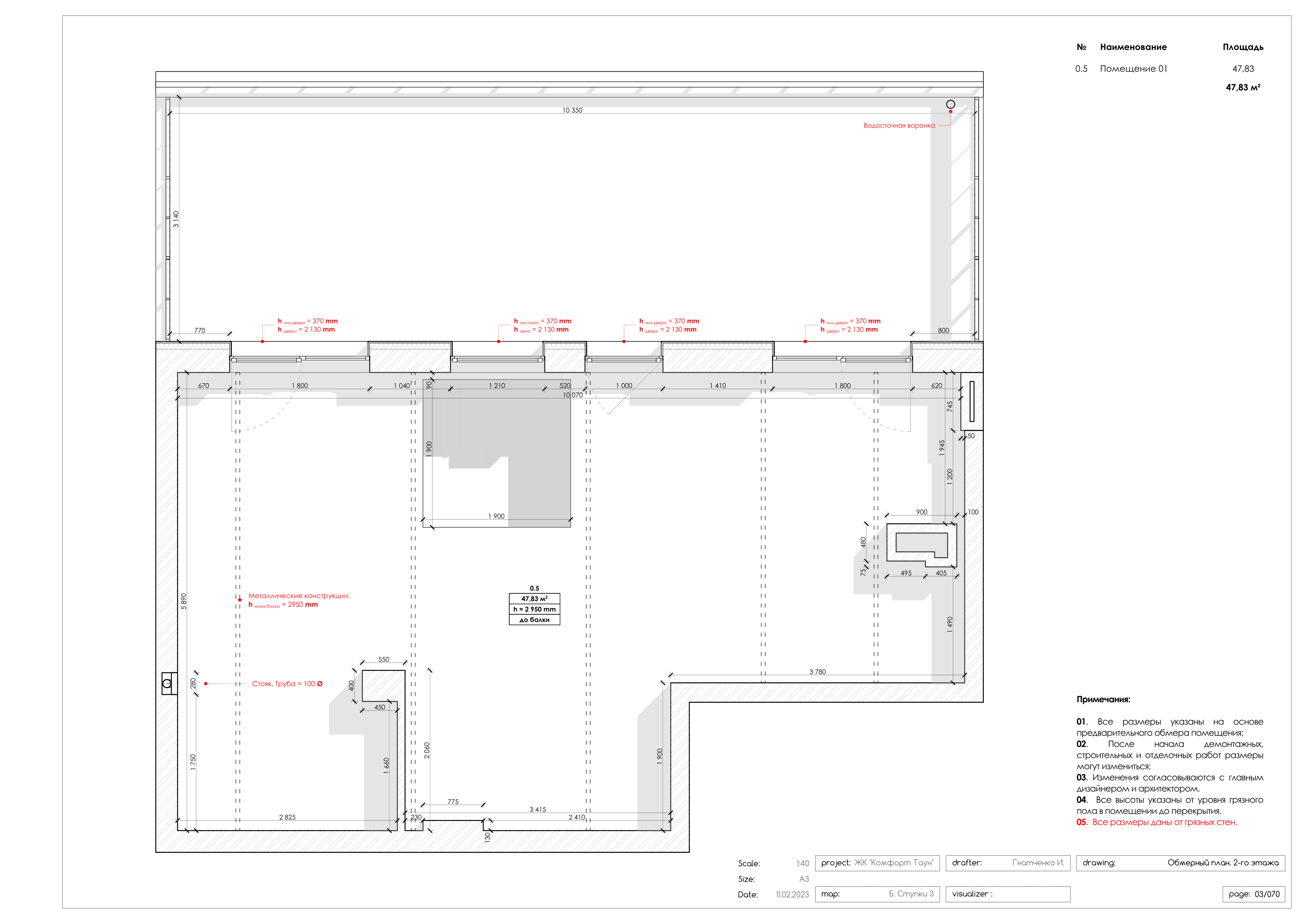
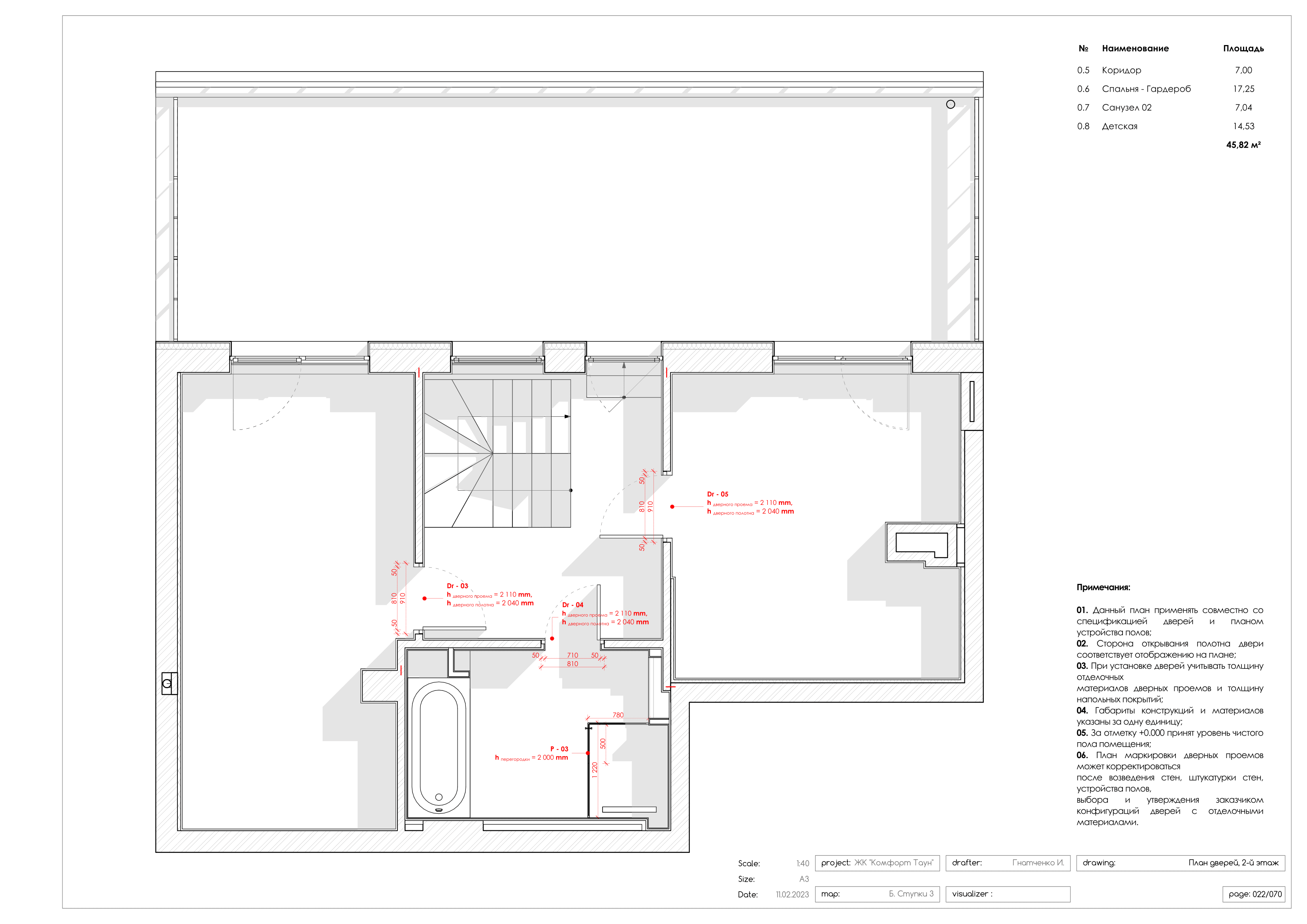
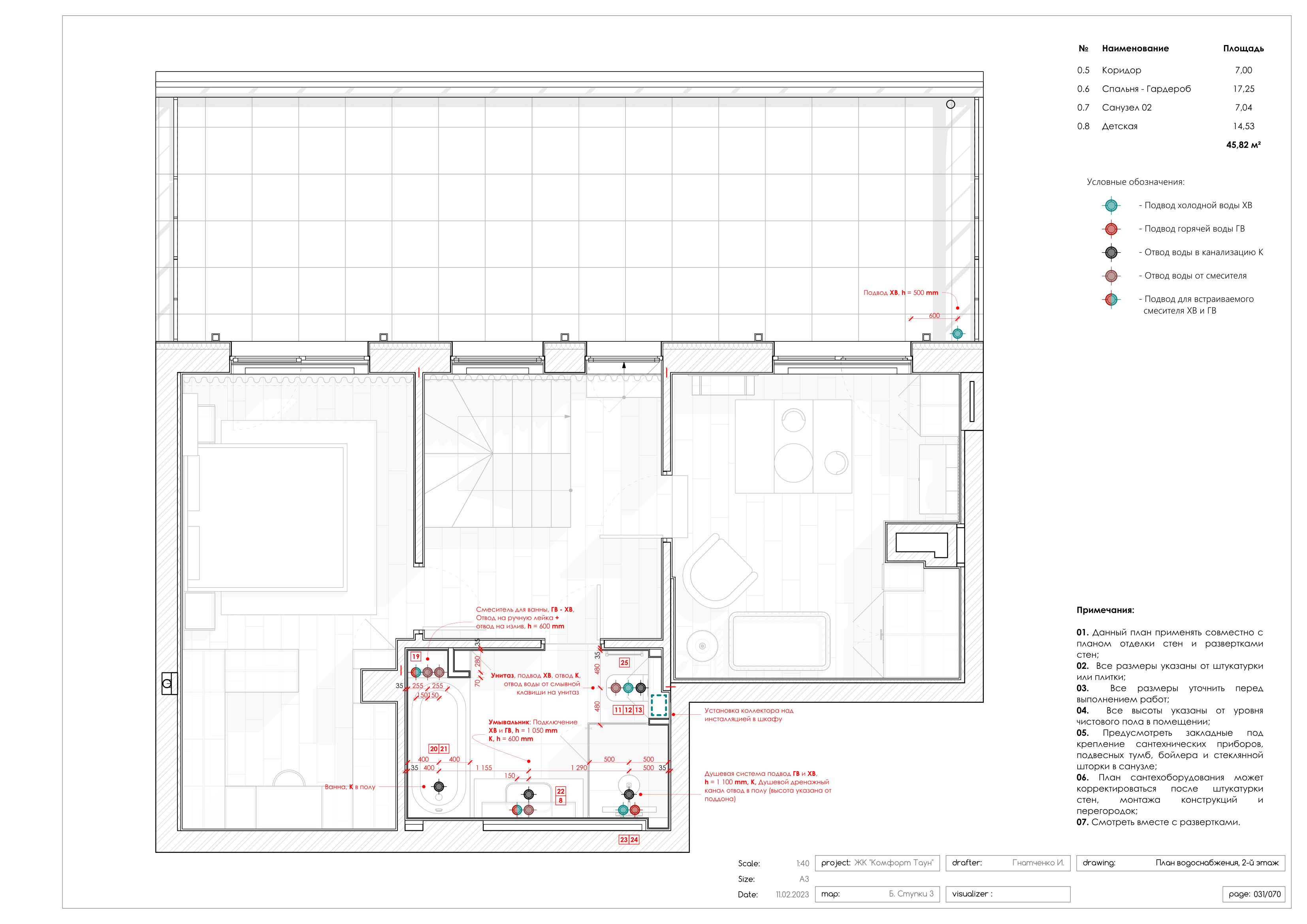
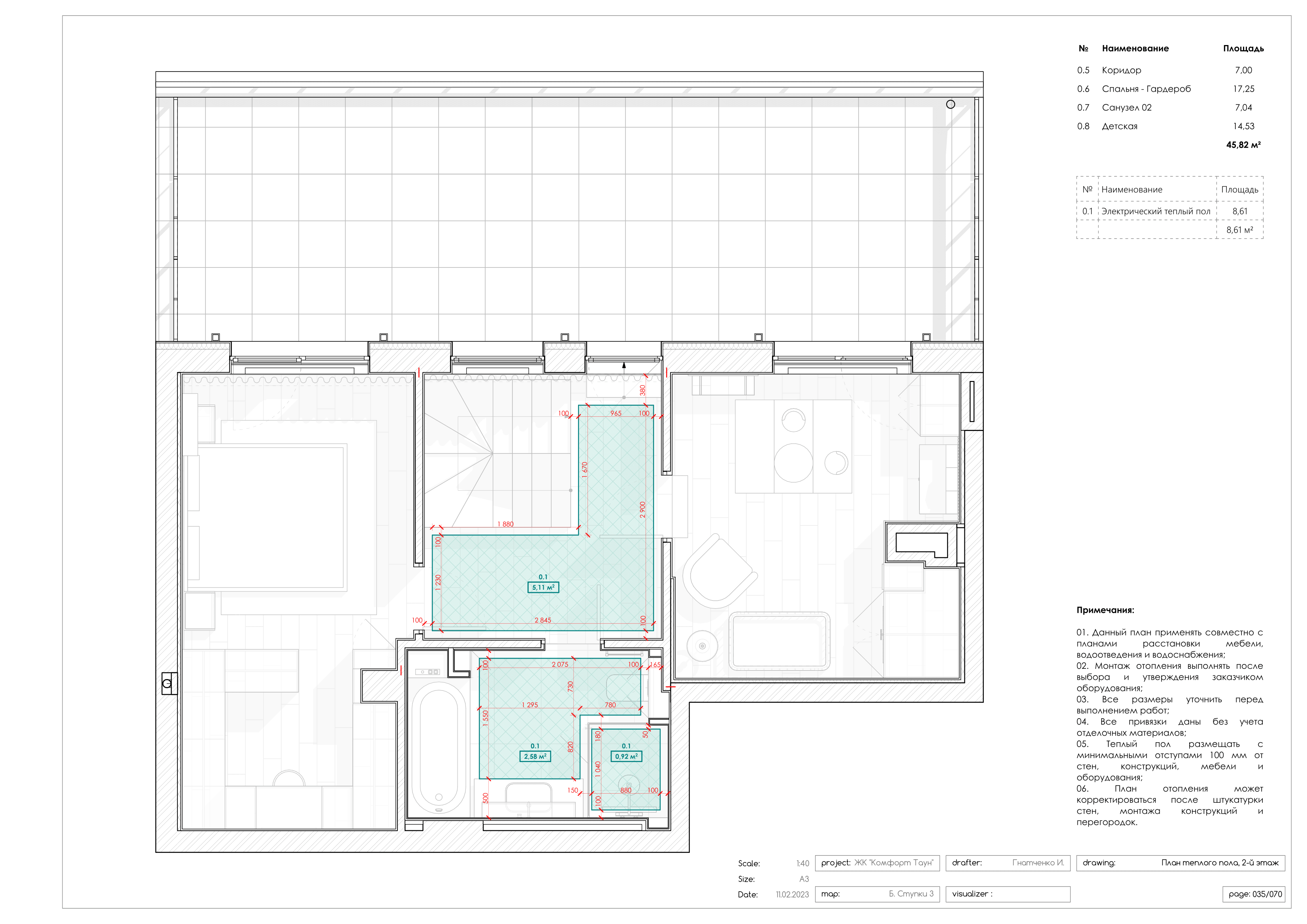
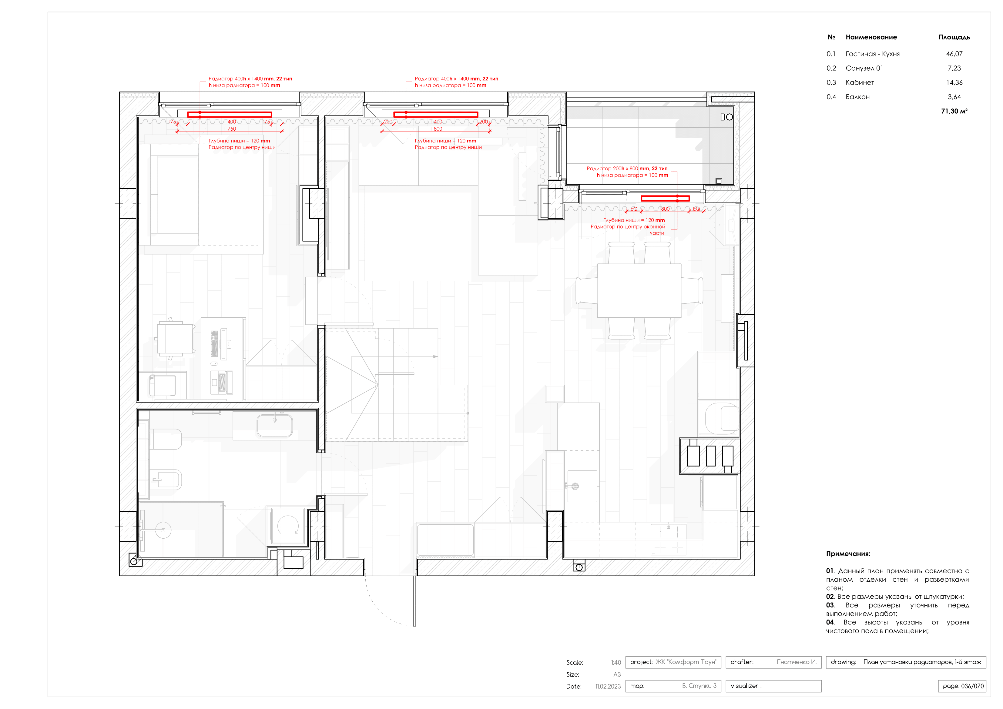
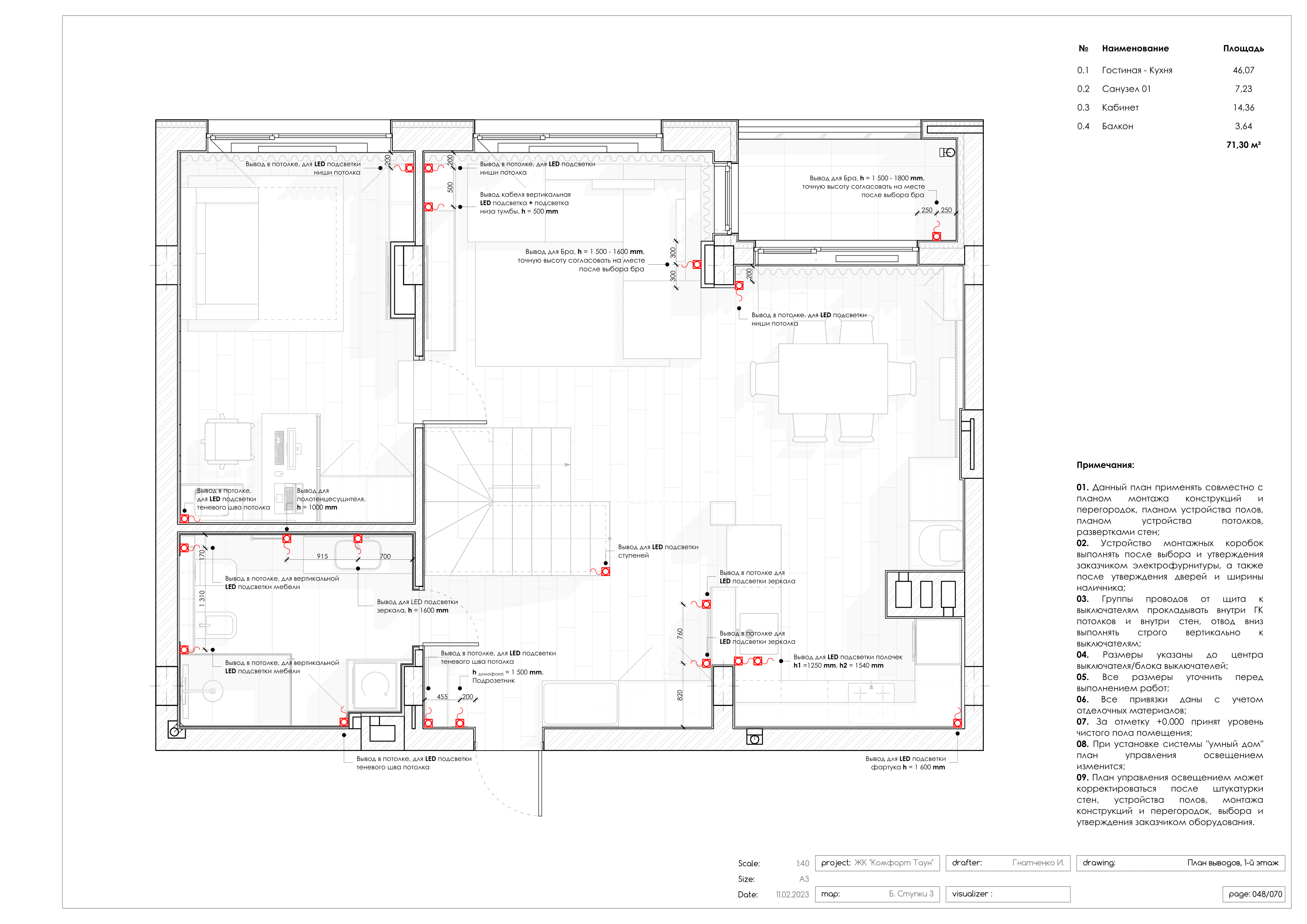
The project took into account the supporting structures and entry points of water supply and sewerage systems.
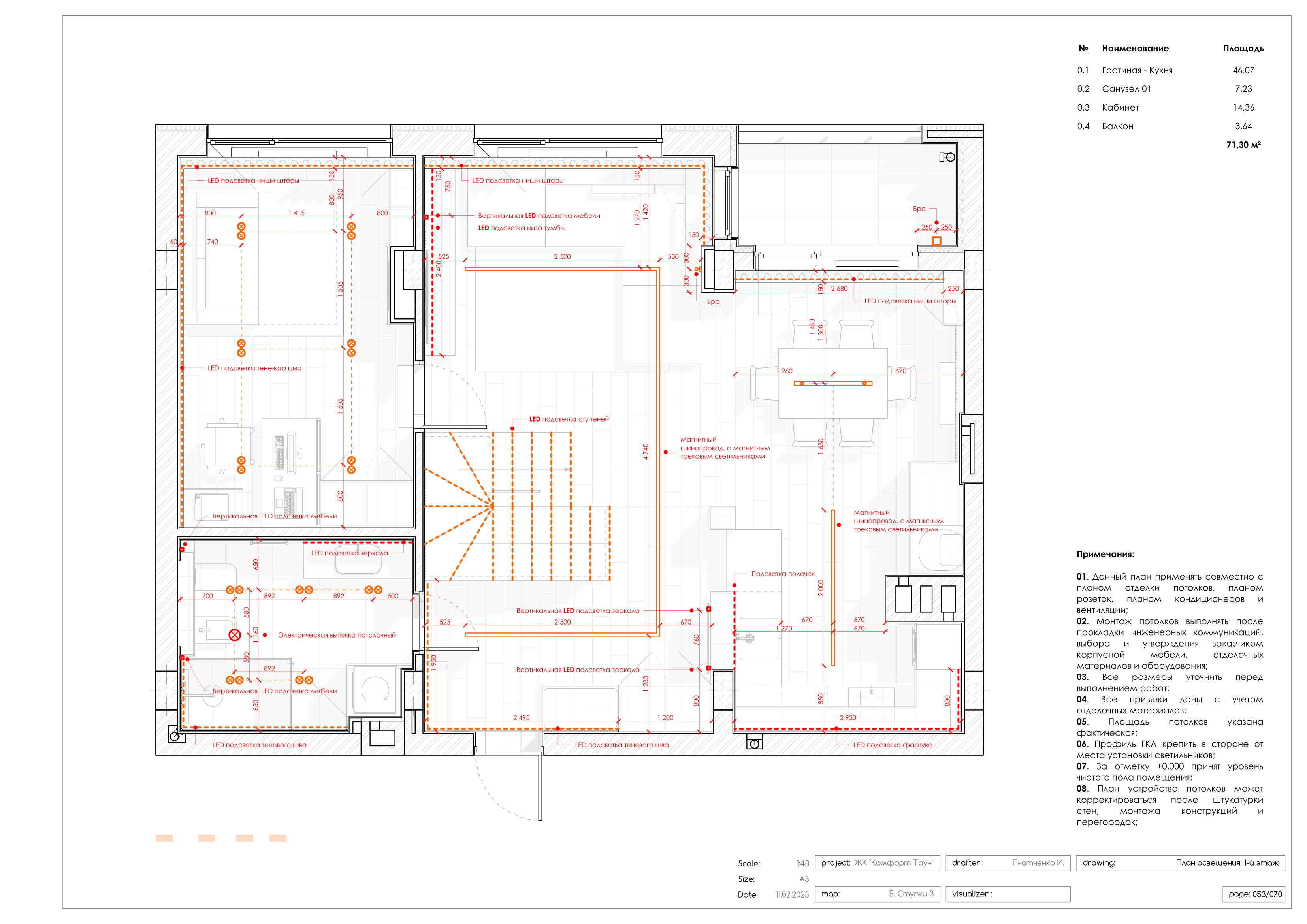
For a long time we were looking for spectacular models of lamps and the shade of brass inserts.
客服
消息
收藏
下载
最近




































































































