查看完整案例

收藏

下载

翻译
Architects:Atelier d'Architecture Meunier-Westrade
Area:100m²
Year:2017
Photographs:Laurent Brandajs
City:Tournai
Country:Belgium
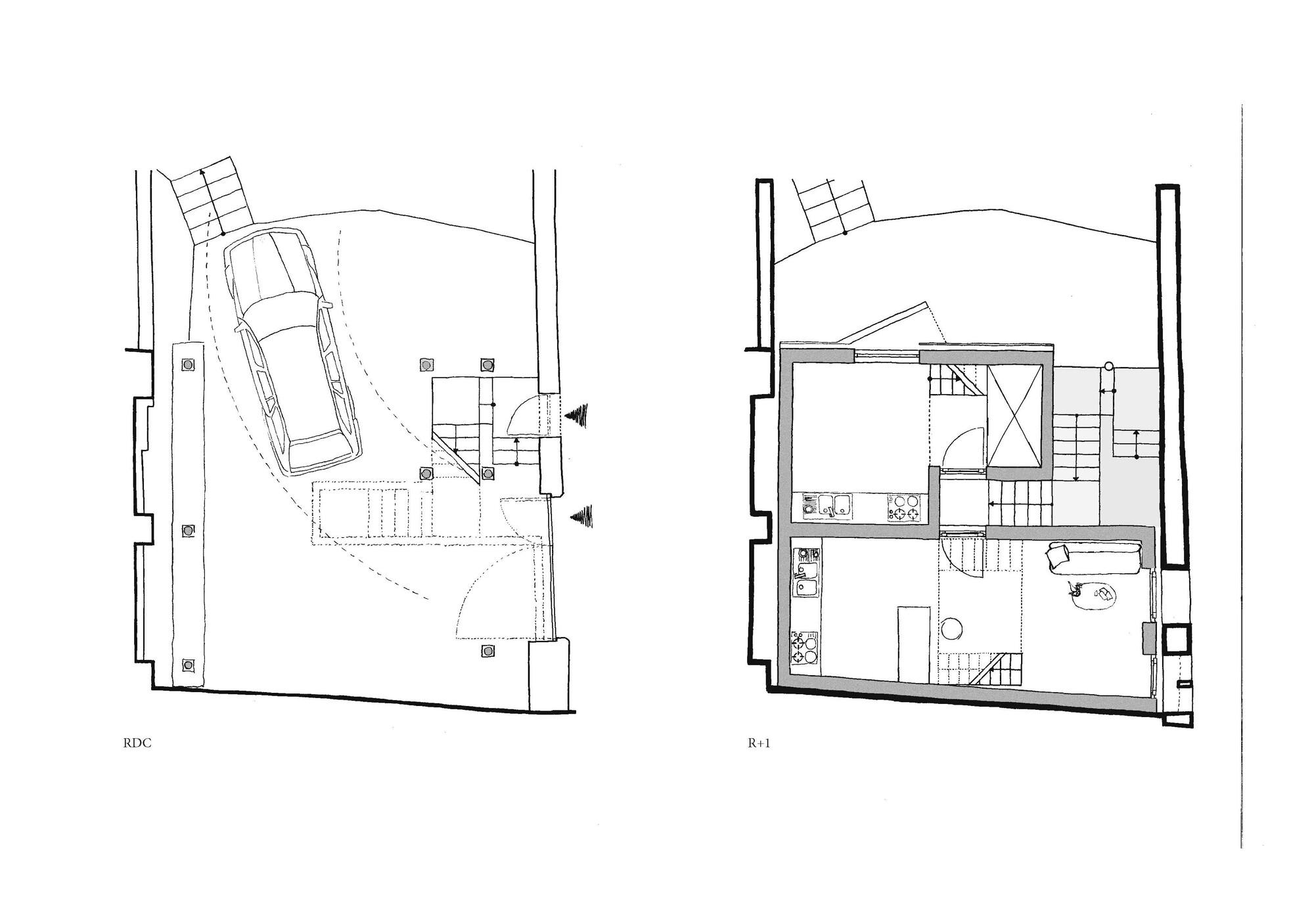
Text description provided by the architects. In the heart of a historic center, perched on a perimeter wall, clinging to the adjoining neighbors, the project is gently deposited on the site.
It perfectly matches the surrounding elements, and even takes advantage of them. The old stone wall serves as a support, we have deliberately accentuated its initial presence by clearing its old openings filled over the years. These will restore light and sight to the new homes created in the shelter of its protective mass.
The wooden frame construction covered with shingles, therefore, symbolizes the "hut" by its construction method and its appearance. "Cabin" that we come to put in the hollow of an existing situation.
The codes used for the arrangements accentuate this party. We access the landing distributing the accommodation by a "suspended" staircase. The interior of the latter is made up of a series of residential landings linked together by different flights of stairs, all articulated around a central skylight. Each function, therefore, has its own floor, while being in relation to the rest of the volume. The arrangement of functions creates privacy; from the public (low level) to the private (high level).
Project gallery
客服
消息
收藏
下载
最近


























