查看完整案例

收藏

下载

翻译
Architects:aRE - Arquitectura en Estudio
Area:610m²
Year:2015
Photographs:Kevin Rodrigo Perdomo Castro
Manufacturers:Porcelanosa Grupo,Productos Arquitectonicos
Lead Architects:Camilo Garavito, Carlos Nuñez, Natalia Heredia
Architectural Project Supervisor:Camilo Garavito, Carlos Nuñez
Interior Design:Natalia Heredia
City:La Calera
Country:Colombia
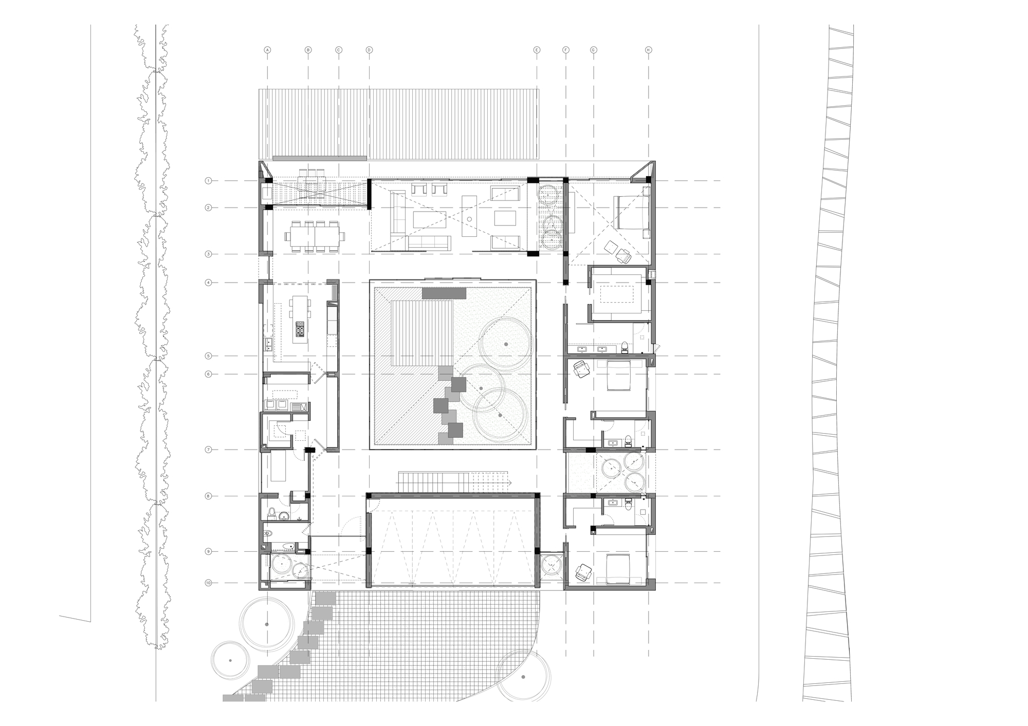
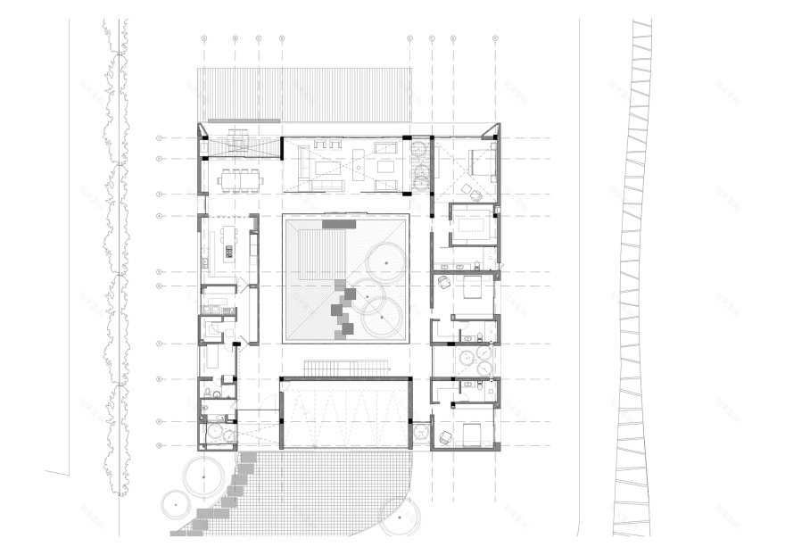
Text description provided by the architects. 2 House is a residential project located in La Reserva de Potosí, in the municipality of La Calera, Colombia. It is a project that starts from the idea of opening up to its immediate visual, a large lake on which the house is turned.
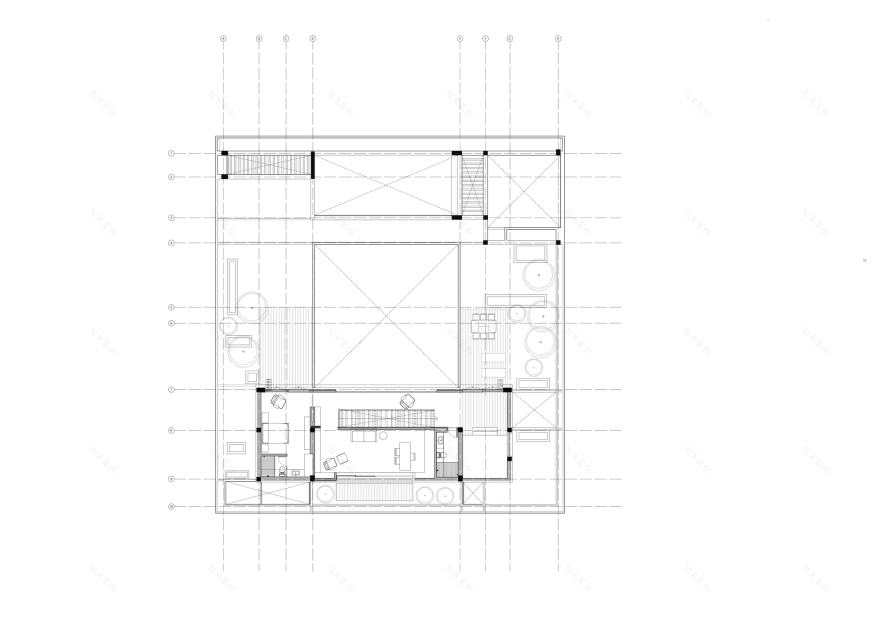
As part of the design of the house, the facade of the project is intended to function as a frame, in which certain views towards the lake and the mountains are enclosed. At the same time, a series of holes were made to the original prism of the house with the intention that they function as visual leakage points of the different spaces. The house is made up of a solid element closed in its limits with the street, where it becomes a more open or transparent element towards the lake and its internal patio. The main form of the project, part of the intention that the same house feels light, which is achieved by moving the second floor back, separating the main facade from the facade of the upper floor, thus obtaining a prismatic reading.
Due to the climate of the place, the project is designed based on a bioclimatic system that allows the house to be isolated from the floor, achieved thanks to the implementation of expanded polystyrene under the plate, the inclusion of double walls insulated with polystyrene and insulation in the ceiling. On the other hand, the materiality of the house seeks to dialogue with and integrate with its ensemble, using accents in exposed concrete and warm tones, especially on the main facade overlooking the lake.
Project gallery
客服
消息
收藏
下载
最近

























