查看完整案例

收藏

下载

翻译
Architects:Maruta Architects
Area:135m²
Year:2018
Photographs:Yuki Funayama
Manufacturers:Daikin,LIXIL,SEKINO,Sanwa,Toto,YKK AP
Structural Engineer:B Farm
Site Foreman:Oizumi Construction Company
Architect:Kentaro Kato
City:Yamagata
Country:Japan
Text description provided by the architects. The site location is in the central urban area of a local city in Japan. Located in a corner of a wide area of land including the main building (Omoya) and the storehouse (Kura). Although being a central urban area, due to the recent depopulation, many vacancies surrounded it. The area itself appeared to be a place with a homogenous design, needing diversity. Still, surrounding the city was a beautiful mountain landscape. This impressive view is what I decided to incorporate into my design.
I decided on the placement of the building and the openings to draw attention to the magnificent distant landscapes. This was accomplished by dividing and sliding the house's volume. Specifically, I placed the openings at the corner of the space, causing the line of sight to fall off in a diagonal direction. This effect gives the room a wider feel. The appearance covered with black Galvalume serves as a shelter in this snowy area. This also allows it from being more conspicuous than necessary in the landscape of the city.
What boundaries define space?
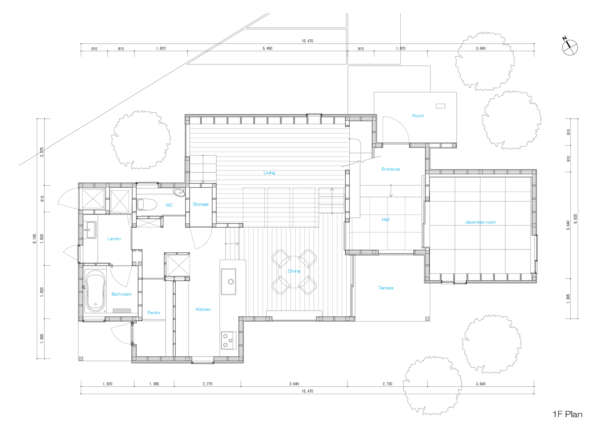
For this house, I adopted a method of defining a space by shifting the floor three-dimensionally. Rather than dividing it into individual rooms by using walls. Instead of dividing rooms by function, the family's lifestyle determines the space in which they are placed.
Inside, the living room with a high ceiling height is in the center. Two sets of stairs lead in two directions, each connecting to the main bedroom and the children's room. Both rooms connect on the second floor. The family shares the experiences of hearing Mama's voice calling her children from the kitchen, Dad's laughter while watching TV, and the sound of the children playing. The lack of fixed partition walls means flexibility. Allowing to add walls to accommodate any future lifestyle changes.
Interior colors and materials consist of white and wood. The backside of the stairs at the entrance is a perfect visual example emphasizing all adjacent spaces are connected. Moreover, the wooden frames arranged at equal intervals not only serve as a structure for supporting the building but as shelving for storing miscellaneous goods and books.
For privacy, doors separate the Japanese-style guest room and the bathrooms, located at the ends of the first floor. A large drawer box is inserted underneath the living room, 700mm level higher than the dining room to ensure sufficient storage. The bright living space, where light comes in from all directions at 360 degrees, offers a pleasant experience that can't be felt in the center of the city, where the buildings are densely packed.
Despite the various floor levels, you're still able to see through the house and hear the presence of others. The gradual succession of spaces allows you to feel the comfort of your family wherever you go. The house is a proposed broad boundary that extends beyond the criteria of numerical functionality and specs in the human-to-human relationship between space and space.
Project gallery
客服
消息
收藏
下载
最近



































