查看完整案例

收藏

下载

翻译
Architects:Gets Architects
Area:880m²
Year:2019
Photographs:Fernando Gomulya
Manufacturers:JUNG,Lutron,Toto,Villeroy & Boch
Lighting Designer:Atmosphere Lighting
Interior Designers:GeTs Architects
Principal Architect:Gerard Tambunan
Design Team:Aleicia Vidya, Josua Raharjo, Dian Xu, Edward Limantoro, Diana Pardede
Photographer:Fernando Gomulya
Site:545 sqm
City:Bogor
Country:Indonesia
Text description provided by the architects. Privileging the view looking out to the golf field and the incidence of sunlight, the mass combination of GolFN House started with a transversal cut. The cut creates a sharp intersection between the upper masses; to confront and frame the lush scenery of the golf field across the house and Mount Salak far away. The site in Bogor is chosen by the owner to reminisce about the cherished memories of his childhood home in Saudi Arabia. The golf field turns into the inclusion of familiar scenery of dunes desert landscape: they have a similar gradual slope although come in different hues. The ideal place to plan and build a space for an easement.
THOUGHTFUL DESIGN - The material of GolFN is used uniquely throughout the upper volume and, as such, the large laser-cut box appears to be floating atop a glass volume. Although the owner comes from Saudi Arabia, he doesn’t want the house to have any ornamentation that resembles the Saudi culture. Thus, the laser-cut box conveys a personalized pattern of a modern and versatile house.
The arrival at GolFN via an open ramp—located on the right side of the house—is secluded by the semi-opaque laser-cut volume above. The combination of vertical and horizontal aluminum sun shading panels constructs a tunnel form. It protects the main entrance from the majority of daylight which occurs primarily through the east-facing building. Thus, creating the surprising effects of light. Furthermore, it also ends up functioning to split the heavy raindrops: a unique natural water feature in this house.
Consideration of the clients aging comfortably in this house determined that there should be leveling that provided with ramp and lift at one continuous level. Therefore, the ramp has to create an atmosphere of a worthy entrance while walking through it. It has uncertainty about the internality of the external space as the owner who is fond of rain doesn’t want the laser-cut mass to be protected by a glass roof. He even wonders why Indonesian mostly don’t like getting rained on.
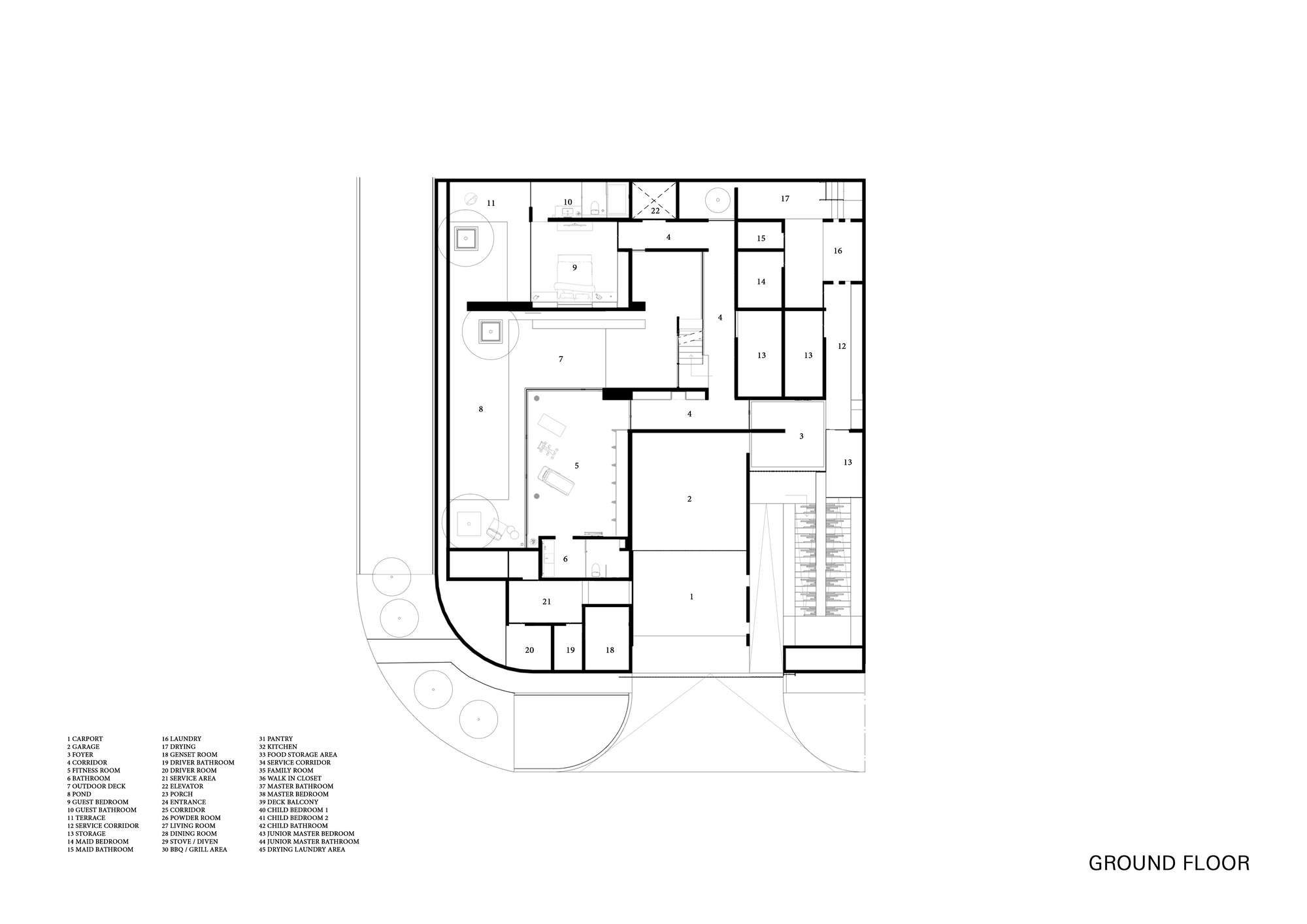
THE HIERARCHY OF SPACE - Designed for a couple with two children, this modern sanctum accommodates a warm and intimate home just as a welcoming space for their extended family. Therefore in the internal space, there’s a hierarchy that works around the different orientations and occasions throughout each level; the semi-private program on the ground floor, the private program on the third floor, and the public program on the first floor.
In the living room on the second floor—which continues to the wooden deck and roof garden—the sliding glass door can be opened completely; diluting the division between the inside and outside areas to maintain a haven atmosphere between natures. The special composition of striped planter box that is combined with a glass roof is also used as a canopy in order to draw natural light to the carport beneath. The accent of the laser-cut volume appears on the interior through the living area ceiling. It also creates an image that the box is cutting from the exterior through the interior area. The living room has an adjoining dining area, which also connects visually to the greeneries outside. Yet, the hierarchy is divided by an elegant openwork cabinet that’s lighted from the ceiling.
In the first level, there’s an 1150 sqm outdoor oasis—where the honed stone wall, wood decking, large void which is covered with laser-cut aluminum pergola, reflecting pool, and trees combined—which continues the multifunction area and guest bedroom area. These spaces are carefully personalized with customized wood decking niches and seating areas for extended family mementos gathered over a lifetime. Also, there’s a special spot in the second area that can be utilized as a porch to peek through the level beneath. It’s created so that the owner can interact vertically with the first floor without having to join the crowd.
The third-floor operable laser-cut aluminum panel on the balconies makes the openness per room adjustable and flexible. The balconies—on the master bedroom and family room—are created by the juxtaposition of those three masses: a closed space with lots of light due to the coverage of the operable aluminum sun shading panel. The honed stone, the grey marble, and the wood embody the concept inspired by the owner’s spirit who doesn’t like the superfluous pattern. As the client said “for me, the ornamentation in design is not the main thing because it’s decorative in nature. The most important thing is the value and sense of space itself.”
Project gallery
客服
消息
收藏
下载
最近





























