查看完整案例

收藏

下载

翻译
Architects:petrjanda/brainwork
Area:400m²
Year:2020
Photographs:BoysPlayNice
Manufacturers:Duravit,Grohe,M&T,ABB,No-Ha,Occhio,Polysan
Landscape Consultants:Jitka Tomsová
Wine Cellar Design:Jiří Stelšovský
Swimming Pools:BERNDORF BÄDERBAU
Gates:ELEKTRIFY
HVAC:Active Elements
Floors:Rajmund Coufal
Interiors:EFF
Glazing:AZ Glass
Structure:AREA ZLÍN
Mosaic Mural:Los Kachlos
Garden And Landscape Design:GARD&N
Fireplace:Krby Zlín
Lights:Ateh
City:Zlín
Country:Czech Republic
Text description provided by the architects. The idea of the house goes beyond its physical form and is built from the inside out on the principle of spatial connection with the environment from which it grows and which it overlooks. The concept is based on the relationship between the house and the city, the house and the garden, and the garden and the city. The relationship scheme is repeated inside the house. The interior communal part flowing through the entire house continues to the exterior and all the separate private parts have their own extroverted relationships.
The visual appearance of the house is defined by its inner nature and the permeability of its physical body‘s (non) separation of the interior from the exterior. Privacy is maintained by facade membranes that allow the maximum view from the inside out, but reduces it from the outside in. To set it in the context of the garden and the city, the house uses material mimicry.
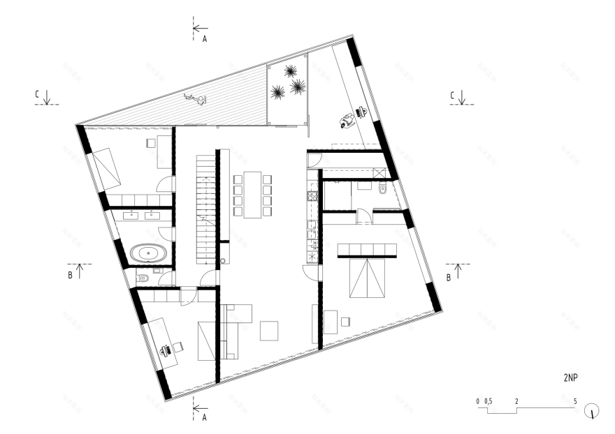
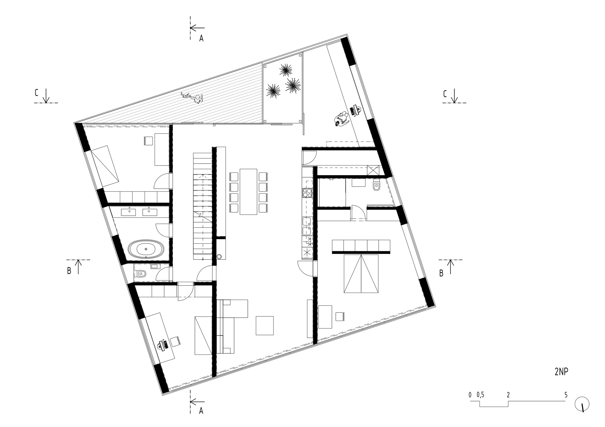
The house is designed as a compact solitaire on a square floor plan, with a slightly rotated layout, where the exterior follows the contour logic of the surrounding houses, while the interior turns towards the valley. The house consists of a lower floor base sunk into the slope and the prism of the main living floor attached to it. This makes it look like a single storey house from the south. The lower floor base is sunk into the ground and its wall with the garage entrance is rotated in a direction perpendicular to the longitudinal axis of the site. The upper floor prism creates a dynamic overhang above the garage entrance.
The motif of the layout rotation is repeated with the terrace space cut into the building’s volume. The green roof returns the missing part of the garden cut off by the house’s footprint and has a fully glazed roof studio on it. The main living space is concentrated on the upper floor and can be seen through from the garden to the city. Thanks to the layout rotation, it was possible to arrange the rooms around the perimeter while maintaining privacy and their own views.
The concept of the house allows changes in use corresponding to changing needs. The house is divided into individual parts, each with their own intimate relationship to the garden and the view, allowing a multi-generational arrangement with two separate guest sections with separate access on the entrance floor. The house uses the principle of aircraft camouflage; the main living floor is visually connected to the sky by dematerialization through mirroring and moiré facades and "levitates" on the Corten base sunk into the slope. From above, the green roof with the studio merges with the garden city, dotted with houses.
The wine cellar, swimming pool with grotto, access area, fencing with entrance gate and dustbin box grow into the slope and merge with the garden. The garden flows smoothly around the house and creates hidden bays protected from the outside that allow panoramic views of the city. The open concept naturally achieves privacy thanks to the vegetation protecting the boundaries of the site.
Project gallery
客服
消息
收藏
下载
最近







































































