查看完整案例

收藏

下载

翻译
Architects:Coates Design: Architecture + Interiors | Seattle Architects
Area:2600ft²
Year:2015
Photographs:Lara Swimmer
Manufacturers:Duravit,BlueStar,Dioscuri,Island Stone,Jasper Morrisson for FLOS,Kohler,Kohler Vault,Majestic,Montigo,Peter Bowles for Original BTC,Subzero,WAC Lighting,Wolf
Principal Architect:Matthew Coates
Project Manager:Bob Miller-Rhees
Project Architect :Emily Banks
City:Bainbridge Island
Country:United States
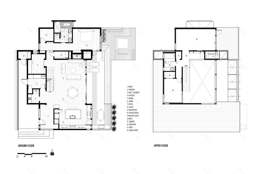
Text description provided by the architects. This hillside retreat is 2600 square feet with two bedrooms, fit for a small family to enjoy an island getaway. Similar to its sibling shoreline home, Seaview Escape, the island retreat is done in the Pacific Northwest architectural style, with wood floors and expansive two-story glazing allowing a view of the mountains from the upper balcony. Cantilevered wood “floating” stair treads lead to a library overlooking the double-height living and dining space below.
Beach glass and nautical light fixtures were chosen for the bathrooms to bring a coastal feel indoors. A stone mass wall with corten panels provides the focal point of the living space, housing a fireplace and media center while providing separation from the master suite. The house is connected to a wooded pathway that leads to the beach, creating a natural transition from the home to the outdoors.
The hillside waterfront property has been in the clients’ family since the 1950s and contains two parcels that once had a mid-century home and a 1920s cabin. The two siblings that had acquired these wanted the two homes redeveloped in conjunction with one another. They hoped they would be able to use the houses, which are just 50 feet apart, as a retreat for big family gatherings to ensure their families stayed close.
The existing site topography was maintained to minimize earth disturbance on the steep slope and the new homes were built on the existing footprint. Each home includes a material palette of stone, concrete, wood, and metal, complimenting one another while defining the subtle differences in the siblings’ personal tastes. Both utilize a stone mass wall to delineate the private spaces from the shared central public spaces. The site is accessed by a communal drive shared between the two retreat homes, providing a unique overlook of the cantilevered green roof.
Project gallery
客服
消息
收藏
下载
最近






























