查看完整案例

收藏

下载

翻译
Architects:Scott Donald Architecture
Year:2020
Photographs:Daniel Hopkinson
Manufacturers:Sky-Frame,Dinesen
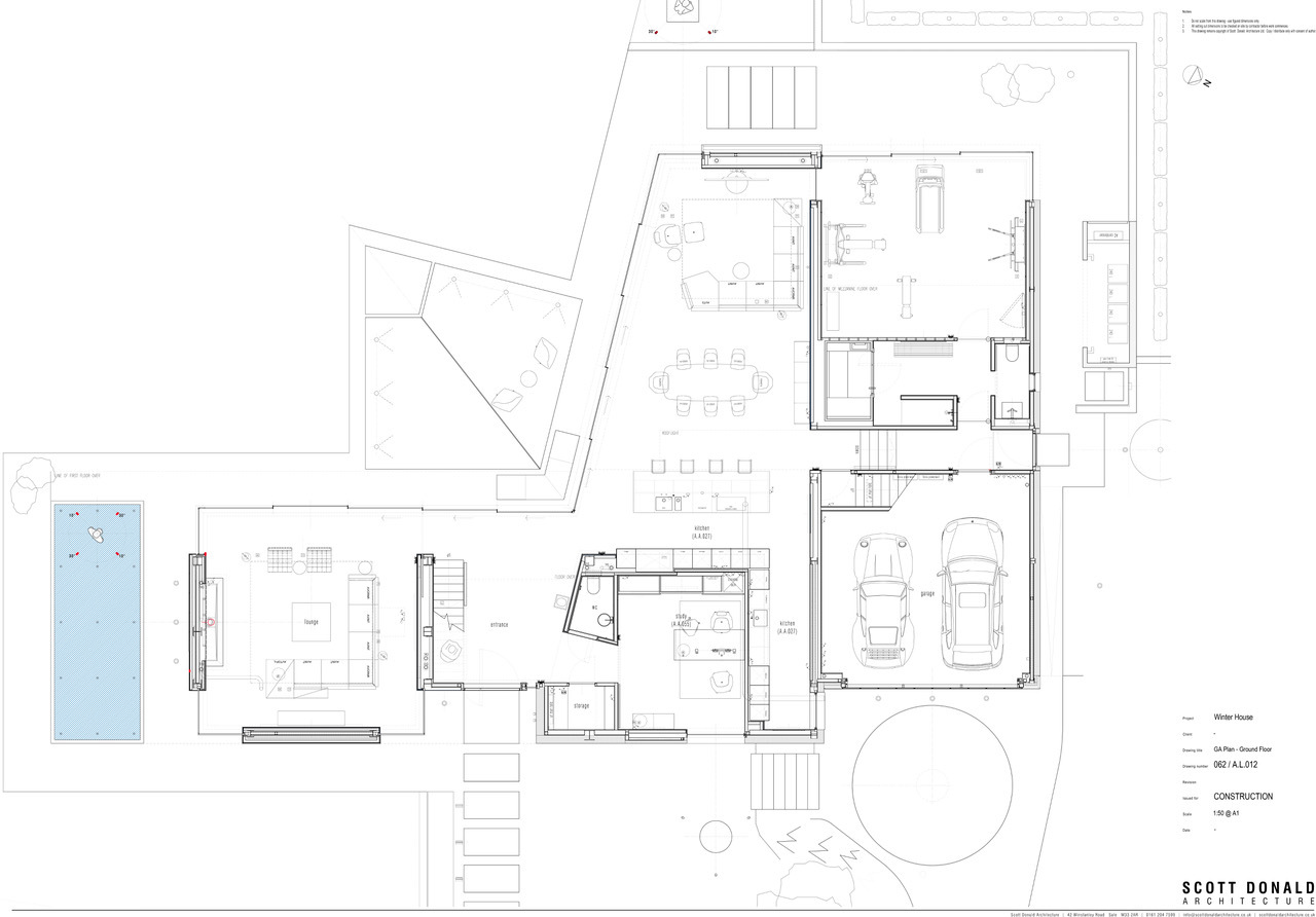
Text description provided by the architects. Scott Donald Architecture was given a free hand to design this private home in a rural area in the English Midlands. The result is a sophisticated, modernist home with dark shapes surrounded by art and nature. Situated in a Conservation Area in the English Midlands, this statement home nestles into its green setting, all floors inviting the tree-lined exterior in. The interior is carefully designed to open the house to the surrounding landscape.
Large, glazed sections, especially on the ground floor, connect the interior of the house to the outdoors and the landscaped garden, which is visible from every room. The common areas on the ground floor have a unified expression defined by clean lines art and modern furniture. The upper floor contains four bedrooms. The dark notes of the exterior are replaced with lighter notes indoors, and concrete, steel, glass, and Dinesen wood have been put to good and meaningful use by Scott Donald’s team of architects. “We chose Dinesen Heart Oak as we wanted a material to contrast with the polished concrete floor throughout the house’s ground floor.
Finished in natural oil, the Heart Oak exudes warmth and character. We were also keen for the bedrooms to have a feeling of tranquillity and we believe the HeartOak helps achieve this. Another reason we chose HeartOak was for its natural appearance. The board’s fissures are preserved and stitched via butterfly joints – a visually satisfying detail which really adds to the authenticity of the material.” - Scott Donald, architect, and founder
Project gallery
客服
消息
收藏
下载
最近


















