查看完整案例

收藏

下载

翻译
Architects:RAAMWERK
Area:120m²
Year:2020
Photographs:Stijn Bollaert
Manufacturers:Accoya
Lead Architects:Freek Dendooven
City:Drongen
Country:Belgium
Text description provided by the architects. A ruinous workshop forms the framework for a single-family house. The existing construction consists of a double-high volume and an adjoining shed. Both structures are fully preserved and the new volume becomes part of the generous ensemble on the site.
The roof of the shed is opened up, the spacious volume serves as an intimate walled garden. The adjacent volume is stripped of all inner walls and floors and a new wooden house is built on top of the existing slab.
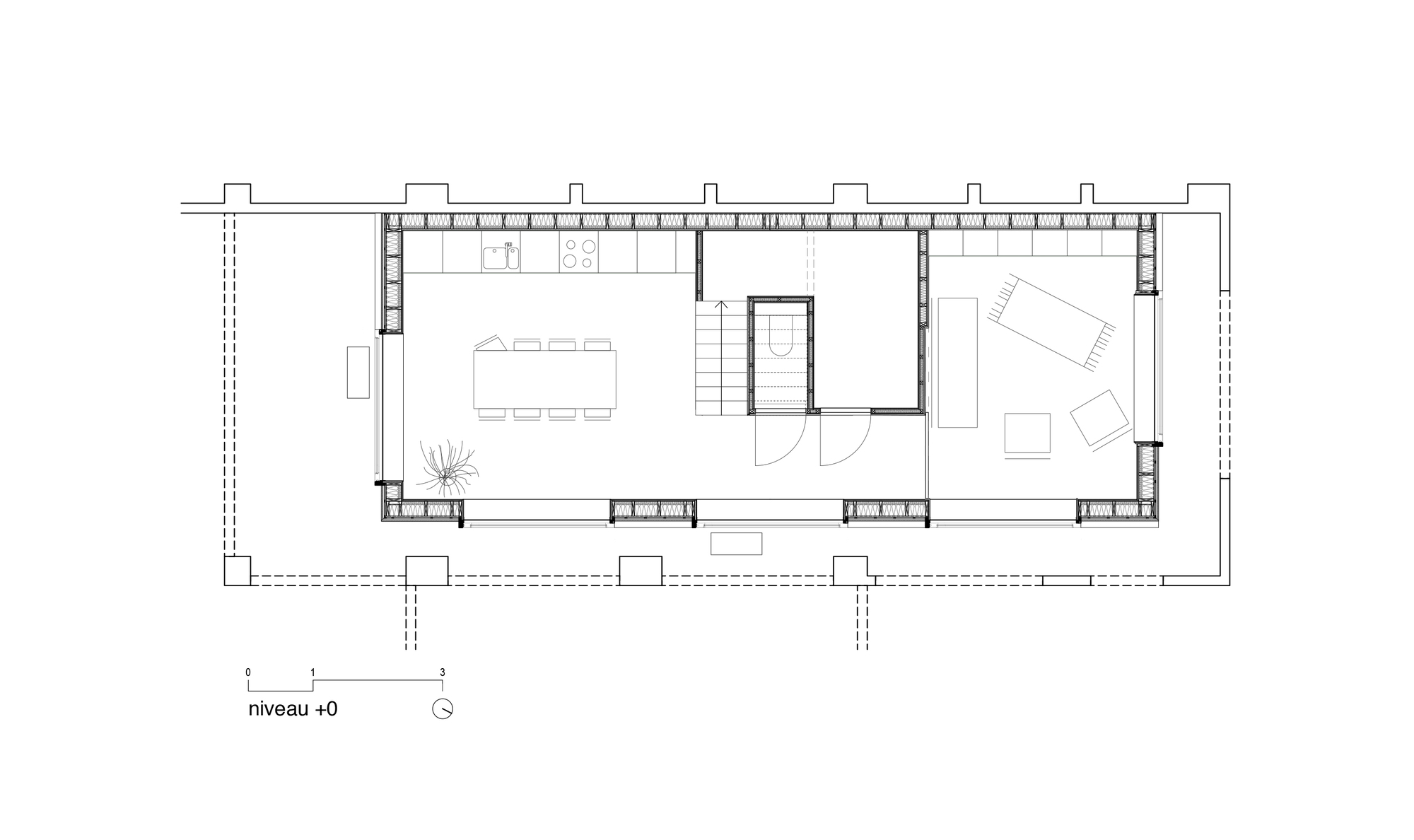
By disconnecting the new volume from the old structure, the existing walls work as a screen between the home and the imposing outdoor spaces. The new house consists of two floors that each has two rooms with a central serving core.
A minimal floorplan that can be expanded by the covered outside spaces of the shed. An intense dialogue is created between this rational plan and the existing joinery.
Project gallery
客服
消息
收藏
下载
最近
























