查看完整案例

收藏

下载

翻译
Architects:atelier Luke
Year:2018
Photographs:Yohei Sasakura
Manufacturers:Grohe,Cielo,Gotoh Lighting Furniture,HORI LOCKS,Hi-Ceramics,Ikea,JIMBO ELECTRIC,KISOARTECH,Kaibara Metal Industry,Lixil Corporation,Panasonic,Rianni Corporation,West Village Tokyo
Builder:Matsuhiko Construction
Project Team:Naomi Murasaki, Junko Nakatsuka, Luke Hayward
Site Foreman:Hideya Tanaka
Cabinetmaker:Jurinsha
City:Kyoto
Country:Japan
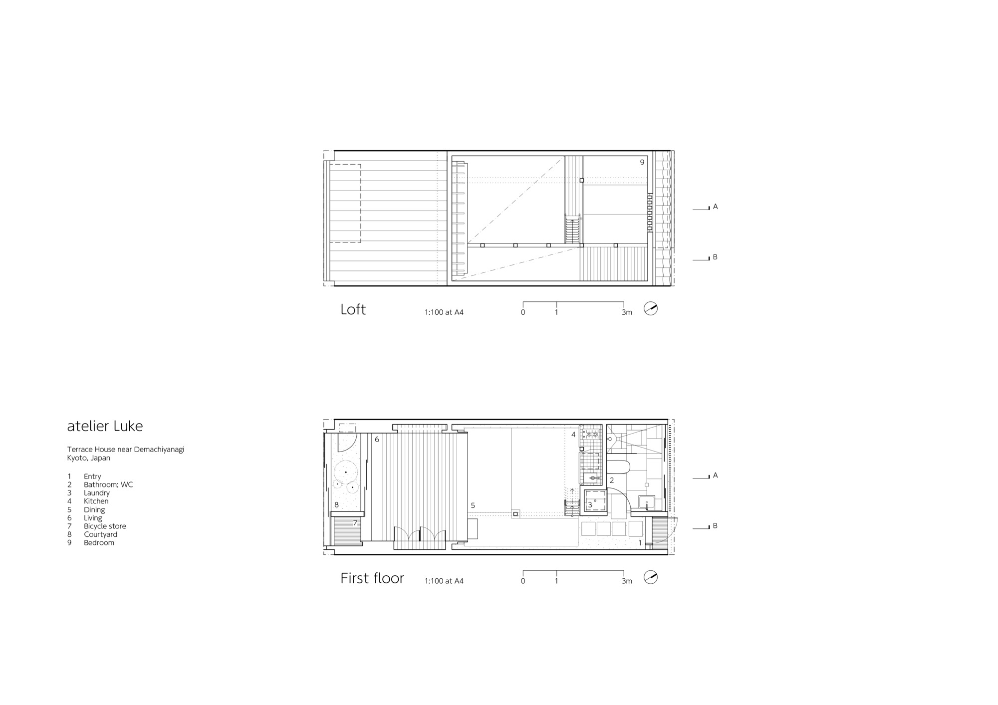
Text description provided by the architects. This extensive renovation of a typical post-war Japanese row house is located in the quiet northern suburbs of Kyoto. Over the years, the house had received a series of minor modifications, but the original structure was still evident.
Conceptually the approach was to strip back the house to its essential structure and remake the dwelling through careful intervention; legibly differentiating old and new. Spaciousness is created within this small home through darkness as well as light. Shadows extend almost infinitely above whilst the ground plane extends into the street, blurring the bounds of the small plot.
Internally the black stained timber skeleton creates a spacious vertical void of shadows within which two pristine cedar boxes are inserted, almost as furniture. A box at the entry provides containment for the bathroom, kitchen and laundry, with an elevated sleeping loft accessed via a ladder. Atop this box, views are revealed to both the private and public realms of home and neighbourhood. At the rear, a new timber box is inserted, bringing lightness, warmth and connection to the street, buffered by a private garden.
A series of layered screens and doors modify negotiation with the public domain and provide a variety of modes for adapting to Kyoto’s seasons — capturing winter sun and summer breezes as desired. In-floor heating and insulated glazing provide additional thermal comfort, without being evident in the aesthetic of the home.
Given the age and condition of the original building, much of the structure was augmented or replaced to comply with contemporary requirements for seismic safety and fire resistance. The exterior fabric was further adapted to provide improved thermal efficiency, acoustic separation and overall resilience.
A simple and refined palette of materials is used throughout and was selected to best utilize skilled local carpenters and plasterers. A close working relationship with the builder and local suppliers allowed all timber to be sourced from the same managed forests in the Yoshino region of nearby Nara. This versatile cedar plays all roles; from structure, to joinery, cabinetry, linings and external cladding. Natural finishes of linseed oil and tannin-based stains were selected to complement the natural durability of the timber, allowing the material to age gracefully without maintenance.
Natural grey cement floors and walls, with textured markings celebrating handmade finishing techniques, contrast the warmth of the timber. Brass trims, fixtures and custom lights bring flashes of gold within the shadows.
In contrast to the approach internally, the front façade has been carefully remade using traditional techniques, with distinctive elements — such as the mushikomado lattice window — restored through close collaboration with local craftspeople. Within the surrounding context of unsympathetically modified homes, this respect for the past is strangely a radical intervention. The quality of real trades and materials is evident when contrasted with the palette of prefabricated and plasticized finishes that dominate this typical Japanese suburb. The diminutive scale and fine permeability almost present the home as an historical artefact within the street, demonstrating an alternative to the towering and impregnable neighbours.
Project gallery
客服
消息
收藏
下载
最近






































