查看完整案例

收藏

下载

翻译
Architects:Architecture Microclimat
Area:2640ft²
Year:2020
Photographs:James Brittain
General Contractor :Les espaces Per/So
City:Montreal
Country:Canada
Text description provided by the architects. The Maison Berri project is located near the Jean-Talon market in Villeray, at the heart of the hustle and bustle of a sought-after neighbourhood of Montreal. The house that Sophie and Shawn had found, which was devoid of any architectural language after successive modifications, had to be completely redone to accommodate their family. The decision to demolish the existing home was a quick one due to the deteriorated state of the property as well as the sunken structure. Not to mention that the exceptionally small Montreal lot offered little to no space for a front- or backyard.
Tiny lively site. The challenge was to optimize the maximum capacity of the land to welcome a new contemporary building that would respectfully settle into its surroundings. The project also had to meet the clients’ hopes to find more intimacy within a dense neighbourhood and introduce the outdoor space within the heart of the home itself.
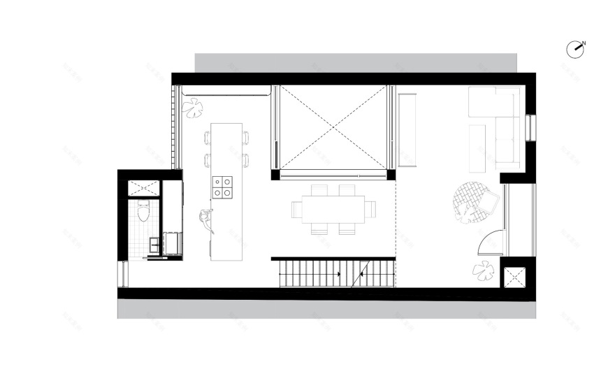
The project consists of a new 245 square meter (2640sq. ft.) building, with two above-ground levels as well as a mezzanine and a partially lived-in basement. In response to these challenges, two concepts were developed: a review of the ‘classic’ composition of the living spaces to situate them on the upper level, and the creation of an interior courtyard around which the house was designed.
Raising living areas. Moving the living room, kitchen and dining room upstairs offered, in part, more natural light to these living spaces all while offering some distance between the street level and the occupied rooms during daytime hours. This also allowed the integration of large windows without giving the impression of being exposed or imposing a life lived behind closed curtains. Inverting the typology to set the living spaces upstairs further reinforced the enjoyment of the mezzanine, with closer proximity with the rooftop terrace facilitating its use.
On the lane side, the L-shaped building aligns with the immediate neighboring buildings, ensuring the continuity of both the exterior spaces and the existing built profile. More precisely, the setbacks of the facades make it possible to minimize the presence of the volume on the landscape of the lane and to optimize the sunshine all around.
The property’s courtyard now runs from the inside of the building towards the alleyway (and vice versa). The inclusion of a porch, which doubles as a parking lot or covered terrace, ties the exterior to central access to the home. Partially covered by the upstairs kitchen, it also remains partially free and open, creating a skylight of sorts at the center of the home - a glazed connection from the upstairs level all the way through the ground floor.
Materiality and integration. The composition of the facades fully assumes a contemporary language, yet is reminiscent of the more traditional aspects of Montreal’s patrimonial architecture. The horizontal bands of stone that both break and unite the facade, the stone lintel above the windows, and the rows of vertical brick at the top all enrich the building’s composition. A monochrome application of lighter shades of beige and grey offers a softer touch.
Project gallery
客服
消息
收藏
下载
最近

























