查看完整案例

收藏

下载

翻译
Architects:Studio Lotus
Area:220m²
Year:2019
Photographs:Andre J Fanthome
Manufacturers:ALCOI,Daikin,Kohler,Shades of India
Structural Consultant:Manjunath BL
MEP Consultant:Vineet Lochan Gupta
Interior Contractor:Antrix Construction Pvt. Ltd
Civil works:Baleshwar Mondal
Interiors:Antrix Construction
Structural:Baleshwar Mondal
Design Team:Ambrish Arora, Sidhartha Talwar, Anusha Pulapaka, Harshvardhan Kumawat
Lighting Design Consultant:Abhishek Khandelwal
Client:Mr. Darpan Wadhwa
Metal Works:DG Enterprises
City:New Delhi
Country:India
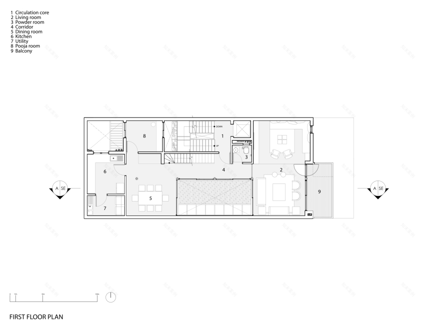
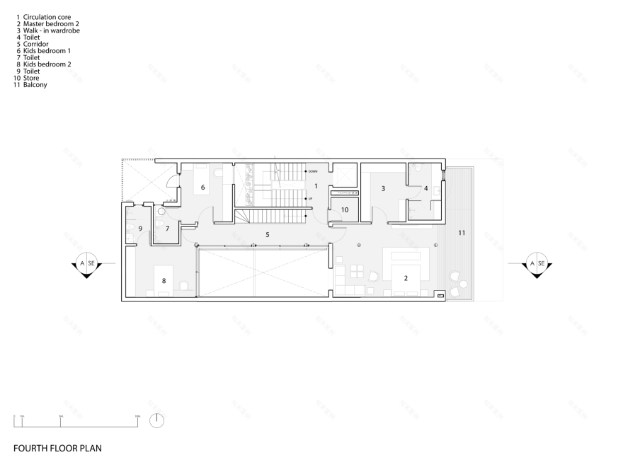
Text description provided by the architects. Daylight, ventilation, interconnectedness and privacy inform the design of this house by Studio Lotus in a dense part of the Panchsheel Enclave neighborhood in New Delhi. Sited on a small one-side-open plot of 200 sq.m area, Studio Lotus has designed this house as two interconnected duplex apartments for an extended family of six; the client, his wife and two children in one apartment, and his elderly parents in the second apartment.
The west-facing plot is 9m x 24m deep and is enclosed by buildings on three sides with no setbacks, with the narrower 9m face opening towards an 8m wide feeder road. The team took on the challenge of creating an airy, day-lit sanctuary that would remain naturally illuminated, with all rooms cross-ventilated throughout the day despite the restrictive site conditions.
There was also the desire to create a strong visual connection between the different units to facilitate a sense of connected living for the family units. This became the starting point for the design exercise that evolved into a series of vertically stacked volumes– the four-storey home is expressed as two staggered duplexes around a central courtyard and a small rear courtyard that is staggered in section, allowing light and ventilation deep into the lower floors. The street-facing west façade, the offset central courtyard, and the diagonally placed third court form the three vertical spines around which all the rooms find their rightful place.
The west front comprises the living rooms and the master bedrooms of the two units, opening through the courtyard into the rear volume, which houses the dining and the kitchen on the lower floors and bedrooms on the upper floors respectively. Multiple balconies and walkways connect these living spaces, creating a characteristic staggering of the floor plates that articulates the internal courtyard. The primary central courtyard has been designed as a triple-height light colored wall to act as a reflector for the South light into the internal spaces that are staggered around it. The courtyard is also flanked by verandahs that are outdoor extensions to life within the house and a place for different family units to be able to chat across from the space they occupy, like in an old fashioned aangan.
The intervention serves to activate the entire vertical volume inside with fresh air and ambient lighting. To further aid ventilation and diffusion of natural light in the living spaces, the linear stairwell connecting all floors has been placed along the southern façade, owing to it receiving the lowest levels of illumination and a small sky-lit courtyard has been created at the south-east corner of the site. Views of the tree-lined street have enabled the studio to design the external glazing in accordance with the ‘split’ within the house–the north-western façade has a glazed surface, while the south-western face features exposed brickwork.
To maximize the heights within this tight space, structural engineer BL Manjunath came up with an innovative hybrid structural system, comprising of a modular metal grid of beams and columns with concrete slabs poured within the frame, accommodating the beams within the slab. This maximizes heights and creates seamless sightlines with no visual obstruction and exposes the structural system–making this small home a frugal yet finely crafted expression of its materials.
The design employs an earthy material palette to elevate the tactile experience of the shell complementing the open, airy spaces. White plastered walls, exposed metal work and white terrazzo flooring populate this shell, facilitating the overarching intent of crafting light and roomy volumes. Subverting the archetype of poorly-lit row-houses characteristic of such dense neighborhoods, the design of Stacked House proposes an alternative morphology for residential developments in Indian cities–one that borrows from traditional building patterns as much as it does from modern technological innovation.
Project gallery
客服
消息
收藏
下载
最近



























