查看完整案例

收藏

下载

翻译
Architects:RLDA
Area:4365ft²
Year:2020
Photographs:Suryan // Dang
Manufacturers:Jaquar,KG Tiles,Matador Luminaires,Metallon India,Pavers India
Lead Architects:Rahoul B. Singh, Lakshmi Chand Singh
Structural Engineering Company:Jaitly Associates
Contractors:S S Contractors
Architect:Suhela Kaur Maini
Rendering:Saurav Aggarwal
Structural Engineer:Navin Jaitley
Contractor:Sandeep Bhadwaj, S S Contractors
City:New Delhi
Country:India
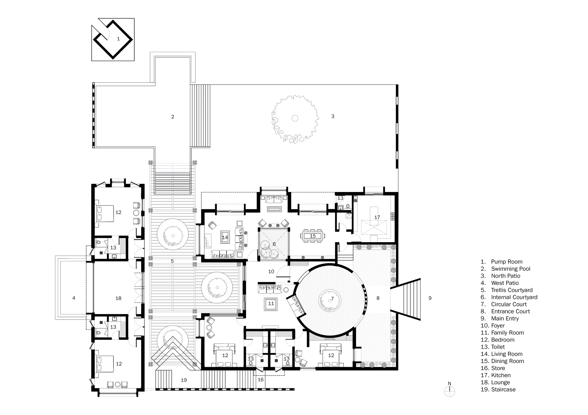
Text description provided by the architects. The house is sited towards the southern end of a 6,780 sq. m. plot in New Delhi, India. This allowed the building to take advantage of the natural slope of the land, the location of an existing tree and a previously built driveway on its eastern boundary. The project consists of four structures that define its spatial character (a circular guard room, a cuboidal pump room and two residential blocks). Each structure is made predominantly of brick.
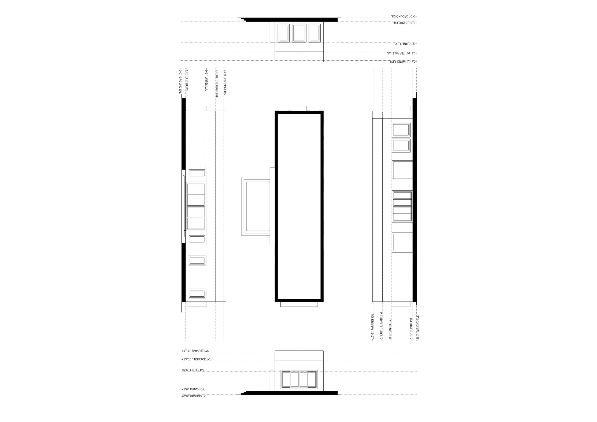
Distinct and varied brick coursing details establish a series of wall typologies that define the visual character of the project. The houses aesthetic is derived from a hand crafted tectonic that resulted from the relationship between a basic brick module and the sun. A steel trellis connecting two residential blocks further articulates this relationship.
A series of brick projections that are denser at the bottom and more sparse as they rise are organized in three equally spaced courses that accentuate the verticality of the buildings and distinguish between the ground plane and the top of the building. Collectively they define the formal language of the projects elevations. The degree of shade and type of shadow varies on account of both the brickwork and the angle of the sun, collectively they shade the wall and in doing so contribute to the buildings passive cooling strategies.
The temporality associated with these shadows along with those cast by the trellis and adjacent building blocks create a pattern on the wall that is in response to the position of the sun. This pattern evolves as the sun moves both over the course of the day and of the year. The graphic and abstract shadows cast by both the brick work and the trellis collectively create “a sense of space and a sense of place.” Additionally, they create an aesthetic that is both dynamic (dependant on the location of the sun and the shadows it casts) and static (defined by the brick coursing and the trellis).
A swimming pool is strategically located at the junction of the two residential blocks and the overhead trellis. By virtue of its location it serves as a water reservoir for evaporative cooling which is another one of the projects passive cooling design strategies. Within the house a series of four courtyards allow for a more intimate landscape expression and occupation which along with a clerestory window in the kitchen induces the “stack effect” and allows the hot air to escape from the adjoining interior spaces. This further helps to keep the building cool.
A cuboidal brick pump room is located in one corner of the pool which along with the circular guardroom serve as an architectural folly within the greater landscape. By virtue of their prominent locations they introduce the projects defining elements while maintaining an identity that is unique to them.
The project engages with the multiple contexts of climate and landscape, materiality and tectonic, sun and shadow, to create a spatial experience that is constantly evolving and engaging. In doing so it draws on the craft and material tradition of the region for its making and gives it an ever evolving contemporary expression.
Project gallery
客服
消息
收藏
下载
最近




























