查看完整案例

收藏

下载

翻译
Architects:ENDO SHOJIRO DESIGN,td-Atelier
Area:109m²
Year:2020
Photographs:Matsumura Kohei
Manufacturers:Adobe,Astage,Jw-CAD,LIXIL,Sanwa,YAZAWA
Landscape Design:Michikusa, Michikusa, Ogasahara Satoru
Construction:Fuzisaki Gumi Company Limited
City:Kyoto
Country:Japan
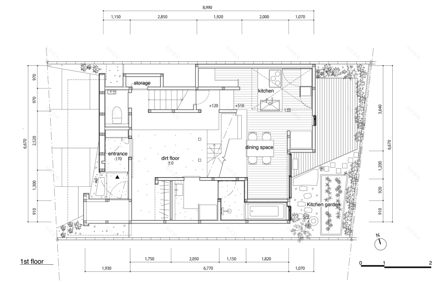
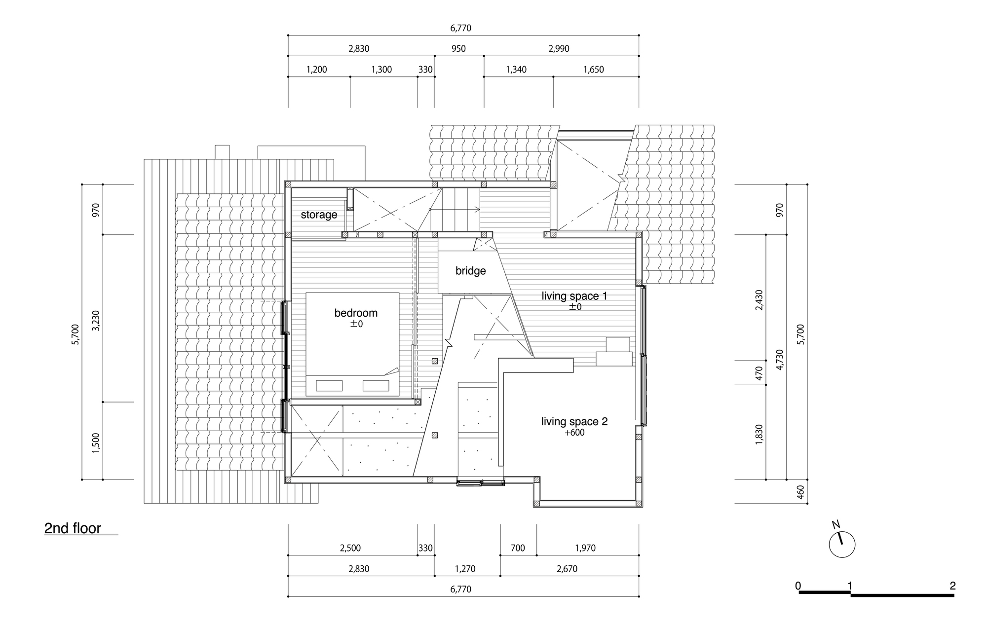
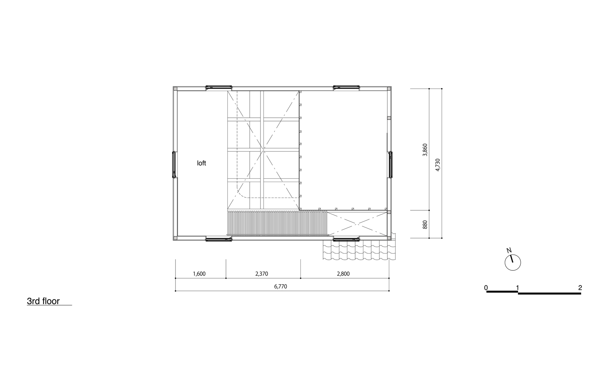
Text description provided by the architects. This is a renovation of a 40-year-old wooden house built on the approach to Shimogamo Shrine in Kyoto. It is in a great location with a forest-like park on the front and a river on the back. It had an underground storeroom and a loft, and we think the possibility of a space that spreads vertically. Therefore, we considered a wall for a diagonal structure that opens the four layers from the basement to the loft and divides the internal space into two, the forest side and the river side.
The forest side is a dark and quiet space with an approaching diagonal wall, making it a place where individuals can concentrate on their work. The river side is a bright space with a feeling of rising due to the slanted walls spreading upward and natural light, and it is a place where families gather.
The height of each floor is changed little by little, and it is slightly distanced from the diagonal wall. This created a lot of small gaps between the floor and the walls. These various gaps connect the spaces, creating a space where brightness and darkness exude.
We can experience a rich space by moving up and down in the architecture like a spiral and going back and forth between diagonal walls. It is a house where you can enjoy a collection of many small spaces.
Project gallery
客服
消息
收藏
下载
最近


























