查看完整案例

收藏

下载

翻译
Architects:Joe Adsett Architects
Area:519m²
Year:2020
Photographs:Scott Burrows
Manufacturers:Randers Tegl,Sculptform,Artedomus,Cavalier Bremworth,PGH Bricks,Polytec,SNB Stone
Structural Engineering:NGS Structural Engineers
Landscaping:Grotec Landscape Solutions
Builder:Allwood Contractors
City:Hope Island
Country:Australia
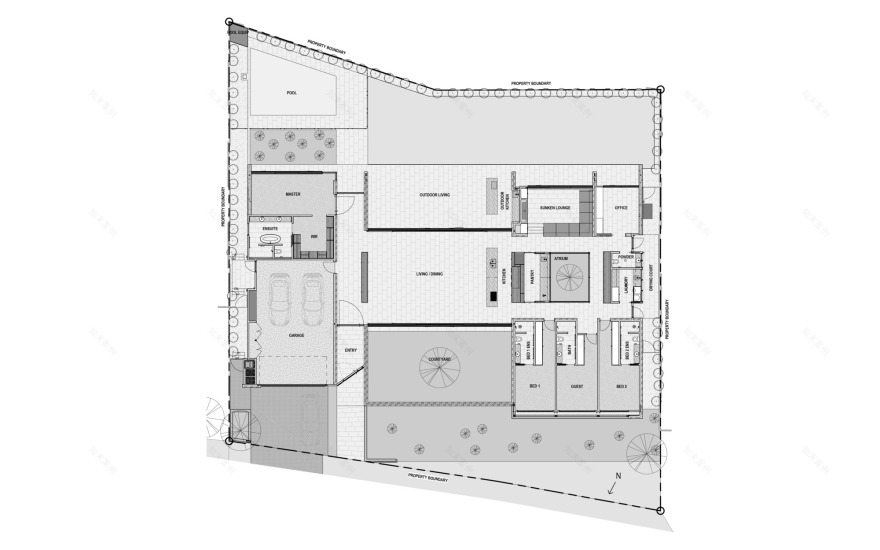
Text description provided by the architects. Stratum sees the relationship of bold, monolithic forms, high ceilings, and extensive glazing. Named after its many formal layers, the bespoke linear brick selection became a focal point of the home, creating a strategic datum throughout the house that was critical to the overall architectural composition.
The brief for the stratum was to create a beautiful, contemporary home with a welcoming selection of materials that celebrated views over the adjacent golf course. The challenge was to capture both the southern, golf course views while capturing the desirable north-facing amenity.
A solution was formulated through a series of courtyards throughout the plan, drawing breezes and light through the heart of the home. The solid brick foundations provide an anchor to the tall, carved ‘white box’, propped high above the primary living areas, allowing internal spaces to be light-filled and ventilate effortlessly.
Project gallery
客服
消息
收藏
下载
最近



















