查看完整案例

收藏

下载

翻译
Designers:Reitsma and Associates
Area:290m²
Year:2020
Manufacturers:B&D,Bradnams Windows and Doors,Feltex,G James,Hytec,Laminex,Lucretia Lighting,Modinex,Reece,Velux
Engineering:Structures Engineering
Builder:Real Living Homes
Landscape Designers:Fig Landscapes
Lead Designers:Trevor Reitsma, Isaac Stott, Mitch Malyon
City:Buddina
Country:Australia
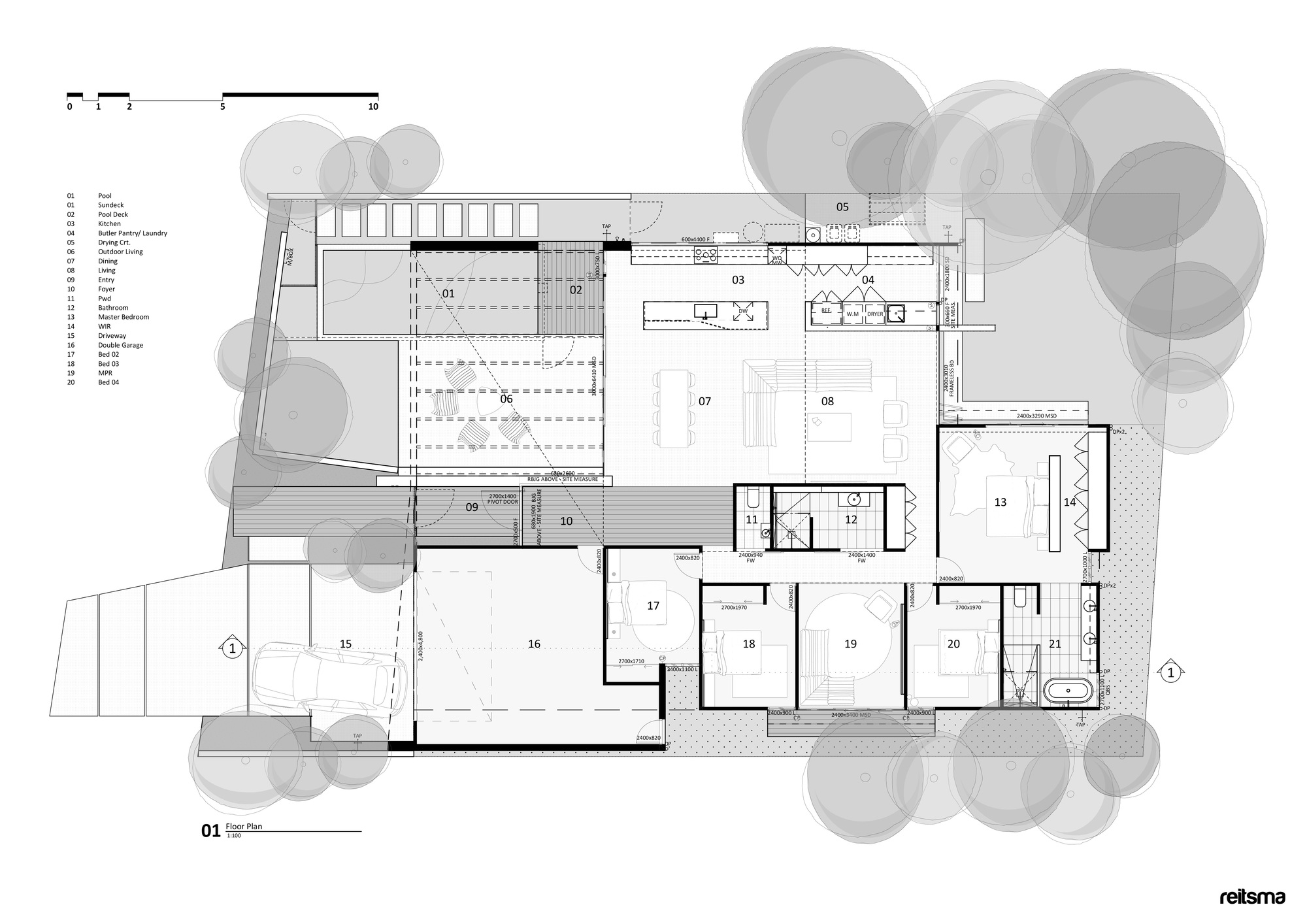
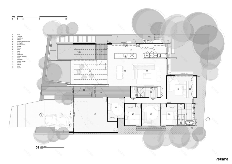
Text description provided by the architects. The Morrison Residence; nestled in the suburb of Buddina and the ever-growing Sunshine Coast, Queensland. This modern, contemporary home is a beautiful example of what can be accomplished with clients that wish to test what can be achieved on your typical suburban allotment, and a builder with the skills to execute. A relatively modest construction provided the foundation to focus on the key details and styling of this atypical home. From the outset, the clients were eager to step away from the norm, wanting a house with a difference. In an unusual and somewhat risky move, the proposal of an inbound central service core was welcomed.
Consisting of a Powder Room and Family Bathroom, this service core and its selections would become a vital feature of this home. The extreme focus was put into creating a sculpture-like feel, with light shafts and stone plinths combining to create a space designed to be opened 95% of the time.
Surrounded by a neighbourhood of what can be seen as more typical housing, the Morrison Residence's use of texture and form give it a genuine sense of purity. Strong off-formed concrete walls, which link into a white rendered portal are all softened and brought together with the use of timber battens and a carefully designed landscape.
Maintaining the external aesthetics and consistently following this through to internal aspects of the home, is seen as a key driver to this project's success. This is evident in styling and can also be seen in the use of materiality, seamlessly flowing from internal and external spaces, as such, blurring the line and increasing the transparency between what is conceived as an indoor and outdoor space. The project is a stunning outcome and one that all involved are genuinely proud of. It is a truly collaborative effort, culminating in a breathtaking home that everyone will enjoy.
Project gallery
客服
消息
收藏
下载
最近





























