查看完整案例

收藏

下载

翻译
Architects:Gianserra + Lima arquitectos
Area:230m²
Year:2019
Photographs:Luis Barandiarán
Manufacturers:Grupo Anacleto,Hormigonera platense,Lograsso,MPS Aluminio,San Rafael
Lead Architects:Fernando Gianserra, Luis Gonzalo Lima
Collaborators:Juana Martocci, Claudio Montes de Oca, Florencia Pazos, Tomás Rossini
City:City Bell
Country:Argentina
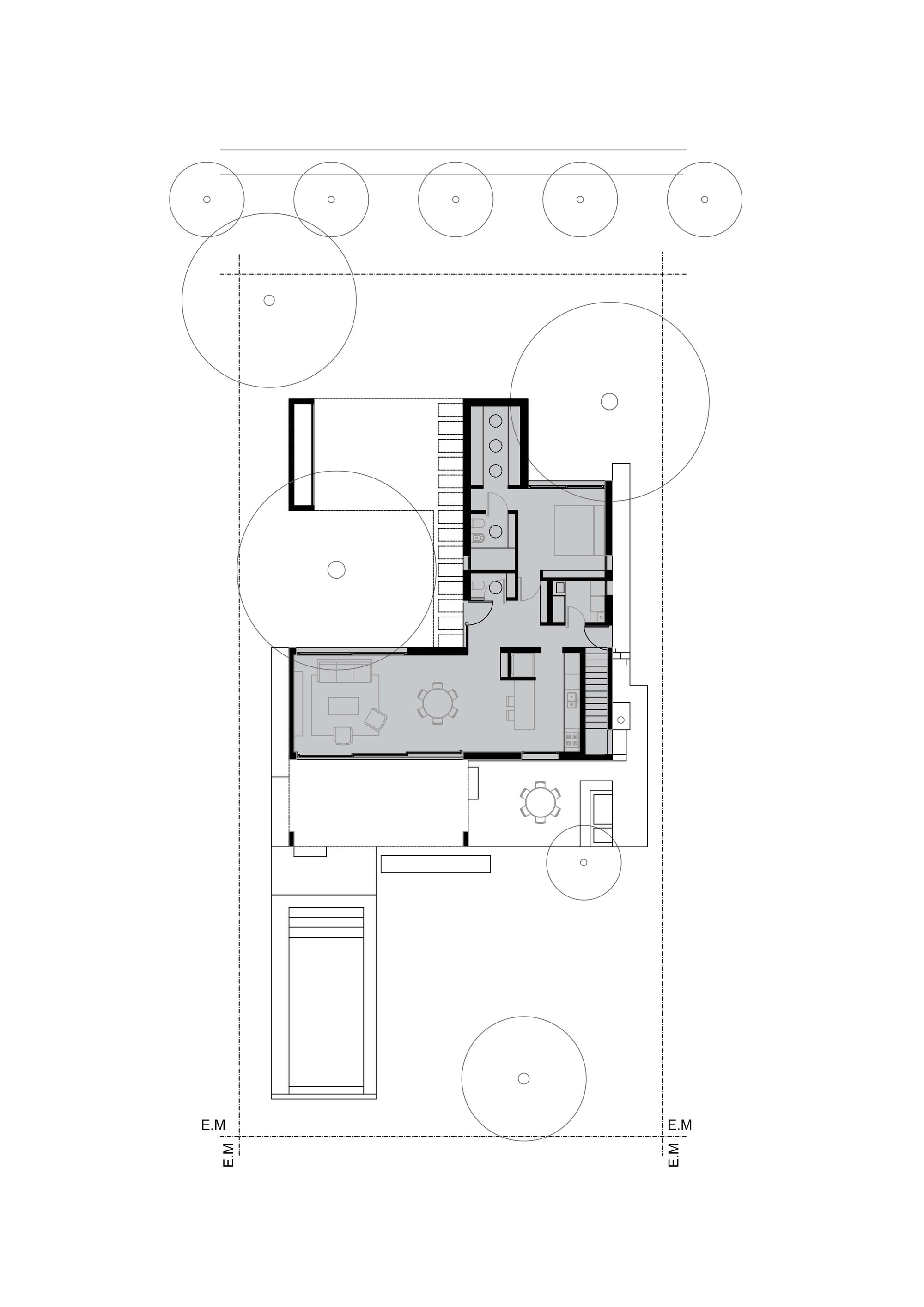
Text description provided by the architects. This house located in a private neighborhood of City Bell, located in a residential area north of the city of La Plata, with an area of 230 m2 for a married couple with three daughters, is a contemporary design in fair-faced concrete, which coexists with some old tree species of the pre-existing pennaceous families in the 17.00 x 34.64 m lot.
The ground floor, designed with accessibility criteria, includes the living room and gallery, the dining room and a suite with a dressing room. A patio articulates the entrance to the house after crossing the portico that serves to park the cars. The Upper Floor with flexibility criteria, adaptable to future family needs, has a compartmentalized bathroom when exiting the staircase, and can go from being a single large room or be divided into 3 bedrooms, with views to the front and the quiet part of the house.
Project gallery
客服
消息
收藏
下载
最近

























