查看完整案例

收藏

下载

翻译
Architects:Choo Poo Liang Architect,O2 Design Atelier
Area:2395ft²
Year:2020
Photographs:Bricks Begin Photography
Manufacturers:Feruni
C&S Engineer:Cubic Consultancy
City:Kuala Lumpur
Country:Malaysia
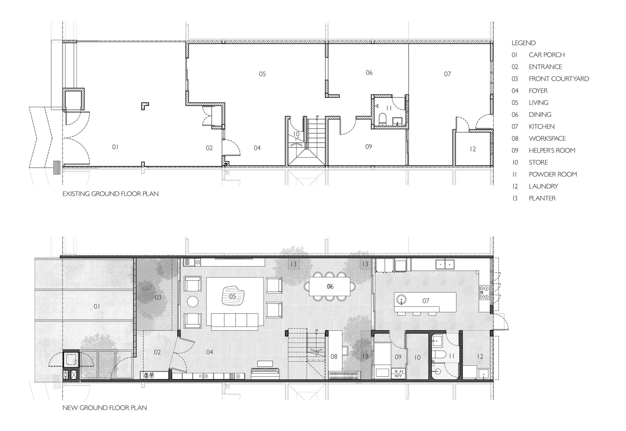
Text description provided by the architects. Introvert’s house is a two storey terrace house located within the residential neighborhoods in Kuala Lumpur with a standard lot size of 22 ft x 75 ft. The house is designed for a Chinese Family of five with 1 helper. The client intended to renovate the house that they have been living in for 20 years by integrating more bedrooms for their grown-up kids and has new quality of interior space.
The lack of greeneries and the dark and gloomy interior spaces are always the major drawbacks of the intermediate terrace houses in Malaysia due to their limited façade that exposed to street and also dilemma between privacy, security and community. Thus, the main idea of the project is to create an introvert house that still allow the owner to keep an eye to the streets as community yet having its own privacy. A double volume of semi-indoor courtyard has been main space of the house. The design starts from the front, where the existing gate has been removed to extend the parking space out and create a front entry courtyard for the house. Screen wall has been designed between car porch and entry court to serve as security barrier and privacy screen. It also allows certain porosity that owner can view to the street.
Once entering the house, the living, dining and kitchen are presented as a one big open space which form a continuous flow of space for maximum spatial and visual connectivity and also cross ventilation. Reaching the central of the house, you will be greed by a double volume height indoor courtyard space with the abundance of natural light and trees. The Central Indoor courtyard has been central core space for the house where dining, the wife’ work space, staircase and link bridge has been placed. The house owner will experience the high-volume spatial experience with flood of natural light and surrounded with trees. With each rooms window open toward the courtyard, It kept the communication between family member vertically.
In order to bring in the natural light to the indoor courtyard, a few of existing roof tiles has been replaced with transparent polycarbonate roof tiles. Vent blocks are installed to ensure the continuous flow of air movement. Overall material pallet is mixture between raw and refined material to create the flux. all interior wall to kept to white with some essence element light screen wall, planter and railing using raw and rustic material. Apart from trees at entry courtyard, trees has been planted at central courtyard and even on hanging planter on the link bridge to give bring the house closer to nature. With abundance of light, air and greenery it creates indoor sanctuary for the owner.
Project gallery
客服
消息
收藏
下载
最近

















