查看完整案例

收藏

下载

翻译
Architects:T H I A Architecture
Area:64m²
Year:2021
Photographs:Quang Tran
Manufacturers:AutoDesk,Adobe,An Cuong Wood,Hafele,Jotun,Toto,Trimble Navigation,Vietceramics,Xingfa
Construction:Luu’s Atelier,Dreamers Architects, Hung Gia Phat
Design Team:Kts Huynh Xuan Thi, Kts Phan Thanh Linh, Kts Nguyen Tan Viet
City:phường 10
Country:Vietnam
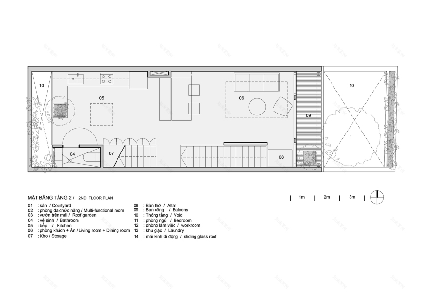
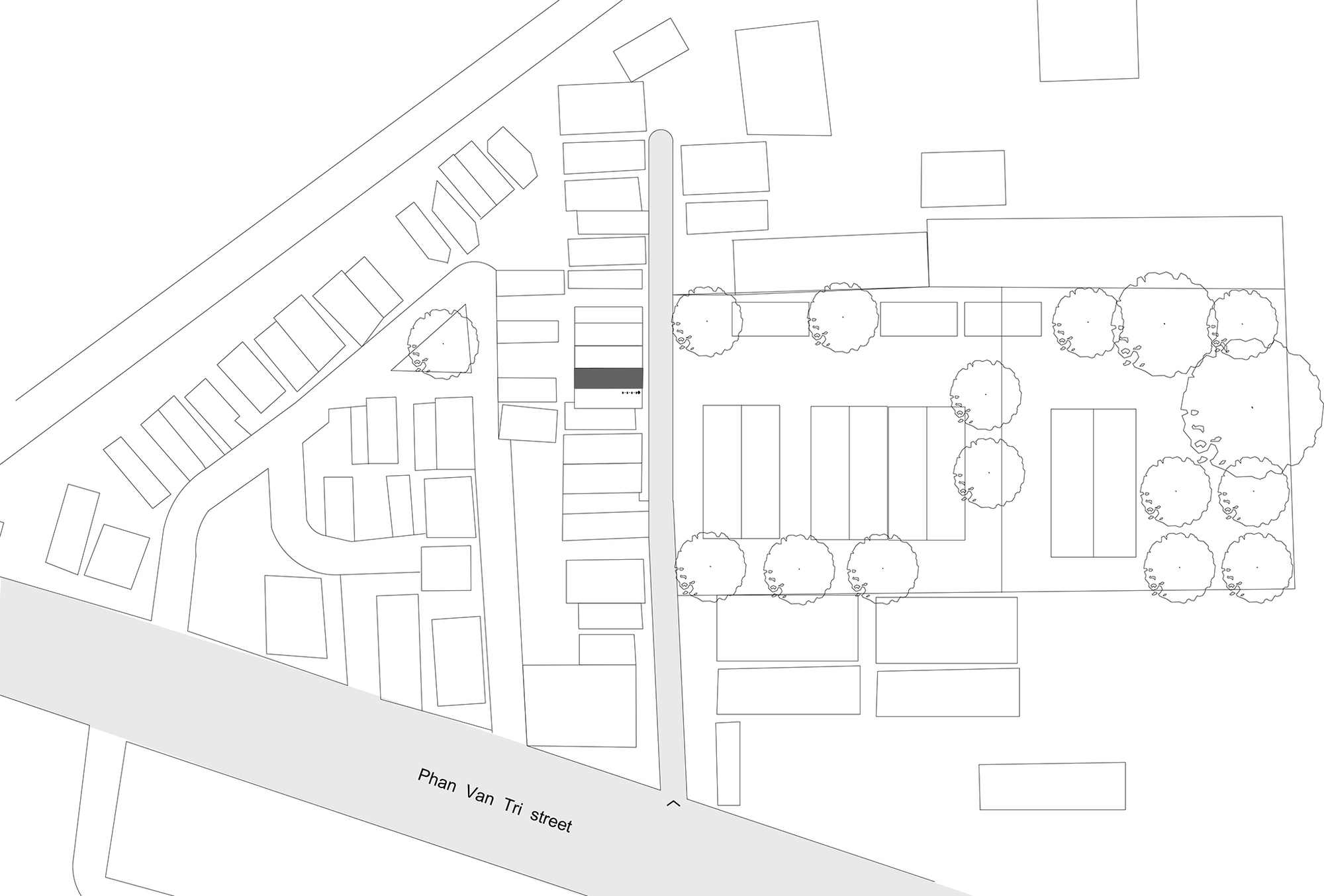
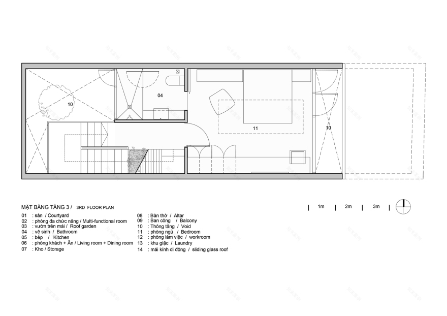
Text description provided by the architects. P. House is the establishment with an area of 4.3 x 15m located in an alley, with three sides bordering the neighbor while the east façade borders an old factory and many large old trees.
Upon approaching the site, we notice the unique settings of the area, the façade facing a large space of the factory "2 floors above the existing house" but covered by a wall of fences, the factory with the form of a steep roof surrounded by old trees which are home to the birds and squirrels making the place vibrant regardless of the urban surrounding.
For the purpose of preserve this natural habitat and greenery, our approach is ceding a large area for gardening and to further enhance it, we also cover the roof with plants, blending the man-structure with existing mother nature.
With a 2-layer architectural solution, interspersed with trees, arranging a glass roof to take the wind from behind the house will help this house always feel refreshing and avoid exposure to direct sunlight. The living space is covered by layers of bricks and trees. Therefore, reliance on air conditioner usage will be significantly reduced.
The materials we use are sustainable materials, carpentry bricks, concrete ceilings, natural wood, so that the living space is closely associated with nature.
Project gallery
客服
消息
收藏
下载
最近









































