查看完整案例

收藏

下载

翻译
Architects:Office for Environment Architecture
Area:133m²
Year:2013
Photographs:Yuko Tada
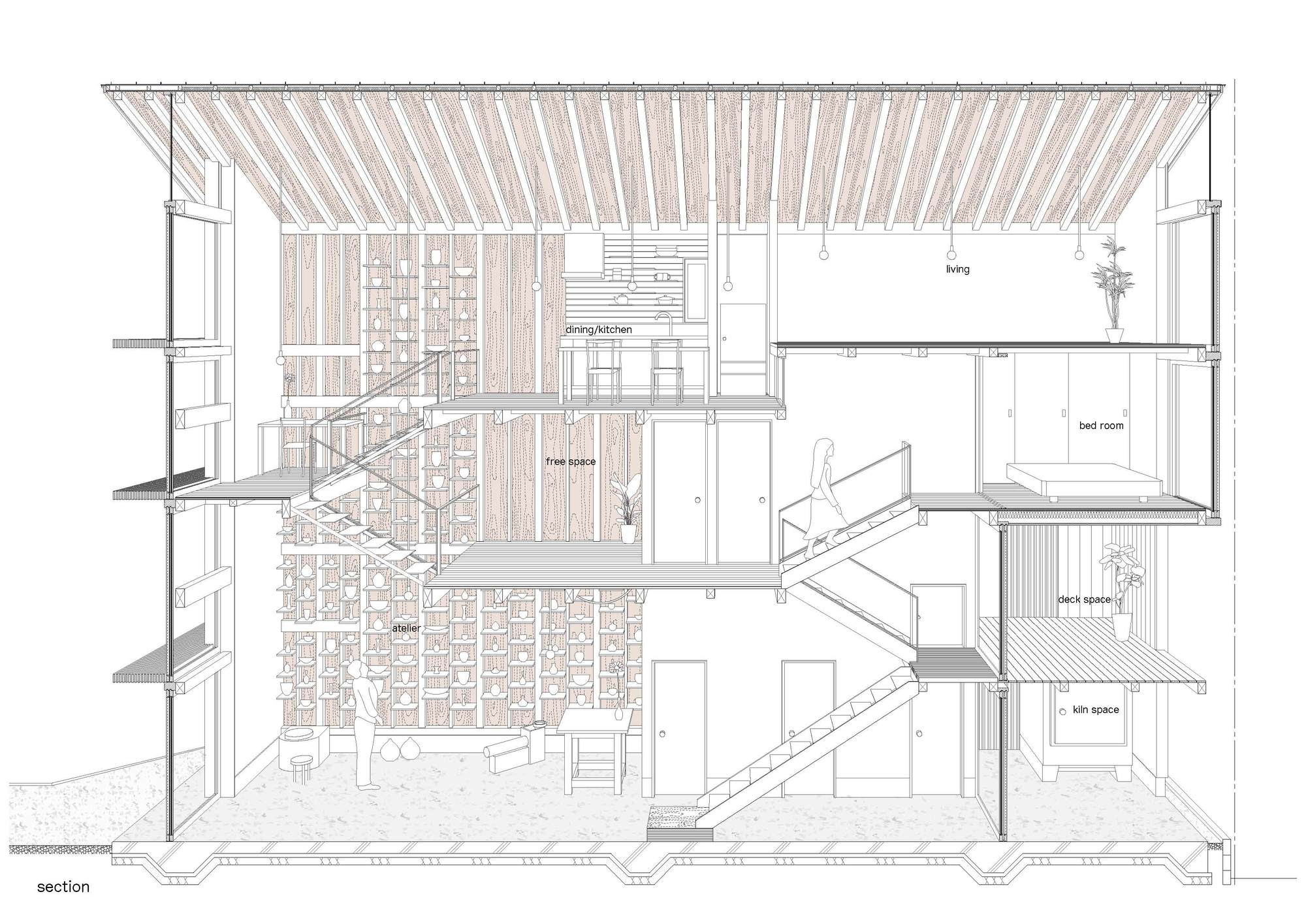
Text description provided by the architects. This is a house and atelier for a pottery artist family, located along a traffic circle at a station in suburban Osaka. The site is narrow flag-shaped (a rectangular site with a pole-like narrow path), with 3m of frontage and a depth of 34m. There is a large apartment building on the south side, and idle lands on the north and east sides. A distant view of the beautiful mountain range of Mt. Nijo can be seen in the east direction.
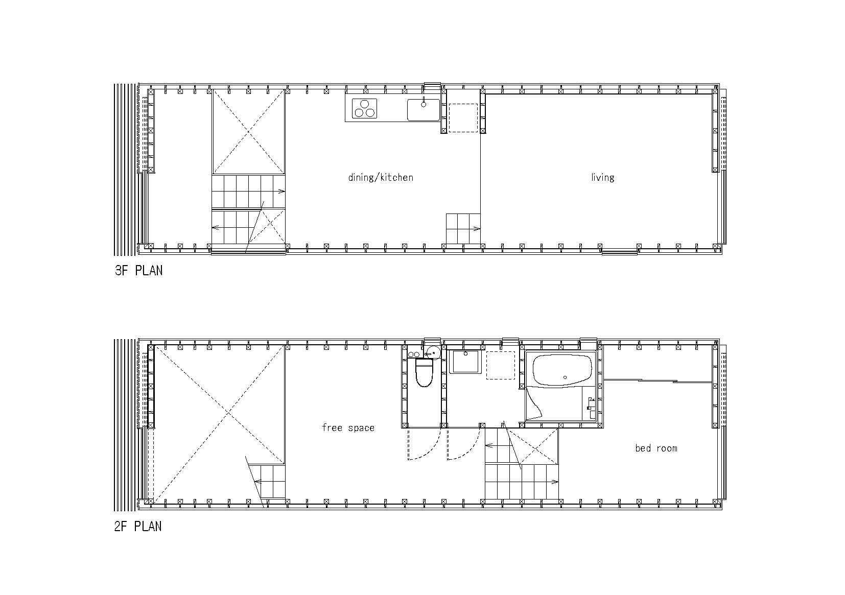
While incorporating the view of Mt. Nijo from the town, which will be blocked by the construction of this building, the spaces were made by arranging high/low ceilings, and large and small areas on the traffic lines to create continuity with the town. Due to a limited budget, the structure is all exposed. The seven-layered slabs transfer floor stiffness by the steel stairs located at the open ceiling. The continuous angle braces, which support the roof, handle the out-of-plane stress of wind pressure on the south wall. The interior is a large continuous space with the atelier on the first floor and residential spaces on the second and third floors.
This 50m longhouse, connecting the town to Mt. Nijo, has two sceneries: "hare", which resembles the bustle of an approach that is open to the community, and "ke" with an open flow of wind, light, and line of vision, which consists of routine pottery work and family life. The building was designed to be a small house in relationship to the town, and in the environment.
Project gallery
客服
消息
收藏
下载
最近


























